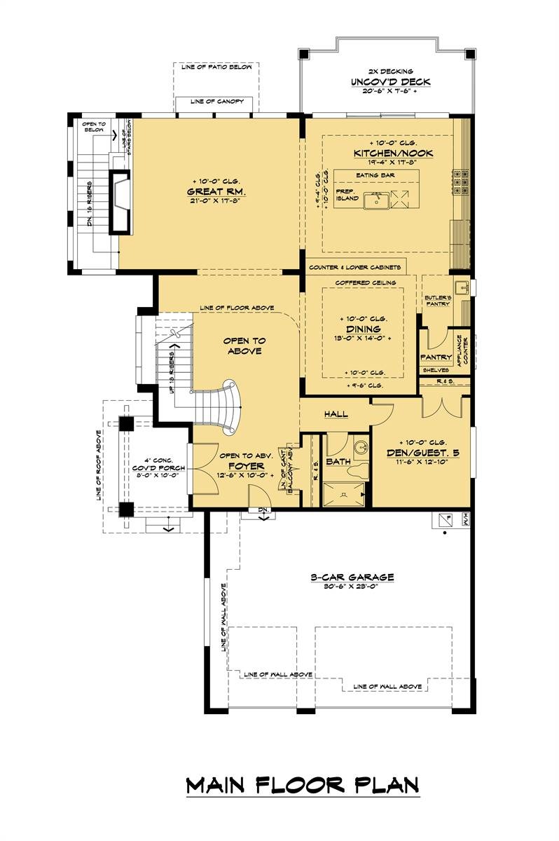
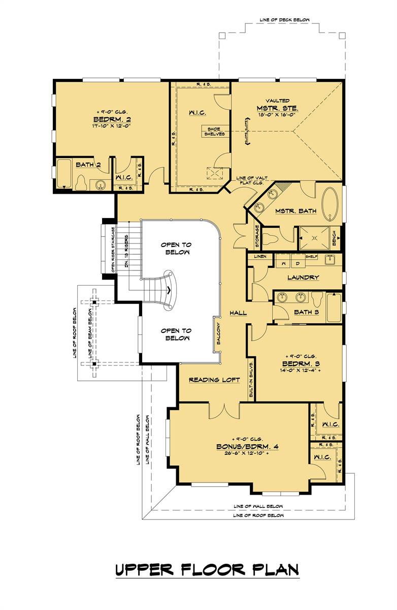
This incredible 4,728 sf home is contemporary and comfortable. This home features a two story entrance, 6 bedrooms and a 3-car garage. The beautiful entrance is spectacular with its 2-story foyer with grand staircase. A beautiful dining room with coffered ceiling as well as the magnificent great room with fireplace feature wall and wall of windows is impressive and luxurious. The great room leads to the gourmet chef’s kitchen with huge prep island. The kitchen boasts a butler’s pantry and the storage pantry provides everything you need to host your upscale dinner party. Additional features include a den/guest room with hall bathroom and provides a perfect place for Grandma to stay without having to navigate stairs. The second level of the home includes a luxurious master suite with vaulted ceiling, huge walk-in closet, and gorgeous ensuite bath with all the amenities. Two secondary bedrooms are located on this level, each with large walk-in closet and private bath. To round out this level, there is a large bonus room that could also be another bedroom as well as a reading loft providing a comfortable and quiet place to enjoy a good book. The basement level of the home includes another guest suite with private bath as well as the family rec room, perfect for game night or viewing your favorite movies. The rec room opens to the uncovered patio allowing access to the outside. This home is sure to please even the most discerning individual.
This incredible 4,728 sf home is contemporary and comfortable. This home features a two story entrance, 6 bedrooms and a 3-car garage. The beautiful entrance is spectacular with its 2-story foyer with grand staircase. A beautiful dining room with coffered ceiling as well as the magnificent great room with fireplace feature wall and wall of windows is impressive and luxurious. The great room leads to the gourmet chef’s kitchen with huge prep island. The kitchen boasts a butler’s pantry and the storage pantry provides everything you need to host your upscale dinner party. Additional features include a den/guest room with hall bathroom and provides a perfect place for Grandma to stay without having to navigate stairs. The second level of the home includes a luxurious master suite with vaulted ceiling, huge walk-in closet, and gorgeous ensuite bath with all the amenities. Two secondary bedrooms are located on this level, each with large walk-in closet and private bath. To round out this level, there is a large bonus room that could also be another bedroom as well as a reading loft providing a comfortable and quiet place to enjoy a good book. The basement level of the home includes another guest suite with private bath as well as the family rec room, perfect for game night or viewing your favorite movies. The rec room opens to the uncovered patio allowing access to the outside. This home is sure to please even the most discerning individual.