House Plan: DFD-9678

See All 4 Photos > (photographs may reflect modified homes)
© copyright by designer
SQ FT
2,400
BEDS
3
BATHS
2.5
STORIES
2
CARS
3
PLANS FROM $1,750
For questions and help, live chat, email or call us at 877-895-5299
Floor Plans
Click to Zoom In on Floor Plan
 
About House Plan 9678:
At 2,400 square feet, this 3 bedroom 2.5 bath European Farmhouse combines the classic simplicity and open concept of the American Farmhouse with European touches. Think open concept mixed with just enough charming touches to make it feel even more homey.

Guests enter directly into a two story foyer expanding the size and “wow” factor from the first step inside the door from the shed roof covered porch. The foyer is flanked by the home office as well as the staggered front 3 car garage (that enters in through a convenient mudroom with built ins).

Past the powder room you’ll find the vaulted great room bathed in natural light from the sleek paned windows that cover the back wall of the home. A beautiful fireplace anchors the great room. The kitchen and dining room work in tandem to provide spaces for plenty of socializing and eating. Those always go best hand in hand. The laundry room is tucked in the middle of the main floor. The two patios outside the sliding doors of the dining room (one is covered, one is not covered) will be the perfect spots for al fresco dining, bbqs, or nights at a small fire pit sharing a bottle of wine with your spouse or neighbors.

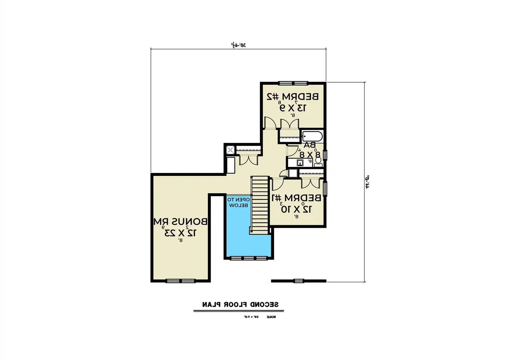
Up the stairs you’ll find the secondary 2 bedrooms that share a full bathroom off the hall. The additional flex / bonus room is a perfect downtime spot for the family to watch movies, kids play video games, and the best spot in the house to keep the toys / noise contained for any little ones.
House Plan Pricing
STEP 1 Select Your Package

PDF Bid Set


Home plans stamped "NOT FOR CONSTRUCTION" for cost estimating and bidding purposes only; a minimum 5 set plan package must be purchased within 90 days for a license to build plan set; a credit will be applied towards your house plan upgrade

PDF Bid Set $875
Digital set of plans for bidding purposes only

PDF Single Build


Digital plans emailed to you in PDF format that allows for printing copies and sharing electronically with contractors, subs, decorators, and more. This package includes a license to build the home one time.

PDF Single Build $1,750
Most recommended package

5 Printed Sets + PDF


Includes 5 physical printed blueprint sets, shipped free via UPS within the U.S. Printed sets ship within 1 business day and are delivered within 3 – 5 business days. A complimentary PDF plan set is also emailed within 1 business day for easy sharing and local printing. These plans may be used to construct one home.

5 Printed Sets + PDF $2,200
5 Printed Sets + PDF

CAD + PDF Single Build


This plan package is created in AutoCAD and delivered in .DWG format. CAD files are intended for use by design professionals, structural engineers, and builders to update plans for local building codes or to make revisions based on specific needs, lot requirements, and budget considerations. A complimentary PDF copy is included with this package for reference. CAD packages are delivered within 1 to 2 business days.
 
This package also comes with a copyright release for making revisions and printing unlimited copies.

For details on the specific CAD program used, please refer to the PLAN DETAILS section located above the floor plan on each plan page.

CAD + PDF Single Build $2,250
2D electronic editable computer files
STEP 2 Need To Reverse This Plan?
STEP 3 CHOOSE YOUR FOUNDATION
STEP 4 OPTIONAL ADD-ONS
Subtotal:
$1750
FREE SHIPPING
 
Plan Details
See All Details
Finished Square Footage
1,547 Sq. Ft.
Main Level:
853 Sq. Ft.
Upper Level:
2,400 Sq. Ft.
Total:
Room Details
3
Bedrooms:
2
Full Baths:
1
Half Baths:
General House Information
2
Number of Stories:
54' 0"
Width:
59' 0"
Depth:
Single
Dwelling Number:
2nd Floor
Bonus Access:
Unfinished Square Footage
719 Sq. Ft.
Garage:
73 Sq. Ft.
Porch:
374 Sq. Ft.
Deck:
GARAGE
Front
Garage Location:
3
Garage Size:
Exterior Style
Craftsman
Farmhouse
Modern Farmhouse
Collections
Canada
First Home
Kitchens
Primary Suites
Open Floor Plan
Outdoor Living
Split Bedroom
Foundation
Crawl Space (no charge)
Framing Information
Truss
Roof Framing:
2x6
Exterior Wall Framing:
Roof Pitch
8/12
Primary:
12/12
Secondary:
Insulation (R)
House And Ceiling Heights
9
First Floor Ceiling:
8
Second Floor Ceiling:
27' 5"
Maximum House Height:
Key Features
Attached
Bonus Room
Country Kitchen
Covered Front Porch
Covered Rear Porch
Dining Room
Double Vanity Sink
Fireplace
Foyer
Front-entry
Great Room
Home Office
Kitchen Island
Laundry 1st Fl
Loft / Balcony
L-Shaped
Primary Bdrm Main Floor
Nook / Breakfast Area
Open Floor Plan
Outdoor Living Space
Pantry
Separate Tub and Shower
Split Bedrooms
Suited for view lot
Vaulted Ceilings
Vaulted Great Room/Living
Walk-in Closet
Walk-in Pantry

Our Guarantees

  • Only the highest quality plans
  • Int’l Residential Code Compliant
  • Full structural details on all plans
  • Best plan price guarantee
  • Free modification Estimates
  • Builder-ready construction drawings
  • Expert advice from leading designers
  •  PDFs NOW!™ plans in minutes
  • 100% satisfaction guarantee
  • Free Home Building Organizer