20% off ALL House Plans Sitewide
20% off ALL House Plans Sitewide

House Plan: DFD-9945

See All 7 Photos > (photographs may reflect modified homes)
© copyright by designer
SQ FT
3,218
BEDS
4
BATHS
4.5
STORIES
1
CARS
3
HOUSE PLANS SALE 
START AT  $1,400.00
For questions and help, live chat, email or call us at 877-895-5299
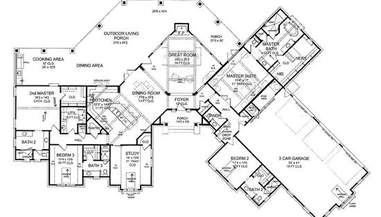
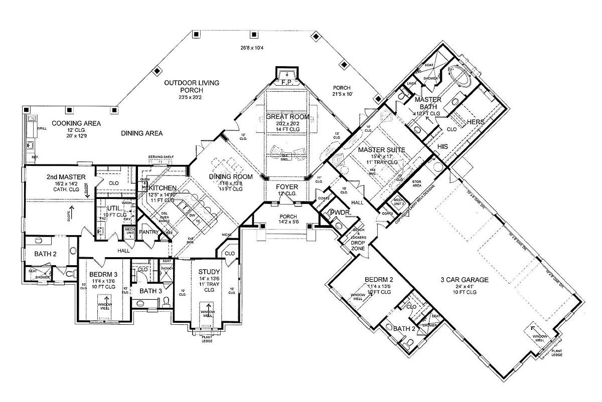
Floor Plans
Click to Zoom In on Floor Plan
 
About House Plan 9945:
House Plan 9945 blends modern farmhouse charm with a refined single-story layout built for both function and luxury. The foyer leads into a grand great room with a high 14’ ceiling and direct views to the outdoor living porch. The kitchen features an oversized island and walk-in pantry, while the dining room sits conveniently nearby for everyday meals or hosting. The primary suite offers dual walk-in closets and a spa-style bath, while a second primary suite on the opposite side of the home creates ideal guest or multi-gen accommodations. Two additional bedrooms share a well-designed bath hallway for privacy and comfort. A study near the entry provides a quiet workspace. Outside, the covered outdoor living area includes a grilling kitchen, perfect for gathering, relaxing, or dining outdoors. Completing the layout is a spacious 3-car side-entry garage with drop zone access.
House Plan Pricing
STEP 1 Select Your Package

PDF Bid Set


Home plans stamped "NOT FOR CONSTRUCTION" for cost estimating and bidding purposes only; a minimum 5 set plan package must be purchased within 90 days for a license to build plan set; a credit will be applied towards your house plan upgrade

PDF Bid Set $1,250
Digital set of plans for bidding purposes only

PDF Single Build


Digital plans emailed to you in PDF format that allows for printing copies and sharing electronically with contractors, subs, decorators, and more. This package includes a license to build the home one time.

PDF Single Build $1,750
Most recommended package

Multi-Use PDF


Two Builds Only
Multi-Use PDF $2,495
Two Builds Only

CAD + PDF Single Build


CAD files are a complete set of construction drawings delivered electronically. They can be used for any type of modification—including major design changes and engineering—and include a release granting permission to modify the plan. Most CAD plan orders are emailed the same or next business day.
 
This package also comes with a PDF set of plans and a copyright release for making modifications and printing unlimited copies.
 
CAD files are provided in .dwg format. For details on the specific CAD program used, please refer to the PLAN DETAILS section located above the floor plan on each plan’s page.

CAD + PDF Single Build $3,250
2D electronic editable computer files
STEP 2 Need To Reverse This Plan?
STEP 3 CHOOSE YOUR FOUNDATION
STEP 4 OPTIONAL ADD-ONS
Subtotal:
$1750
FREE SHIPPING
 
Plan Details
See All Details
Finished Square Footage
3,218 Sq. Ft.
Main Level:
3,218 Sq. Ft.
Total:
Room Details
4
Bedrooms:
4
Full Baths:
1
Half Baths:
General House Information
1
Number of Stories:
123'
Width:
76'
Depth:
Single
Dwelling Number:
Unfinished Square Footage
1066 Sq. Ft.
Garage:
1293 Sq. Ft.
Porch:
GARAGE
Side
Garage Location:
3
Garage Size:
Exterior Style
Country
Farmhouse
Modern Farmhouse
Ranch
Transitional
Collections
In-Law Suite
Kitchens
Primary Suites
Mountain
Open Floor Plan
OtherCustom
Outdoor Living
Split Bedroom
Foundation
Basement
Crawl Space
Daylight Basement
Slab
Framing Information
Stick
Roof Framing:
2x4
Exterior Wall Framing:
Insulation (R)
House And Ceiling Heights
10
First Floor Ceiling:
Key Features
2 Primary Suites
Attached
Covered Front Porch
Covered Rear Porch
Dining Room
Double Vanity Sink
Fireplace
Foyer
Great Room
Guest Suite
His and Hers Primary Closets
In-law Suite
Kitchen Island
Laundry 1st Fl
Library/Media Rm
Primary Bdrm Main Floor
Mud Room
Open Floor Plan
Outdoor Kitchen
Outdoor Living Space
Peninsula / Eating Bar
Rear-entry
Separate Tub and Shower
Split Bedrooms
Suited for corner lot
Suited for view lot
Walk-in Closet
Walk-in Pantry
With Living Space
Wraparound Porch

Our Guarantees

  • Only the highest quality plans
  • Int’l Residential Code Compliant
  • Full structural details on all plans
  • Best plan price guarantee
  • Free modification Estimates
  • Builder-ready construction drawings
  • Expert advice from leading designers
  •  PDFs NOW!™ plans in minutes
  • 100% satisfaction guarantee
  • Free Home Building Organizer