15% off ALL House Plans Sitewide
15% off ALL House Plans Sitewide

House Plan: DFD-9994

See All 24 Photos > (photographs may reflect modified homes)
© copyright by designer
SQ FT
2,806
BEDS
3
BATHS
2.5
STORIES
1
CARS
2
HOUSE PLANS SALE 
START AT  $2,282.25
For questions and help, live chat, email or call us at 877-895-5299
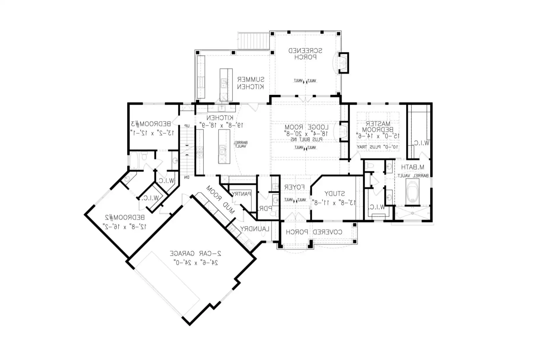
Floor Plans
Click to Zoom In on Floor Plan
 
About House Plan 9994:
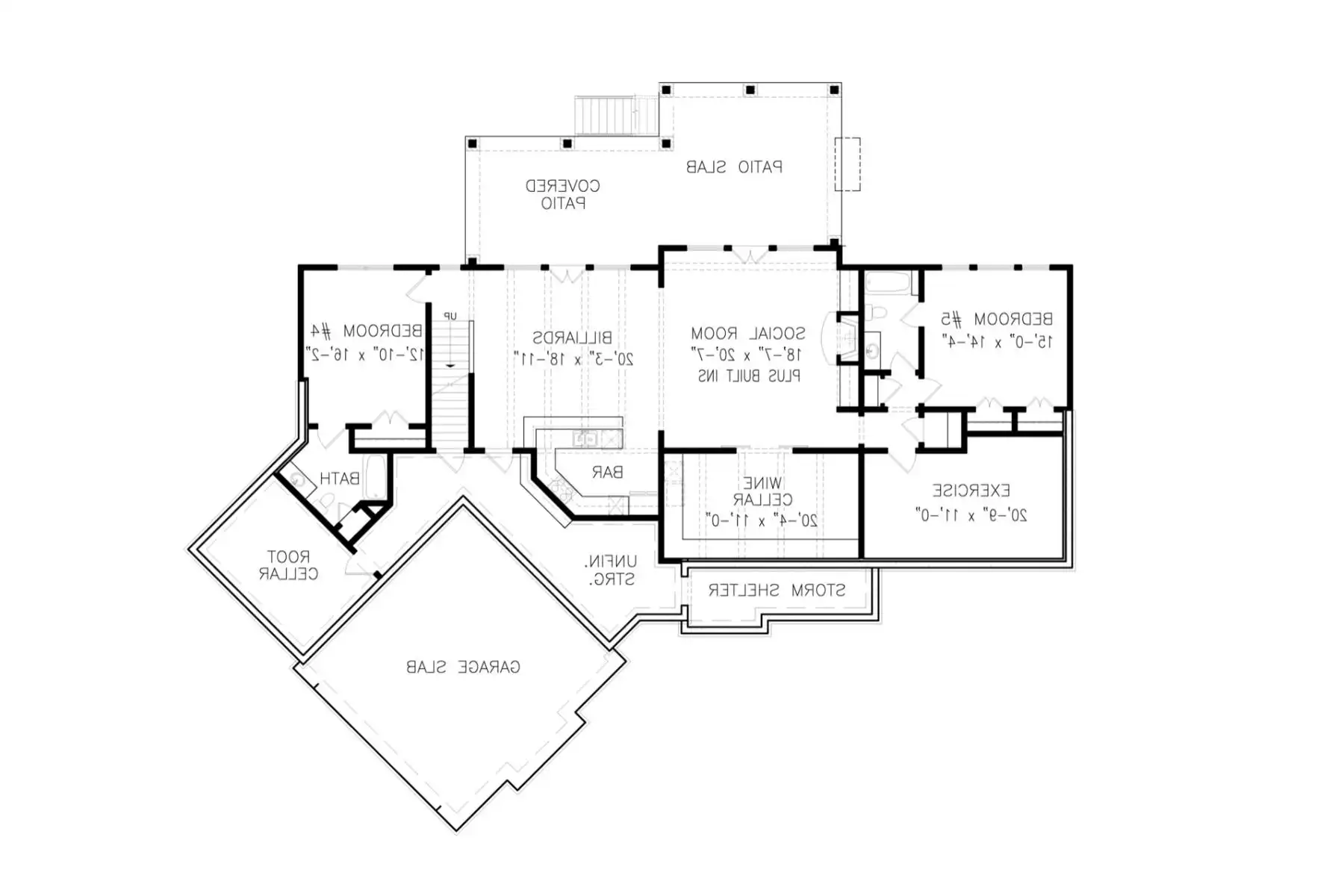
House Plan 9994 captures the charm of classic Southern architecture blended with elegant French Country influences. The inviting exterior features brick, shake accents, and a beautifully arched front porch that leads into a warm, open layout. The great room includes a fireplace framed by built-ins and flows effortlessly into a spacious kitchen with a large island designed for gathering. A vaulted ceiling extends from the great room out to the screened porch, where an outdoor fireplace and cooking area create the perfect year-round retreat. The primary suite offers exceptional privacy with a 5-piece bath, oversized shower, and two walk-in closets. Two additional bedrooms share a Jack-and-Jill bath on the opposite side of the home, keeping the layout balanced and functional. A mudroom and walk-in pantry connect the 2-car garage to the kitchen for everyday convenience. Upstairs, an optional bonus room functions beautifully as a fourth bedroom with its own full bath and walk-in closet.
House Plan Pricing
STEP 1 Select Your Package

PDF Single Build


Digital plans emailed to you in PDF format that allows for printing copies and sharing electronically with contractors, subs, decorators, and more. This package includes a license to build the home one time.

PDF Single Build $2,685
Most recommended package

CAD + PDF Single Build


This plan package is created in AutoCAD and delivered in .DWG format. CAD files are intended for use by design professionals, structural engineers, and builders to update plans for local building codes or to make revisions based on specific needs, lot requirements, and budget considerations. A complimentary PDF copy is included with this package for reference. CAD packages are delivered within 1 to 2 business days.
 
This package also comes with a copyright release for making revisions and printing unlimited copies.

For details on the specific CAD program used, please refer to the PLAN DETAILS section located above the floor plan on each plan page.

CAD + PDF Single Build $3,635
2D electronic editable computer files
STEP 2 Need To Reverse This Plan?
STEP 3 CHOOSE YOUR FOUNDATION
STEP 4 OPTIONAL ADD-ONS
Subtotal:
$2685
FREE SHIPPING
 
Plan Details
See All Details
Finished Square Footage
2,806 Sq. Ft.
Main Level:
510 Sq. Ft.
Upper Level:
2,165 Sq. Ft.
Lower Level:
2,806 Sq. Ft.
Total:
Room Details
3
Bedrooms:
2
Full Baths:
1
Half Baths:
General House Information
1
Number of Stories:
92' 1"
Width:
78' 6"
Depth:
Single
Dwelling Number:
None
Bonus Access:
Unfinished Square Footage
594 Sq. Ft.
Garage:
GARAGE
Front
Garage Location:
2
Garage Size:
Exterior Style
Craftsman
French Country
Lake
Ranch
Collections
Kitchens
Luxury
Primary Suites
Mountain
Open Floor Plan
Outdoor Living
Split Bedroom
Foundation
Crawlspace
Slab
Framing Information
Truss
Roof Framing:
2x6
Exterior Wall Framing:
Insulation (R)
House And Ceiling Heights
10
First Floor Ceiling:
9
Second Floor Ceiling:
27' 4"
Maximum House Height:
Key Features
Attached
Covered Front Porch
Covered Rear Porch
Dining Room
Double Vanity Sink
Fireplace
Foyer
Front-entry
Great Room
Home Office
Kitchen Island
Laundry 1st Fl
L-Shaped
Primary Bdrm Main Floor
Mud Room
Nook / Breakfast Area
Open Floor Plan
Outdoor Kitchen
Outdoor Living Space
Peninsula / Eating Bar
Rec Room
Screened Porch/Sunroom
Separate Tub and Shower
Split Bedrooms
Suited for view lot
Vaulted Great Room/Living
Walk-in Closet
Walk-in Pantry

Our Guarantees

  • Only the highest quality plans
  • Int’l Residential Code Compliant
  • Full structural details on all plans
  • Best plan price guarantee
  • Free modification Estimates
  • Builder-ready construction drawings
  • Expert advice from leading designers
  •  PDFs NOW!™ plans in minutes
  • 100% satisfaction guarantee
  • Free Home Building Organizer