20% Off House Plans Sitewide Ends Sunday
20% Off House Plans Sitewide Ends Sunday

House Plan: DFD-10154

See All 6 Photos > (photographs may reflect modified homes)
© copyright by designer
SQ FT
1,568
BEDS
3
BATHS
2.5
STORIES
2
CARS
2
HOUSE PLANS SALE 
START AT  $800.00
For questions and help, live chat, email or call us at 877-895-5299
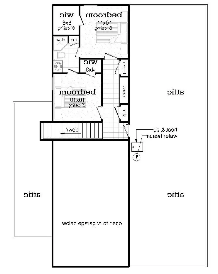
Floor Plans
Click to Zoom In on Floor Plan
 
About House Plan 10154:
Need a modest barndo with room for an RV? Check out House Plan 10154! This 1,568-square-foot design offers an RV garage in front, a carport back, a courtyard on the side, and two levels of living space with three bedrooms and two-and-a-half bathrooms. The layout places the open-concept living areas beside the RV garage and the primary suite in back, connected by a memory hallway that wraps around to the foyer. Upstairs, there's a pair of Jack-and-Jill bedrooms and a hallway with a built-in desk. This is a wonderful home for families of all ages!
House Plan Pricing
STEP 1 Select Your Package

PDF Bid Set


Home plans stamped "NOT FOR CONSTRUCTION" for cost estimating and bidding purposes only; a minimum 5 set plan package must be purchased within 90 days for a license to build plan set; a credit will be applied towards your house plan upgrade

PDF Bid Set $800
Immediate Delivery!
Digital set of plans for bidding purposes only

PDF Single Build


Digital plans emailed to you in PDF format that allows for printing copies and sharing electronically with contractors, subs, decorators, and more. This package includes a license to build the home one time.

PDF Single Build $1,000
Immediate Delivery!
Most recommended package

4 Printed Sets


Four printed sets of construction drawings shipped and received in 3-5 business days

4 Printed Sets $1,085
Four printed sets of house plans

5 Printed Sets


Five Printed Sets of Residential Construction Drawings are typically 24” x 36” documents and come with a license to construct a single residence shipped to a physical address. Keep in mind PDF Plan Packages are our most popular choice which allows you to print as many copies as you need and to electronically send files to your builder, subcontractors, etc.

5 Printed Sets $1,130
Five printed sets of house plans

8 Printed Sets


Eight Printed Sets of Construction Drawings, typically 24” x 36” documents, with a license to construct a single residence shipped to your physical address. PDF Plan Packages are our most popular choice which allows you to print as many copies as you need and to electronically send files to your builder, subcontractors, bank/mortgage reps, material stores, decorators and more.

8 Printed Sets $1,240
Eight printed sets of house plans

CAD + PDF Single Build


CAD files are a complete set of construction drawings delivered electronically. They can be used for any type of modification—including major design changes and engineering—and include a release granting permission to modify the plan. Most CAD plan orders are emailed the same or next business day.
 
This package also comes with a PDF set of plans and a copyright release for making modifications and printing unlimited copies.
 
CAD files are provided in .dwg format. For details on the specific CAD program used, please refer to the PLAN DETAILS section located above the floor plan on each plan’s page.

CAD + PDF Single Build $1,900
2D electronic editable computer files
STEP 2 Need To Reverse This Plan?
STEP 3 CHOOSE YOUR FOUNDATION
STEP 4 OPTIONAL ADD-ONS
Subtotal:
$1000
FREE SHIPPING

Note: D
 
Plan Details
See All Details
Finished Square Footage
1,120 Sq. Ft.
Main Level:
448 Sq. Ft.
Upper Level:
1,568 Sq. Ft.
Total:
Room Details
3
Bedrooms:
2
Full Baths:
1
Half Baths:
General House Information
2
Number of Stories:
40'
Width:
54'
Depth:
Single
Dwelling Number:
None
Bonus Access:
Unfinished Square Footage
736 Sq. Ft.
Garage:
96 Sq. Ft.
Front Porch:
GARAGE
2
Garage Size:
Exterior Style
Barndominium
Country
Collections
Affordable
Empty Nester
Open Floor Plan
PDFs Fast!
Split Bedroom
Foundation
Concrete Slab Foundation
Framing Information
Stick
Roof Framing:
2x4
Exterior Wall Framing:
Roof Pitch
12/12
Primary:
6/12
Secondary:
Insulation (R)
11
Exterior Wall:
38
Ceiling:
House And Ceiling Heights
9
First Floor Ceiling:
8
Second Floor Ceiling:
28'
Maximum House Height:
Key Features
Attached
Carport
Courtyard
Covered Front Porch
Foyer
Front-entry
Great Room
Laundry 1st Fl
Primary Bdrm Main Floor
Mud Room
Open Floor Plan
Pantry
Peninsula / Eating Bar
Rear-entry
RV Garage
Split Bedrooms
Suited for corner lot
Suited for narrow lot
U-Shaped
Walk-in Closet
Workshop

Our Guarantees

  • Only the highest quality plans
  • Int’l Residential Code Compliant
  • Full structural details on all plans
  • Best plan price guarantee
  • Free modification Estimates
  • Builder-ready construction drawings
  • Expert advice from leading designers
  •  PDFs NOW!™ plans in minutes
  • 100% satisfaction guarantee
  • Free Home Building Organizer