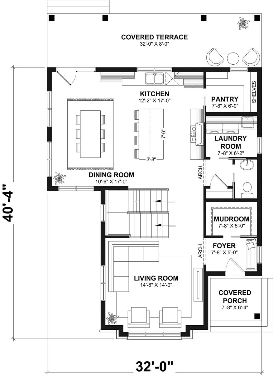
Designed for comfortable family living, this 1,864 square foot home blends function and warmth in a compact yet open layout. The main level centers around a spacious family room that flows naturally into the dining area and kitchen, creating an ideal setting for gathering and entertaining. The kitchen includes a generous island, walk-in pantry, butler’s pantry, and a country-style layout that emphasizes both charm and usability. A foyer with graceful arches welcomes guests, while the mud room and first-floor laundry help keep daily routines organized. Upstairs, the primary suite features a relaxing sitting area, walk-in closet, and a well-appointed bath with a separate tub and shower. Secondary bedrooms are thoughtfully placed nearby for convenience. Finished with a covered front porch, this home offers a warm and inviting design that feels comfortable from the moment you arrive.