15% off ALL House Plans Sitewide
15% off ALL House Plans Sitewide

House Plan: DFD-10705

See All 5 Photos > (photographs may reflect modified homes)
© copyright by designer
SQ FT
1,646
BEDS
3
BATHS
2
STORIES
1
CARS
2
HOUSE PLANS SALE 
START AT  $1,316.65
For questions and help, live chat, email or call us at 877-895-5299
Floor Plans
Click to Zoom In on Floor Plan
 
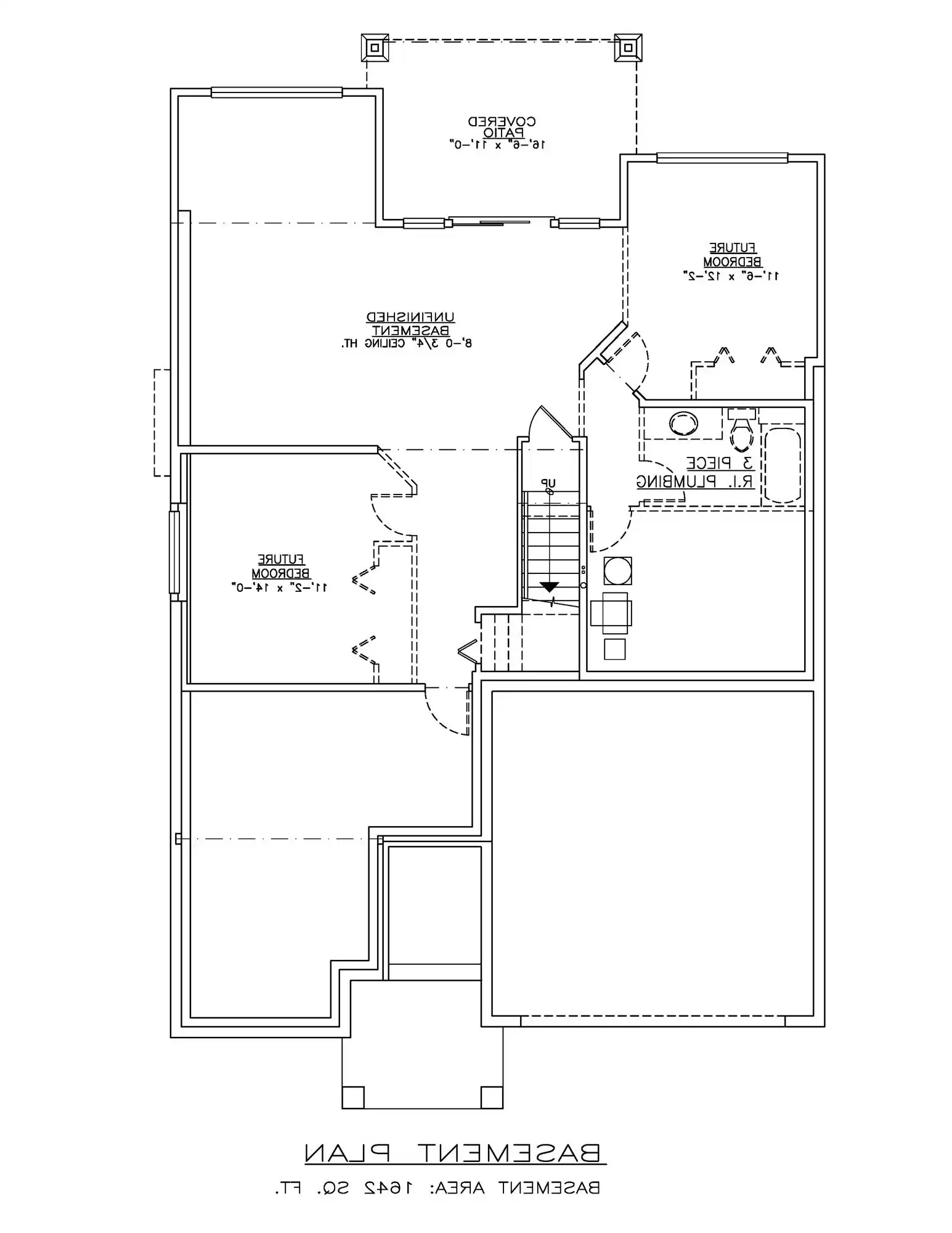
About House Plan 10705:
House Plan 10705 offers 1,646 square feet of stylish and practical living, wrapped in classic Craftsman character. The welcoming covered porch leads into a bright foyer that opens to the great room, where a gas fireplace and sliding doors to the covered deck create a warm and versatile gathering space. The open dining area and functional kitchen—with its island sink, walk-in pantry, and L-shaped counters—make entertaining and everyday living easy. A mudroom with laundry connects to the double garage for added convenience. The master suite provides a private retreat with a luxurious ensuite featuring a bayed-out soaking tub, glass shower, and double vanities, along with a generous walk-in closet. Two additional bedrooms share a full bath, with thoughtful details like a built-in desk and wide windows for natural light. The unfinished basement offers endless possibilities for a growing family or income suite. With its efficient layout, comfortable proportions, and flexible design, this home beautifully balances charm and practicality.
House Plan Pricing
STEP 1 Select Your Package

PDF Single Build


Digital plans emailed to you in PDF format that allows for printing copies and sharing electronically with contractors, subs, decorators, and more. This package includes a license to build the home one time.

PDF Single Build $1,549
Most recommended package

5 Printed Sets + PDF


Includes 5 physical printed blueprint sets, shipped free via UPS within the U.S. Printed sets ship within 1 business day and are delivered within 3 – 5 business days. A complimentary PDF plan set is also emailed within 1 business day for easy sharing and local printing. These plans may be used to construct one home.

5 Printed Sets + PDF $1,712
5 Printed Sets + PDF

CAD + PDF Single Build


This plan package is created in AutoCAD and delivered in .DWG format. CAD files are intended for use by design professionals, structural engineers, and builders to update plans for local building codes or to make revisions based on specific needs, lot requirements, and budget considerations. A complimentary PDF copy is included with this package for reference. CAD packages are delivered within 1 to 2 business days.
 
This package also comes with a copyright release for making revisions and printing unlimited copies.

For details on the specific CAD program used, please refer to the PLAN DETAILS section located above the floor plan on each plan page.

CAD + PDF Single Build $2,876
2D electronic editable computer files

CAD + PDF Unlimited Build


This plan package is created in AutoCAD and delivered in .DWG format. CAD files are intended for use by design professionals, structural engineers, and builders to update plans for local building codes or to make revisions based on specific needs, lot requirements, and budget considerations. A complimentary PDF copy is included with this package for reference. CAD packages are delivered within 1 to 2 business days.
 
This package also comes with a multi-use building license, granting permission to construct the home an unlimited number of times, along with a copyright release for making revisions and printing unlimited copies.
 
For details on the specific CAD program used, please refer to the PLAN DETAILS section located above the floor plan on each plan page.

CAD + PDF Unlimited Build $5,658
2D electronic editable computer files
STEP 2 Need To Reverse This Plan?
STEP 3 CHOOSE YOUR FOUNDATION
STEP 4 OPTIONAL ADD-ONS
Subtotal:
$1549
FREE SHIPPING

Note: B
 
Plan Details
See All Details
Finished Square Footage
1,646 Sq. Ft.
Main Level:
1,646 Sq. Ft.
Lower Level:
1,646 Sq. Ft.
Total:
Room Details
3
Bedrooms:
2
Full Baths:
General House Information
1
Number of Stories:
40' 0"
Width:
65' 4"
Depth:
Single
Dwelling Number:
Unfinished Square Footage
426 Sq. Ft.
Garage:
180 Sq. Ft.
Deck:
GARAGE
Front
Garage Location:
2
Garage Size:
Exterior Style
Cottage
Country
Craftsman
Farmhouse
Ranch
Traditional
Collections
Affordable
Budget
Builders
Canada
First Home
Open Floor Plan
Foundation
Basement
Crawl Space
Slab
Walkout Basement
Framing Information
Truss
Roof Framing:
2x6
Exterior Wall Framing:
Roof Pitch
6/12
Primary:
Insulation (R)
Per IRC Climate Zones
House And Ceiling Heights
9
First Floor Ceiling:
21' 6"
Maximum House Height:
Key Features
Attached
Country Kitchen
Covered Rear Porch
Deck
Double Vanity Sink
Fireplace
Foyer
Front-entry
Great Room
Kitchen Island
Laundry 1st Fl
L-Shaped
Primary Bdrm Main Floor
Mud Room
Open Floor Plan
Pantry
Separate Tub and Shower
Split Bedrooms
Storage Space
Suited for narrow lot
Suited for sloping lot
Suited for view lot
Unfinished Space
Walk-in Closet
Walk-in Pantry

Our Guarantees

  • Only the highest quality plans
  • Int’l Residential Code Compliant
  • Full structural details on all plans
  • Best plan price guarantee
  • Free modification Estimates
  • Builder-ready construction drawings
  • Expert advice from leading designers
  •  PDFs NOW!™ plans in minutes
  • 100% satisfaction guarantee
  • Free Home Building Organizer

See terms opt out anytime