20% Off House Plans Sitewide Ends Thursday
20% Off House Plans Sitewide Ends Thursday

House Plan: DFD-10767

See All 49 Photos > (photographs may reflect modified homes)
© copyright by designer
SQ FT
2,623
BEDS
5
BATHS
4.5
STORIES
2
CARS
2
HOUSE PLANS SALE 
START AT  $1,640.00
For questions and help, live chat, email or call us at 877-895-5299
Floor Plans
Click to Zoom In on Floor Plan
 
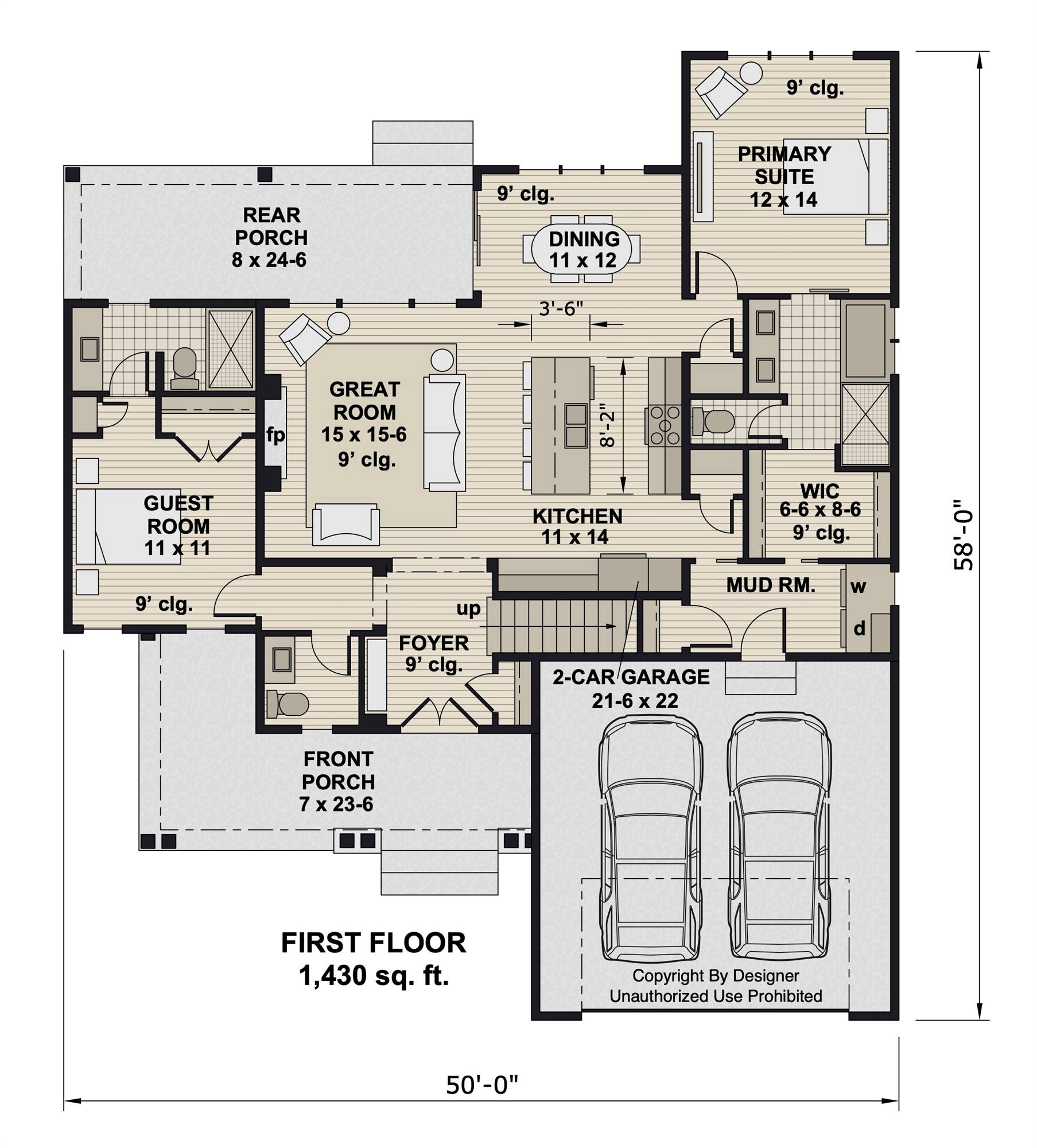
About House Plan 10767:

Designed with today’s families in mind, House Plan 10768 is a versatile 2-story Craftsman-style home offering 5 bedrooms, 4.5 bathrooms, and 2,623 sq. ft. of well-balanced living space.

At its core, the open-concept layout blends the kitchen, dining area, and great room—perfect for daily living or weekend hosting. A central fireplace adds warmth, while the oversized island creates a natural gathering point. Step out to the covered rear porch for effortless outdoor enjoyment. The main floor primary suite is both stylish and functional, featuring dual sinks, a walk-in shower, and a spacious closet. Also on this level is a guest suite with a private full bath, plus a mudroom and powder room for added day-to-day ease.

Upstairs, you'll find 3 additional bedrooms, 2 full baths, a cozy loft, and a flexible bonus room—perfect as a media lounge, playroom, or remote work setup.

Timeless curb appeal meets everyday practicality in House Plan 10768—a Craftsman home built to support dynamic, modern living.

House Plan Pricing
STEP 1 Select Your Package

PDF Single Build


Digital plans emailed to you in PDF format that allows for printing copies and sharing electronically with contractors, subs, decorators, and more. This package includes a license to build the home one time.

PDF Single Build $2,050
Most recommended package

5 Printed Sets


Five Printed Sets of Residential Construction Drawings are typically 24” x 36” documents and come with a license to construct a single residence shipped to a physical address. Keep in mind PDF Plan Packages are our most popular choice which allows you to print as many copies as you need and to electronically send files to your builder, subcontractors, etc.

5 Printed Sets $2,250
Five printed sets of house plans

8 Printed Sets


Eight Printed Sets of Construction Drawings, typically 24” x 36” documents, with a license to construct a single residence shipped to your physical address. PDF Plan Packages are our most popular choice which allows you to print as many copies as you need and to electronically send files to your builder, subcontractors, bank/mortgage reps, material stores, decorators and more.

8 Printed Sets $2,350
Eight printed sets of house plans

5 Printed Sets + PDF


Digital plan emailed to you in PDF format that allows for printing copies on a home printer or local print shop and sharing with contractors, subs, decorators, and more. PLUS five printed sets shipped and delivered 3-5 business days.

5 Printed Sets + PDF $2,350
Digital plans plus 5 printed sets

CAD + PDF Single Build


CAD files are a complete set of construction drawings delivered electronically. They can be used for any type of modification—including major design changes and engineering—and include a release granting permission to modify the plan. Most CAD plan orders are emailed the same or next business day.
 
This package also comes with a PDF set of plans and a copyright release for making modifications and printing unlimited copies.
 
CAD files are provided in .dwg format. For details on the specific CAD program used, please refer to the PLAN DETAILS section located above the floor plan on each plan’s page.

CAD + PDF Single Build $2,700
2D electronic editable computer files
STEP 2 Need To Reverse This Plan?
STEP 3 CHOOSE YOUR FOUNDATION
STEP 4 OPTIONAL ADD-ONS
Subtotal:
$2050
FREE SHIPPING
 
Plan Details
See All Details
Finished Square Footage
1,430 Sq. Ft.
Main Level:
1,193 Sq. Ft.
Upper Level:
2,623 Sq. Ft.
Total:
Room Details
5
Bedrooms:
4
Full Baths:
1
Half Baths:
General House Information
2
Number of Stories:
50' 0"
Width:
58' 0"
Depth:
Single
Dwelling Number:
2nd Floor
Bonus Access:
Unfinished Square Footage
473 Sq. Ft.
Garage:
GARAGE
Front
Garage Location:
2
Garage Size:
Exterior Style
Bungalow
Modern Farmhouse
Transitional
Collections
Affordable
Kitchens
Primary Suites
Open Floor Plan
Outdoor Living
Split Bedroom
Foundation
Basement foundation
Crawl Space
Daylight Basement
Slab Foundation
Walkout Basement
Framing Information
Truss
Roof Framing:
2x6
Exterior Wall Framing:
Roof Pitch
8/12
Primary:
Insulation (R)
House And Ceiling Heights
9
First Floor Ceiling:
8
Second Floor Ceiling:
26' 0"
Maximum House Height:
Key Features
Attached
Bonus Room
Covered Front Porch
Covered Rear Porch
Dining Room
Double Vanity Sink
Fireplace
Foyer
Front-entry
Great Room
Guest Suite
Home Office
Kitchen Island
Laundry 1st Fl
L-Shaped
Primary Bdrm Main Floor
Mud Room
Open Floor Plan
Pantry
Peninsula / Eating Bar
Separate Tub and Shower
Split Bedrooms
Walk-in Closet

Our Guarantees

  • Only the highest quality plans
  • Int’l Residential Code Compliant
  • Full structural details on all plans
  • Best plan price guarantee
  • Free modification Estimates
  • Builder-ready construction drawings
  • Expert advice from leading designers
  •  PDFs NOW!™ plans in minutes
  • 100% satisfaction guarantee
  • Free Home Building Organizer