15% off ALL House Plans Sitewide
15% off ALL House Plans Sitewide

House Plan: DFD-10835

See All 1 Photos > (photographs may reflect modified homes)
© copyright by designer
SQ FT
1,026
BEDS
2
BATHS
2
STORIES
2
CARS
0
HOUSE PLANS SALE 
START AT  $1,232.50
For questions and help, live chat, email or call us at 877-895-5299
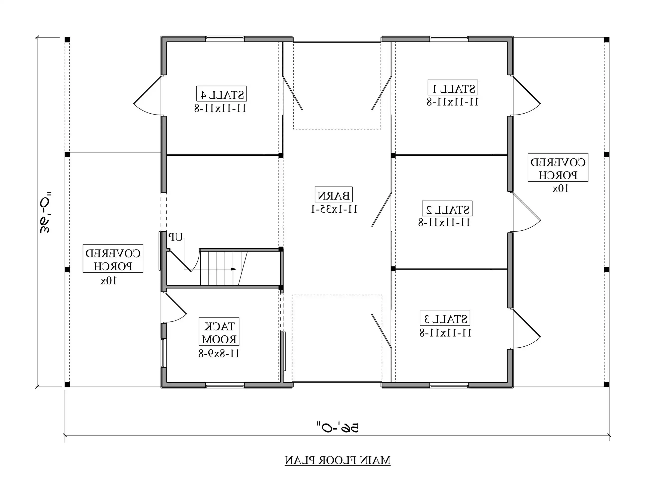
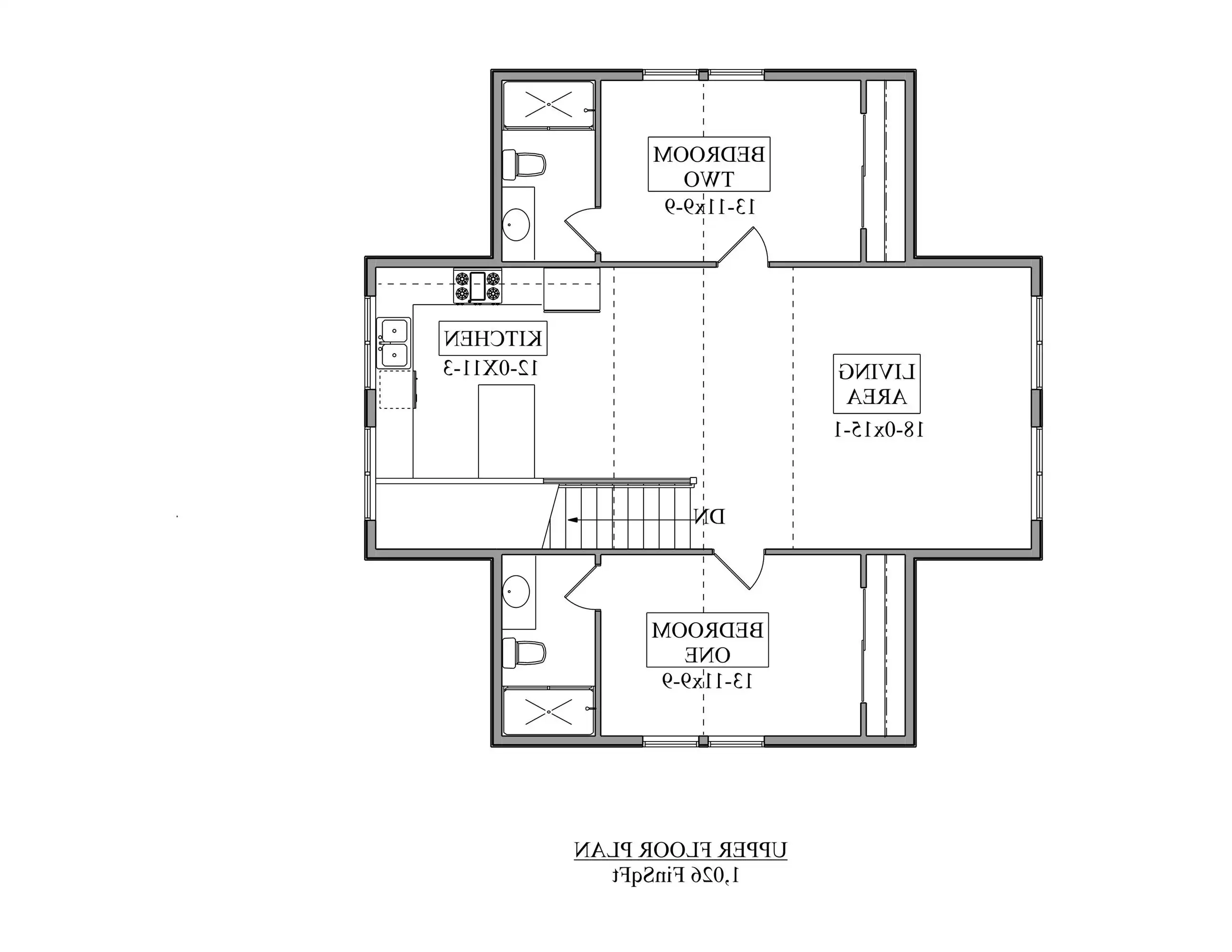
Floor Plans
Click to Zoom In on Floor Plan
 
About House Plan 10835:
This multi-purpose country barn design is ideal for equestrian enthusiasts and property owners looking for functional living space. The main level includes four horse stalls, a dedicated tack room, and two covered porches—perfect for working with animals or enjoying quiet outdoor moments. Upstairs, a 1,026 sq. ft. apartment offers 2 bedrooms and 2 bathrooms, providing comfortable accommodations for guests, caretakers, or extended family. The living quarters are well-suited as an accessory dwelling unit (ADU) or rental opportunity. With a thoughtful layout and rustic appeal, this barn plan supports both daily animal care and modern living. Its efficient footprint and dual-purpose design make it a great addition to farms, ranches, or large residential lots. Blending country charm with practical features, this structure meets a variety of lifestyle needs.
House Plan Pricing
STEP 1 Select Your Package

PDF Single Build


Digital plans emailed to you in PDF format that allows for printing copies and sharing electronically with contractors, subs, decorators, and more. This package includes a license to build the home one time.

PDF Single Build $1,450
Most recommended package

5 Printed Sets + PDF


Includes 5 physical printed blueprint sets, shipped free via UPS within the U.S. Printed sets ship within 1 business day and are delivered within 3 – 5 business days. A complimentary PDF plan set is also emailed within 1 business day for easy sharing and local printing. These plans may be used to construct one home.

5 Printed Sets + PDF $1,800
5 Printed Sets + PDF

PDF Unlimited Build


Digital plans with an unlimited build license emailed in PDF format, that allows for printing copies on a home printer or local print shop and sharing with contractors, subs, decorators and more 

PDF Unlimited Build $2,125
Digital plans including unlimited build license

CAD + PDF Single Build


This plan package is created in AutoCAD and delivered in .DWG format. CAD files are intended for use by design professionals, structural engineers, and builders to update plans for local building codes or to make revisions based on specific needs, lot requirements, and budget considerations. A complimentary PDF copy is included with this package for reference. CAD packages are delivered within 1 to 2 business days.
 
This package also comes with a copyright release for making revisions and printing unlimited copies.

For details on the specific CAD program used, please refer to the PLAN DETAILS section located above the floor plan on each plan page.

CAD + PDF Single Build $2,750
2D electronic editable computer files

CAD Unlimited Build


CAD files are a complete set of construction drawings delivered electronically. They can be used for any type of modification—including major design changes and engineering—and include a release granting permission to modify the plan. Most CAD plan orders are emailed the same or next business day. CAD files are provided in .dwg format. For details on the specific CAD program used, please refer to the PLAN DETAILS section located above the floor plan on each plan’s page.
CAD Unlimited Build $4,075
2D electronic editable computer files
STEP 2 Need To Reverse This Plan?
STEP 3 CHOOSE YOUR FOUNDATION
STEP 4 OPTIONAL ADD-ONS
Subtotal:
$1450
FREE SHIPPING
 
Plan Details
See All Details
Finished Square Footage
1,026 Sq. Ft.
Main Level:
1,026 Sq. Ft.
Total:
Room Details
2
Bedrooms:
2
Full Baths:
General House Information
2
Number of Stories:
56' 0"
Width:
36' 0"
Depth:
Apartment
Dwelling Number:
None
Bonus Access:
Unfinished Square Footage
600 Sq. Ft.
Porch:
GARAGE
0
Garage Size:
Exterior Style
Barndominium
Cottage
Country
Farmhouse
Collections
Affordable
Mountain
Open Floor Plan
Pet Lovers
Split Bedroom
Foundation
Basement
Crawl Space
Slab
Framing Information
Truss
Roof Framing:
2x6
Exterior Wall Framing:
Roof Pitch
8/12
Primary:
3/12
Secondary:
Insulation (R)
House And Ceiling Heights
10
First Floor Ceiling:
9
Second Floor Ceiling:
25' 10"
Maximum House Height:
Key Features
2 Primary Suites
Covered Front Porch
Covered Rear Porch
Great Room
Kitchen Island
L-Shaped
Primary Bdrm Upstairs
Open Floor Plan
Split Bedrooms
Storage Space
Suited for narrow lot
Suited for view lot
Workshop

Our Guarantees

  • Only the highest quality plans
  • Int’l Residential Code Compliant
  • Full structural details on all plans
  • Best plan price guarantee
  • Free modification Estimates
  • Builder-ready construction drawings
  • Expert advice from leading designers
  •  PDFs NOW!™ plans in minutes
  • 100% satisfaction guarantee
  • Free Home Building Organizer

See terms opt out anytime