22% Off House Plans Sitewide Ends 12/03
22% Off House Plans Sitewide Ends 12/03

House Plan: DFD-11079

See All 5 Photos > (photographs may reflect modified homes)
© copyright by architect
SQ FT
2,246
BEDS
3
BATHS
2.5
STORIES
1
CARS
2
HOUSE PLANS SALE 
START AT  $1,127.10
For questions and help, live chat, email or call us at 877-895-5299
Floor Plans
Click to Zoom In on Floor Plan
 
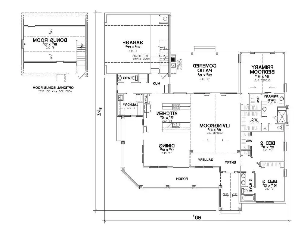
About House Plan 11079:
House Plan 11079 is a gorgeous country home with rustic style! It offers 2,246 square feet with three bedrooms and two-and-a-half bathrooms on one level. The great room welcomes you in with a vaulted ceiling over the living space and the island kitchen open to the dining area on the side. The bedrooms are all placed on one side, with two and a hall bath in front and the four-piece primary suite with his-and-her closets in back. The garage is located on the opposite side of the house, in the rear with side entry. It connects through a mudroom with the laundry room, powder room, and access to the over-garage bonus, should you want. A wraparound porch in front and a covered patio with an outdoor kitchen in back complete this design! 
House Plan Pricing
STEP 1 Select Your Package

PDF Single Build


Digital plans emailed to you in PDF format that allows for printing copies and sharing electronically with contractors, subs, decorators, and more. This package includes a license to build the home one time.

PDF Single Build $1,445
Most recommended package

CAD + PDF Single Build


CAD files are a complete set of construction drawings delivered electronically. They can be used for any type of modification—including major design changes and engineering—and include a release granting permission to modify the plan. Most CAD plan orders are emailed the same or next business day.
 
This package also comes with a PDF set of plans and a copyright release for making modifications and printing unlimited copies.
 
CAD files are provided in .dwg format. For details on the specific CAD program used, please refer to the PLAN DETAILS section located above the floor plan on each plan’s page.

CAD + PDF Single Build $2,445

States N/A: TX,NM,LA,AR
2D electronic editable computer files
STEP 2 Need To Reverse This Plan?
STEP 3 CHOOSE YOUR FOUNDATION
STEP 4 OPTIONAL ADD-ONS
Subtotal:
$1445
FREE SHIPPING
IMPORTANT NOTE: Due to state regulations, the CAD version may not be sold to residents of AL, TN, TX, NM and LA. If residing in any of the aforementioned states, the PDF version does not come with a release to make plan modifications. Modifications can be provided by the original architect. Please contact us for more information.
 
Plan Details
See All Details
Finished Square Footage
2,246 Sq. Ft.
Main Level:
2,246 Sq. Ft.
Total:
Room Details
3
Bedrooms:
2
Full Baths:
1
Half Baths:
General House Information
1
Number of Stories:
69' 7"
Width:
74' 8"
Depth:
Single
Dwelling Number:
2nd Floor
Bonus Access:
Unfinished Square Footage
471 Sq. Ft.
Garage:
545 Sq. Ft.
Front Porch:
407 Sq. Ft.
Deck:
306 Sq. Ft.
Bonus Room:
GARAGE
Rear
Garage Location:
2
Garage Size:
Exterior Style
Country
Farmhouse
Ranch
Southern
Collections
Kitchens
Primary Suites
Open Floor Plan
Outdoor Living
Foundation
Basement
Crawl Space
Slab
Framing Information
Stick
Roof Framing:
2x4
Exterior Wall Framing:
Roof Pitch
10/12
Primary:
12/12
Gable:
4/12
Dormer:
5/12
Porch:
Roof Load
20
Live:
Insulation (R)
Per IRC Climate Zones
House And Ceiling Heights
10
First Floor Ceiling:
8
Second Floor Ceiling:
24' 7"
Maximum House Height:
Key Features
Attached
Bonus Room
Covered Front Porch
Covered Rear Porch
Dining Room
Double Vanity Sink
Great Room
His and Hers Primary Closets
Kitchen Island
Laundry 1st Fl
L-Shaped
Primary Bdrm Main Floor
Mud Room
Open Floor Plan
Outdoor Kitchen
Outdoor Living Space
Pantry
Peninsula / Eating Bar
Side-entry
Suited for corner lot
Vaulted Ceilings
Vaulted Great Room/Living
Vaulted Primary
Walk-in Closet
Wraparound Porch

Our Guarantees

  • Only the highest quality plans
  • Int’l Residential Code Compliant
  • Full structural details on all plans
  • Best plan price guarantee
  • Free modification Estimates
  • Builder-ready construction drawings
  • Expert advice from leading designers
  •  PDFs NOW!™ plans in minutes
  • 100% satisfaction guarantee
  • Free Home Building Organizer

See terms opt out anytime