15% off ALL House Plans Sitewide
15% off ALL House Plans Sitewide

House Plan: DFD-11282

See All 2 Photos > (photographs may reflect modified homes)
© copyright by designer
SQ FT
3,143
BEDS
4
BATHS
3.5
STORIES
2
CARS
3
HOUSE PLANS SALE 
START AT  $1,657.50
For questions and help, live chat, email or call us at 877-895-5299
Floor Plans
Click to Zoom In on Floor Plan
 
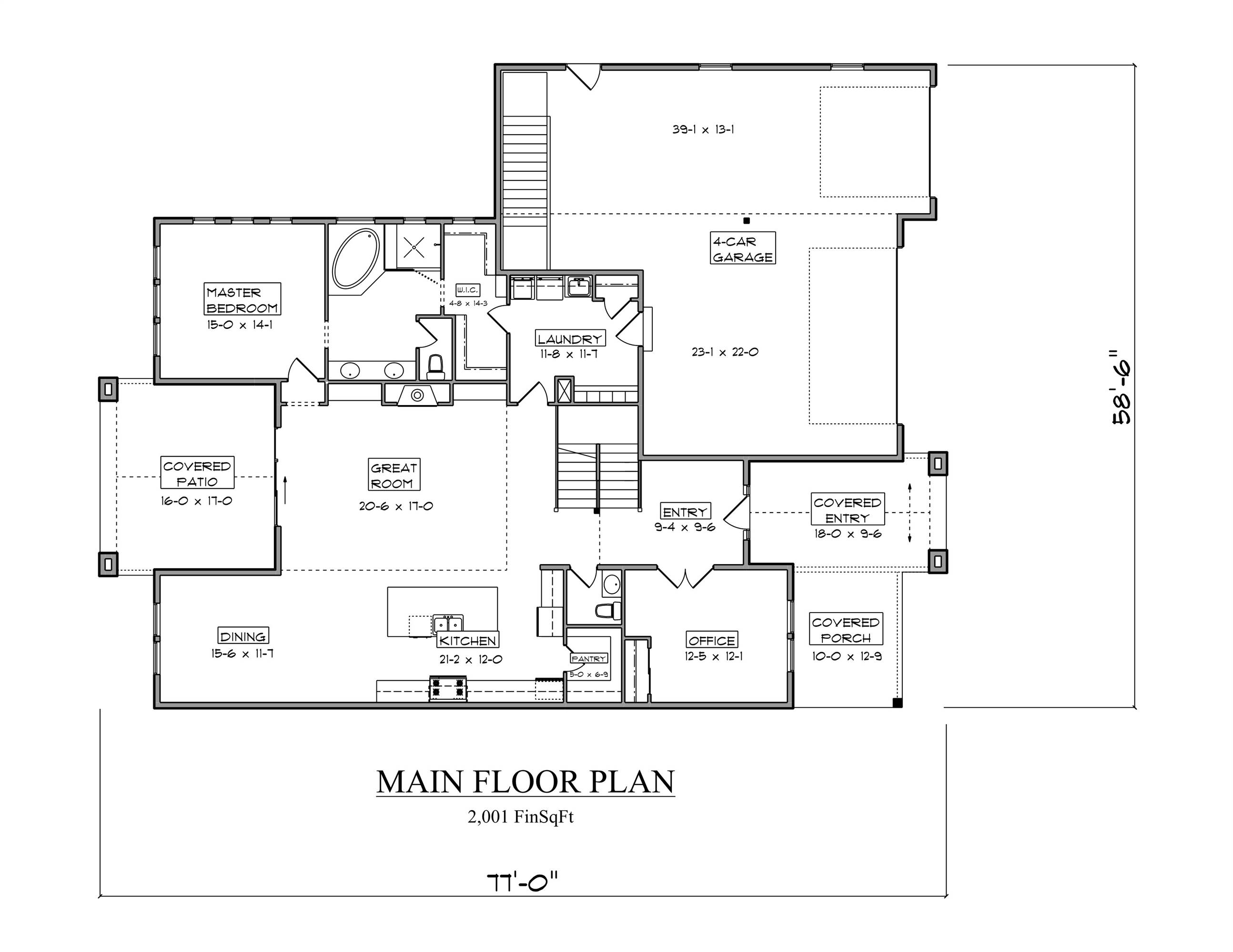
About House Plan 11282:
House Plan 11282, Morgan Valley, combines Craftsman-inspired design with functional family living across 3,143 square feet. The covered front porch opens to a welcoming foyer and a bright, open main floor with a spacious great room, dining area, and gourmet kitchen featuring a large island and butler’s pantry. The first-floor master suite offers privacy, a spa-like bath, and direct laundry access. Upstairs, a loft connects three additional bedrooms and a shared Jack and Jill bath, creating versatile space for family or guests. With 583 square feet of outdoor living and a 3-car garage totaling 1,135 square feet, this design blends everyday comfort with timeless st
House Plan Pricing
STEP 1 Select Your Package

PDF Single Build


Digital plans emailed to you in PDF format that allows for printing copies and sharing electronically with contractors, subs, decorators, and more. This package includes a license to build the home one time.

PDF Single Build $1,950
Most recommended package

PDF Unlimited Build


Digital plans with an unlimited build license emailed in PDF format, that allows for printing copies on a home printer or local print shop and sharing with contractors, subs, decorators and more 

PDF Unlimited Build $2,775
Digital plans including unlimited build license

CAD + PDF Single Build


CAD files are a complete set of construction drawings delivered electronically. They can be used for any type of modification—including major design changes and engineering—and include a release granting permission to modify the plan. Most CAD plan orders are emailed the same or next business day.
 
This package also comes with a PDF set of plans and a copyright release for making modifications and printing unlimited copies.
 
CAD files are provided in .dwg format. For details on the specific CAD program used, please refer to the PLAN DETAILS section located above the floor plan on each plan’s page.

CAD + PDF Single Build $3,450
2D electronic editable computer files

CAD Unlimited Build


CAD files are a complete set of construction drawings delivered electronically. They can be used for any type of modification—including major design changes and engineering—and include a release granting permission to modify the plan. Most CAD plan orders are emailed the same or next business day. CAD files are provided in .dwg format. For details on the specific CAD program used, please refer to the PLAN DETAILS section located above the floor plan on each plan’s page.
CAD Unlimited Build $5,025
2D electronic editable computer files
STEP 2 Need To Reverse This Plan?
STEP 3 CHOOSE YOUR FOUNDATION
STEP 4 OPTIONAL ADD-ONS
Subtotal:
$1950
FREE SHIPPING
 
Plan Details
See All Details
Finished Square Footage
2,001 Sq. Ft.
Main Level:
1,142 Sq. Ft.
Upper Level:
2,001 Sq. Ft.
Lower Level:
3,143 Sq. Ft.
Total:
Room Details
4
Bedrooms:
3
Full Baths:
1
Half Baths:
General House Information
2
Number of Stories:
36' 6"
Width:
69' 0"
Depth:
Single
Dwelling Number:
None
Bonus Access:
Unfinished Square Footage
1135 Sq. Ft.
Garage:
583 Sq. Ft.
Porch:
GARAGE
Front
Garage Location:
3
Garage Size:
Exterior Style
Contemporary
Country
Farmhouse
Lake
Modern
Modern Farmhouse
Transitional
Collections
Kitchens
Primary Suites
Mountain
Open Floor Plan
Foundation
Basement
Crawl Space
Slab
Framing Information
Truss
Roof Framing:
2x6
Exterior Wall Framing:
Roof Pitch
10/12
Primary:
3/12
Secondary:
Insulation (R)
House And Ceiling Heights
9
First Floor Ceiling:
9
Second Floor Ceiling:
28' 3"
Maximum House Height:
Key Features
Attached
Covered Front Porch
Covered Rear Porch
Dining Room
Double Vanity Sink
Family Style
Fireplace
Front-entry
Great Room
Kitchen Island
Laundry 2nd Fl
L-Shaped
Primary Bdrm Main Floor
Nook / Breakfast Area
RV Garage
Split Bedrooms
Storage Space
Walk-in Closet
Walk-in Pantry

Our Guarantees

  • Only the highest quality plans
  • Int’l Residential Code Compliant
  • Full structural details on all plans
  • Best plan price guarantee
  • Free modification Estimates
  • Builder-ready construction drawings
  • Expert advice from leading designers
  •  PDFs NOW!™ plans in minutes
  • 100% satisfaction guarantee
  • Free Home Building Organizer