15% off ALL House Plans Sitewide
15% off ALL House Plans Sitewide
 Save   |  Cost-To-Build  |  Print  |  Modify Plan

House Plan: DFD-11291

See All 1 Photos > (photographs may reflect modified homes)
© copyright by designer
SQ FT
743
BEDS
0
BATHS
1
STORIES
2
CARS
3
HOUSE PLANS SALE 
START AT  $892.50
For questions and help, live chat, email or call us at 877-895-5299
Floor Plans
Click to Zoom In on Floor Plan
 
About House Plan 11291:
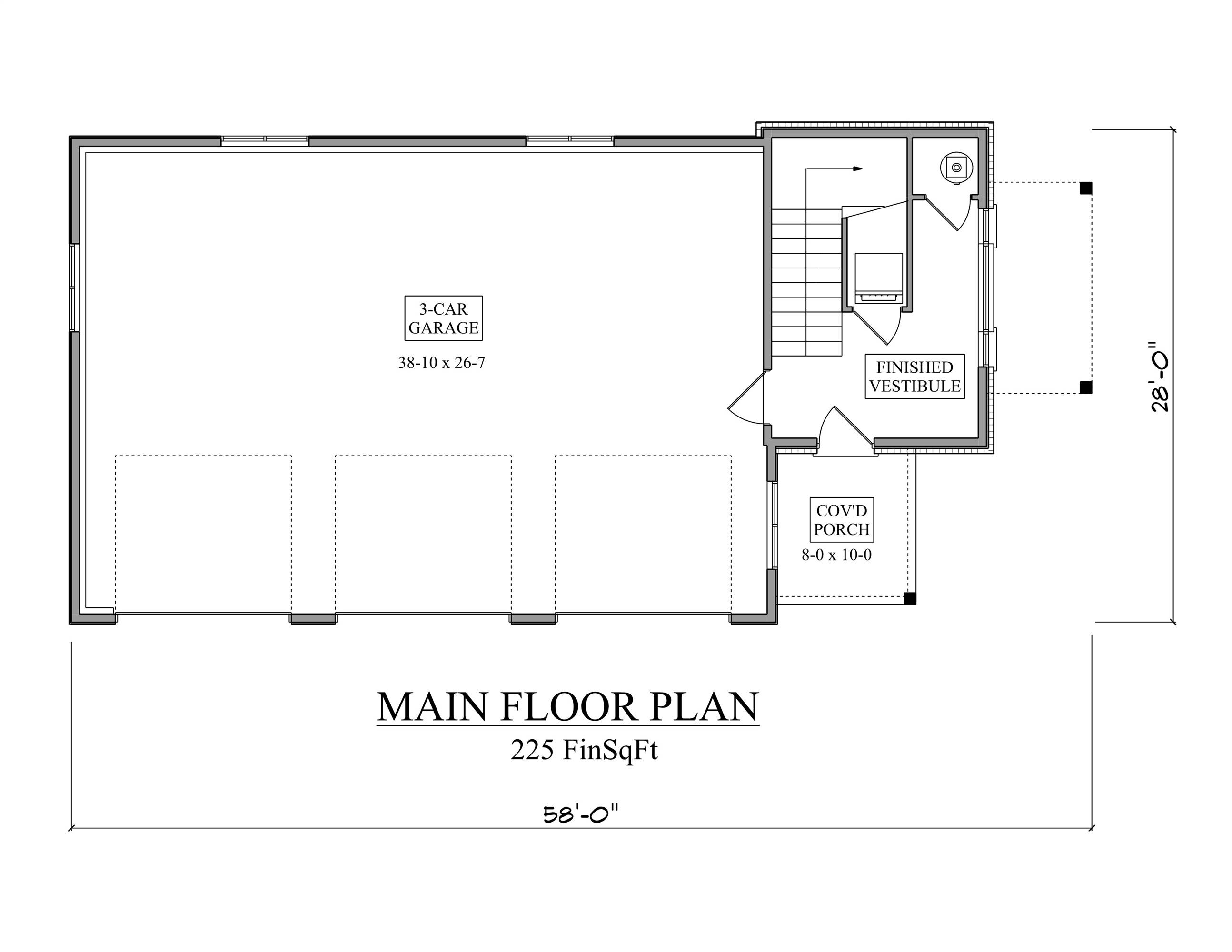
House Plan 11291 is a two-story detached garage plan that pairs practical parking with flexible finished space above. The main level features a three car garage, a finished vestibule, and a covered front porch that adds convenience and curb appeal. Upstairs, the layout includes a dedicated home office, a full bathroom, and a large art studio that can flex into a workshop, hobby room, or creative retreat. An upper-level deck expands the plan’s outdoor living potential and is especially appealing for scenic settings. This design includes 743 square feet of heated living space plus 1,090 square feet of unheated garage area, making it a strong option for homeowners who need storage and a separate work zone. Whether you’re planning for a lake property, a view lot, or simply want a garage that multitasks, this plan delivers smart space in a compact footprint.
House Plan Pricing
STEP 1 Select Your Package

PDF Single Build


Digital plans emailed to you in PDF format that allows for printing copies and sharing electronically with contractors, subs, decorators, and more. This package includes a license to build the home one time.

PDF Single Build $1,050
Most recommended package

5 Printed Sets + PDF


Includes 5 physical printed blueprint sets, shipped free via UPS within the U.S. Printed sets ship within 1 business day and are delivered within 3 – 5 business days. A complimentary PDF plan set is also emailed within 1 business day for easy sharing and local printing. These plans may be used to construct one home.

5 Printed Sets + PDF $1,400
5 Printed Sets + PDF

CAD + PDF Single Build


This plan package is created in AutoCAD and delivered in .DWG format. CAD files are intended for use by design professionals, structural engineers, and builders to update plans for local building codes or to make revisions based on specific needs, lot requirements, and budget considerations. A complimentary PDF copy is included with this package for reference. CAD packages are delivered within 1 to 2 business days.
 
This package also comes with a copyright release for making revisions and printing unlimited copies.

For details on the specific CAD program used, please refer to the PLAN DETAILS section located above the floor plan on each plan page.

CAD + PDF Single Build $1,550
2D electronic editable computer files
STEP 2 Need To Reverse This Plan?
STEP 3 CHOOSE YOUR FOUNDATION
STEP 4 OPTIONAL ADD-ONS
Subtotal:
$1050
FREE SHIPPING
 
Plan Details
See All Details
Finished Square Footage
225 Sq. Ft.
Main Level:
518 Sq. Ft.
Upper Level:
743 Sq. Ft.
Total:
Room Details
1
Full Baths:
General House Information
2
Number of Stories:
52' 0"
Width:
28' 0"
Depth:
Garage
Dwelling Number:
None
Bonus Access:
Unfinished Square Footage
1090 Sq. Ft.
Garage:
80 Sq. Ft.
Porch:
GARAGE
Front
Garage Location:
3
Garage Size:
Exterior Style
Cape Cod
Coastal
Cottage
Craftsman
Lake
Collections
Affordable
Budget
Home Addition
Mountain
Open Floor Plan
Vacation
Foundation
Slab
Framing Information
Truss
Roof Framing:
2x6
Exterior Wall Framing:
Roof Pitch
12/12
Primary:
Insulation (R)
House And Ceiling Heights
10
First Floor Ceiling:
8
Second Floor Ceiling:
25' 4"
Maximum House Height:
Key Features
Covered Front Porch
Deck
Detached
Foyer
Front-entry
Home Office
L-Shaped
Storage Space
Suited for view lot

Our Guarantees

  • Only the highest quality plans
  • Int’l Residential Code Compliant
  • Full structural details on all plans
  • Best plan price guarantee
  • Free modification Estimates
  • Builder-ready construction drawings
  • Expert advice from leading designers
  •  PDFs NOW!™ plans in minutes
  • 100% satisfaction guarantee
  • Free Home Building Organizer