15% off ALL House Plans Sitewide
15% off ALL House Plans Sitewide

House Plan: DFD-11341

See All 2 Photos > (photographs may reflect modified homes)
© copyright by designer
SQ FT
1,816
BEDS
3
BATHS
2
STORIES
1.5
CARS
2
HOUSE PLANS SALE 
START AT  $1,105.00
For questions and help, live chat, email or call us at 877-895-5299
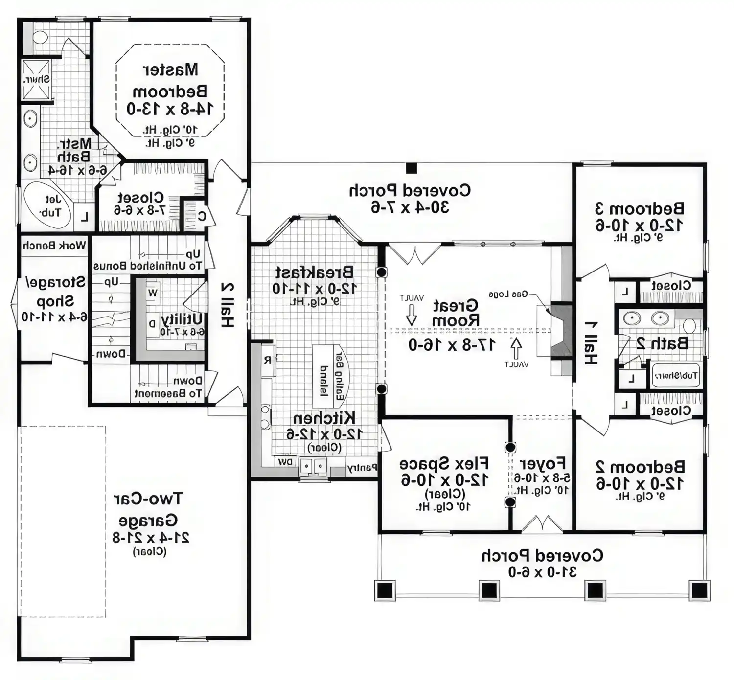
Floor Plans
Click to Zoom In on Floor Plan
 
About House Plan 11341:
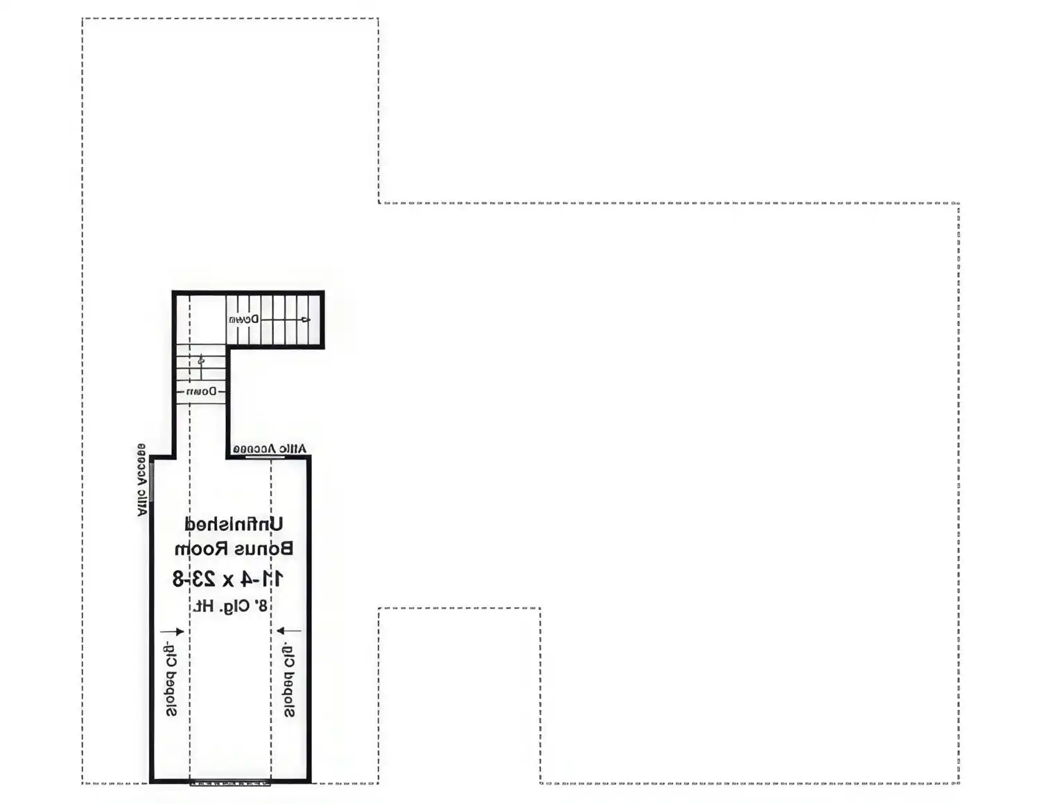
Plan 11341 combines farmhouse charm with a practical layout that fits today’s busy lifestyles. The inviting front porch opens to a bright foyer and vaulted great room centered around a fireplace, seamlessly connected to the kitchen with a large island, walk-in pantry, and a sunny breakfast nook that overlooks the rear covered porch. The private owner’s suite features a tray ceiling, luxurious bath with soaking tub, dual vanities, separate shower, and a spacious walk-in closet that connects directly to the laundry room. Two secondary bedrooms share a full bath across the home, and a versatile front room offers space for a home office, study, or playroom. An upstairs bonus room adds flexibility for future needs, while a two-car garage and ample storage complete this design that balances comfort, style, and everyday functionality.
House Plan Pricing
STEP 1 Select Your Package

Study Set - Printed


One printed set of house plans stamped NOT FOR CONSTRUCTION". This set is intended for review purposes and are mailed to you. To build from the plans, you need to upgrade to a licensed set.
Study Set - Printed $1,150
One Printed Set - Not for Construction

PDF Single Build


Digital plans emailed to you in PDF format that allows for printing copies and sharing electronically with contractors, subs, decorators, and more. This package includes a license to build the home one time.

PDF Single Build $1,300
Most recommended package

5 Printed Sets


Five Printed Sets of Residential Construction Drawings are typically 24” x 36” documents and come with a license to construct a single residence shipped to a physical address. Keep in mind PDF Plan Packages are our most popular choice which allows you to print as many copies as you need and to electronically send files to your builder, subcontractors, etc.

5 Printed Sets $1,400
Five printed sets of house plans

5 Printed Sets + PDF


Includes 5 physical printed blueprints shipped and delivered within 3-5 business days and a copyright release license to construct one home and to make copies. A complimentary PDF plan set is also emailed within 1 business day for easy sharing and local printing. 

5 Printed Sets + PDF $1,600
5 Printed Sets + PDF

CAD + PDF Single Build


This plan package is created in AutoCAD and delivered in .DWG format. CAD files are intended for use by design professionals, structural engineers, and builders to update plans for local building codes or to make revisions based on specific needs, lot requirements, and budget considerations. A complimentary PDF copy is included with this package for reference. CAD packages are delivered within 1 to 2 business days.
 
This package also comes with a copyright release for making revisions and printing unlimited copies.

For details on the specific CAD program used, please refer to the PLAN DETAILS section located above the floor plan on each plan page.

CAD + PDF Single Build $1,950
2D electronic editable computer files
STEP 2 Need To Reverse This Plan?
STEP 3 CHOOSE YOUR FOUNDATION
STEP 4 OPTIONAL ADD-ONS
Subtotal:
$1300
FREE SHIPPING
 
Plan Details
See All Details
Finished Square Footage
1,816 Sq. Ft.
Main Level:
1,816 Sq. Ft.
Total:
Room Details
3
Bedrooms:
2
Full Baths:
General House Information
1.5
Number of Stories:
65' 0"
Width:
60' 8"
Depth:
Single
Dwelling Number:
Unfinished Square Footage
730 Sq. Ft.
Garage:
186 Sq. Ft.
Front Porch:
211 Sq. Ft.
Rear Porch:
350 Sq. Ft.
Bonus Room:
GARAGE
Side
Garage Location:
2
Garage Size:
Exterior Style
Country
Craftsman
Farmhouse
Traditional
Collections
Builders
Empty Nester
First Home
Open Floor Plan
Split Bedroom
Foundation
Basement
Crawl Space
Slab
Framing Information
Stick
Roof Framing:
2x4
Exterior Wall Framing:
Roof Pitch
8 in 12
Primary:
12 in 12
Secondary:
Roof Load
30
Live:
10
Dead:
40
Wind:
Insulation (R)
15
Exterior Wall:
38
Interior Wall:
19
Ceiling:
19
Floor:
House And Ceiling Heights
9
First Floor Ceiling:
23' 7"
Maximum House Height:
Key Features
Attached
Bonus Room
Country Kitchen
Covered Front Porch
Covered Rear Porch
Dining Room
Double Vanity Sink
Exercise Room
Fireplace
Formal LR
Foyer
Great Room
Home Office
Kitchen Island
Laundry 1st Fl
Library/Media Rm
L-Shaped
Primary Bdrm Main Floor
Nook / Breakfast Area
Open Floor Plan
Oversized
Pantry
Peninsula / Eating Bar
Rec Room
Separate Tub and Shower
Split Bedrooms
Storage Space
Unfinished Space
Vaulted Ceilings
Vaulted Great Room/Living
Walk-in Closet

Our Guarantees

  • Only the highest quality plans
  • Int’l Residential Code Compliant
  • Full structural details on all plans
  • Best plan price guarantee
  • Free modification Estimates
  • Builder-ready construction drawings
  • Expert advice from leading designers
  •  PDFs NOW!™ plans in minutes
  • 100% satisfaction guarantee
  • Free Home Building Organizer