15% off ALL House Plans Sitewide
15% off ALL House Plans Sitewide

House Plan: DFD-11372

See All 4 Photos > (photographs may reflect modified homes)
© copyright by designer
SQ FT
2,151
BEDS
3
BATHS
2.5
STORIES
1.5
CARS
3
HOUSE PLANS SALE 
START AT  $1,228.25
For questions and help, live chat, email or call us at 877-895-5299
Floor Plans
Click to Zoom In on Floor Plan
 
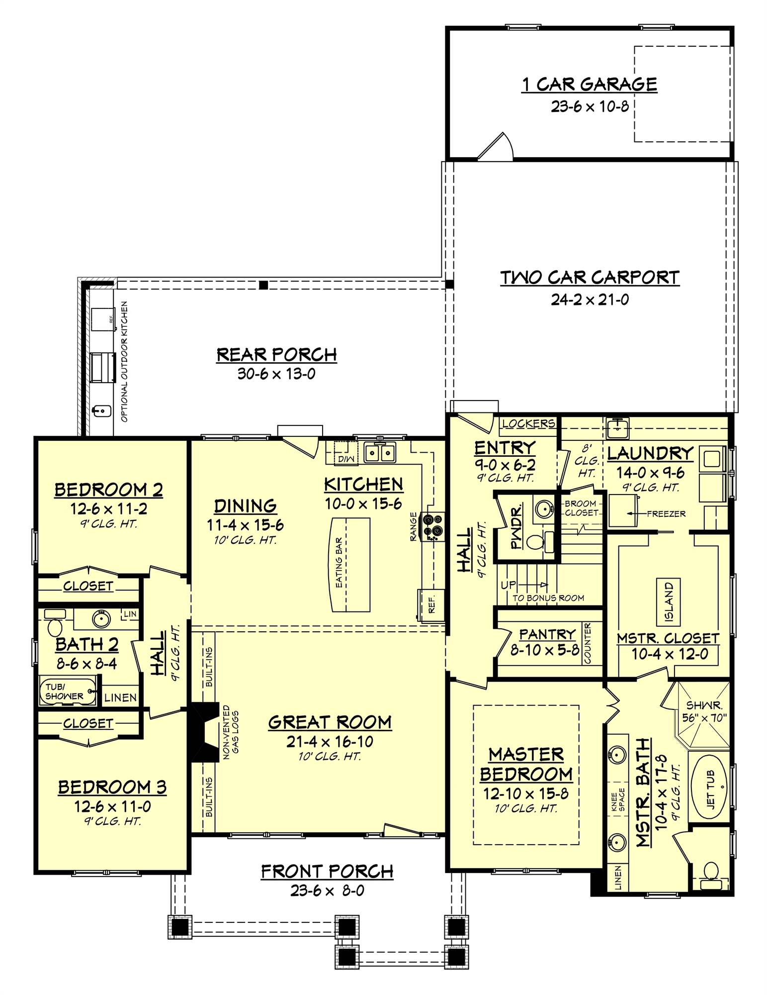
About House Plan 11372:
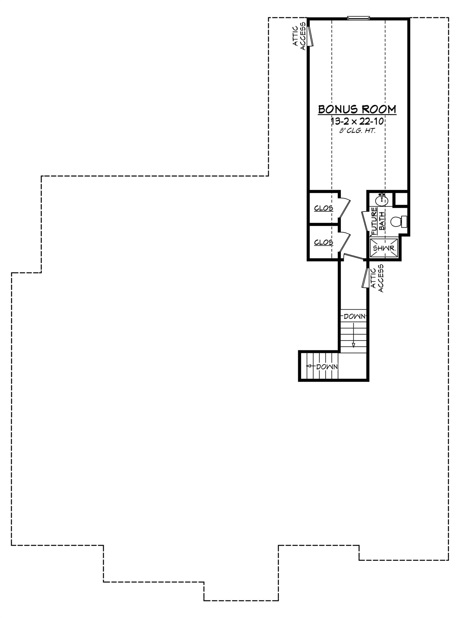
This charming 2,151 square feet home blends thoughtful design with warm, welcoming details. It includes 3 bedrooms and 2.5 baths, highlighted by a luxurious primary suite that feels like a retreat. The open living areas flow naturally, creating the perfect environment for both entertaining and family time. A covered porch with an outdoor kitchen makes it easy to extend the fun outside. Practical touches such as the oversized utility room, mudroom lockers, and a large walk-in pantry help keep life organized. A bonus room above the carport offers a flexible space for future use, whether as a game room, office, or guest retreat. With its Craftsman-inspired style and inviting curb appeal, this home is as beautiful as it is functional.
House Plan Pricing
STEP 1 Select Your Package

PDF Single Build


Digital plans emailed to you in PDF format that allows for printing copies and sharing electronically with contractors, subs, decorators, and more. This package includes a license to build the home one time.

PDF Single Build $1,445
Most recommended package

5 Printed Sets + PDF


Includes 5 physical printed blueprint sets, shipped free via UPS within the U.S. Printed sets ship within 1 business day and are delivered within 3 – 5 business days. A complimentary PDF plan set is also emailed within 1 business day for easy sharing and local printing. These plans may be used to construct one home.

5 Printed Sets + PDF $1,695
5 Printed Sets + PDF

PDF Unlimited Build


Digital plans with an unlimited build license emailed in PDF format, that allows for printing copies on a home printer or local print shop and sharing with contractors, subs, decorators and more 

PDF Unlimited Build $2,145
Digital plans including unlimited build license

CAD + PDF Unlimited Build


This plan package is created in AutoCAD and delivered in .DWG format. CAD files are intended for use by design professionals, structural engineers, and builders to update plans for local building codes or to make revisions based on specific needs, lot requirements, and budget considerations. A complimentary PDF copy is included with this package for reference. CAD packages are delivered within 1 to 2 business days.
 
This package also comes with a multi-use building license, granting permission to construct the home an unlimited number of times, along with a copyright release for making revisions and printing unlimited copies.
 
For details on the specific CAD program used, please refer to the PLAN DETAILS section located above the floor plan on each plan page.

CAD + PDF Unlimited Build $2,545
2D electronic editable computer files
STEP 2 Need To Reverse This Plan?
STEP 3 CHOOSE YOUR FOUNDATION
STEP 4 OPTIONAL ADD-ONS
Subtotal:
$1445
FREE SHIPPING
 
Plan Details
See All Details
Finished Square Footage
2,151 Sq. Ft.
Main Level:
2,151 Sq. Ft.
Total:
Room Details
3
Bedrooms:
2
Full Baths:
1
Half Baths:
General House Information
1.5
Number of Stories:
58' 8"
Width:
78' 4"
Depth:
Single
Dwelling Number:
2nd Floor
Bonus Access:
Unfinished Square Footage
782 Sq. Ft.
Garage:
606 Sq. Ft.
Porch:
209 Sq. Ft.
Front Porch:
397 Sq. Ft.
Rear Porch:
475 Sq. Ft.
Bonus Room:
GARAGE
Rear
Garage Location:
3
Garage Size:
Exterior Style
Cottage
Country
Craftsman
Ranch
Traditional
Collections
Affordable
Budget
First Home
Open Floor Plan
Split Bedroom
Foundation
Basement
Crawl Space
Slab
Walkout Basement
Framing Information
Stick
Roof Framing:
2x4
Exterior Wall Framing:
Roof Pitch
8/12
Primary:
12/12
Secondary:
Insulation (R)
House And Ceiling Heights
9
First Floor Ceiling:
8
Second Floor Ceiling:
21' 8"
Maximum House Height:
Key Features
Attached
Bonus Room
Butler's Pantry
Carport
Country Kitchen
Covered Front Porch
Covered Rear Porch
Dining Room
Double Vanity Sink
Fireplace
Great Room
Kitchen Island
Laundry 1st Fl
L-Shaped
Primary Bdrm Main Floor
Mud Room
Open Floor Plan
Outdoor Kitchen
Peninsula / Eating Bar
Separate Tub and Shower
Side-entry
Split Bedrooms
Storage Space
Suited for corner lot
Walk-in Closet

Our Guarantees

  • Only the highest quality plans
  • Int’l Residential Code Compliant
  • Full structural details on all plans
  • Best plan price guarantee
  • Free modification Estimates
  • Builder-ready construction drawings
  • Expert advice from leading designers
  •  PDFs NOW!™ plans in minutes
  • 100% satisfaction guarantee
  • Free Home Building Organizer