20% off ALL House Plans Sitewide
20% off ALL House Plans Sitewide

House Plan: DFD-11382

See All 1 Photos > (photographs may reflect modified homes)
© copyright by designer
SQ FT
1,971
BEDS
3
BATHS
2
STORIES
1
CARS
2
HOUSE PLANS SALE 
START AT  $800.00
For questions and help, live chat, email or call us at 877-895-5299
Floor Plans
Click to Zoom In on Floor Plan
 
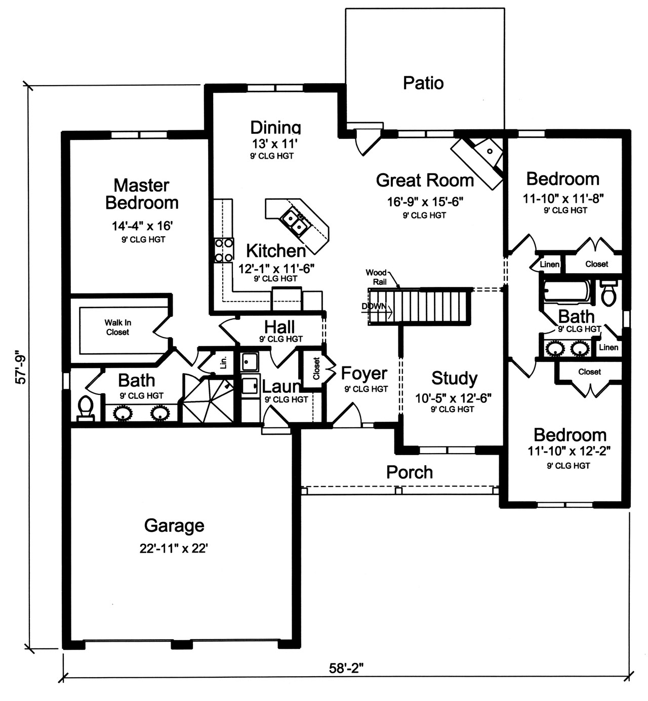
About House Plan 11382:
House Plan 11382 offers a smart and inviting one-story layout with 1,971 square feet designed for today’s lifestyles. The covered front porch leads into a large foyer with a coat closet, setting the tone for the functional design throughout. A dedicated front study makes a great home office or flex space. The open-concept great room includes a corner fireplace and flows seamlessly to the dining area, L-shaped kitchen with a central island, and out to the rear patio for outdoor enjoyment. The private primary suite occupies the left side of the home, featuring a spacious ensuite bath and a walk-in closet. Two additional bedrooms and a full bath are comfortably positioned on the opposite side, making them ideal for family or guests. A mudroom and laundry area conveniently connect to the two-car front garage for easy daily living.
House Plan Pricing
STEP 1 Select Your Package

PDF Bid Set


Home plans stamped "NOT FOR CONSTRUCTION" for cost estimating and bidding purposes only; a minimum 5 set plan package must be purchased within 90 days for a license to build plan set; a credit will be applied towards your house plan upgrade

PDF Bid Set $770
Digital set of plans for bidding purposes only

PDF Single Build


Digital plans emailed to you in PDF format that allows for printing copies and sharing electronically with contractors, subs, decorators, and more. This package includes a license to build the home one time.

PDF Single Build $1,000
Most recommended package

Basement


Ideal for level lots, lower level of home will be partially or fully underground.

Basement $1,050
Foundation built below ground level

8 Printed Sets + PDF


Includes 8 physical printed blueprint sets, shipped free via UPS within the U.S. Printed sets ship within 1 business day and are delivered within 3 – 5 business days. A complimentary PDF plan set is also emailed within 1 business day for easy sharing and local printing. These plans may be used to construct one home.

8 Printed Sets + PDF $1,080
8 Printed Sets + PDF

CAD + PDF Single Build


This plan package is created in AutoCAD and delivered in .DWG format. CAD files are intended for use by design professionals, structural engineers, and builders to update plans for local building codes or to make revisions based on specific needs, lot requirements, and budget considerations. A complimentary PDF copy is included with this package for reference. CAD packages are delivered within 1 to 2 business days.
 
This package also comes with a copyright release for making revisions and printing unlimited copies.

For details on the specific CAD program used, please refer to the PLAN DETAILS section located above the floor plan on each plan page.

CAD + PDF Single Build $1,525
2D electronic editable computer files

PDF Unlimited Build


Digital plans with an unlimited build license emailed in PDF format, that allows for printing copies on a home printer or local print shop and sharing with contractors, subs, decorators and more 

PDF Unlimited Build $1,600
Digital plans including unlimited build license
CAD Unlimited Build $2,125
STEP 2 CHOOSE YOUR FOUNDATION
STEP 3 OPTIONAL ADD-ONS
Subtotal:
$1000
FREE SHIPPING
 
Plan Details
See All Details
Finished Square Footage
1,971 Sq. Ft.
Main Level:
1,971 Sq. Ft.
Total:
Room Details
3
Bedrooms:
2
Full Baths:
General House Information
1
Number of Stories:
58' 2"
Width:
57' 9"
Depth:
Single
Dwelling Number:
Unfinished Square Footage
491 Sq. Ft.
Garage:
108 Sq. Ft.
Front Porch:
201 Sq. Ft.
Deck:
GARAGE
Front
Garage Location:
2
Garage Size:
Exterior Style
Classical
Cottage
Country
Craftsman
Lake
Ranch
Traditional
Collections
Affordable
Empty Nester
Open Floor Plan
PDFs Fast!
Split Bedroom
Vacation
Foundation
Basement Option
Framing Information
Truss
Roof Framing:
2x4
Exterior Wall Framing:
Roof Pitch
12:10
Primary:
12:7
Gable:
12:7
Porch:
Roof Load
30
Live:
17
Dead:
90
Wind:
Insulation (R)
Per IRC Climate Zones
House And Ceiling Heights
9
First Floor Ceiling:
22' 6"
Maximum House Height:
Key Features
Attached
Covered Front Porch
Double Vanity Sink
Fireplace
Foyer
Front-entry
Great Room
Home Office
Kitchen Island
Laundry 1st Fl
Primary Bdrm Main Floor
Open Floor Plan
Split Bedrooms
Storage Space
Unfinished Space
Walk-in Closet
Walk-in Pantry

Our Guarantees

  • Only the highest quality plans
  • Int’l Residential Code Compliant
  • Full structural details on all plans
  • Best plan price guarantee
  • Free modification Estimates
  • Builder-ready construction drawings
  • Expert advice from leading designers
  •  PDFs NOW!™ plans in minutes
  • 100% satisfaction guarantee
  • Free Home Building Organizer