20% Off House Plans Sitewide Ends Sunday
20% Off House Plans Sitewide Ends Sunday

House Plan: DFD-11440

See All 15 Photos > (photographs may reflect modified homes)
© copyright by designer
SQ FT
2,658
BEDS
2
BATHS
2.5
STORIES
1
CARS
3
HOUSE PLANS SALE 
START AT  $1,400.00
For questions and help, live chat, email or call us at 877-895-5299
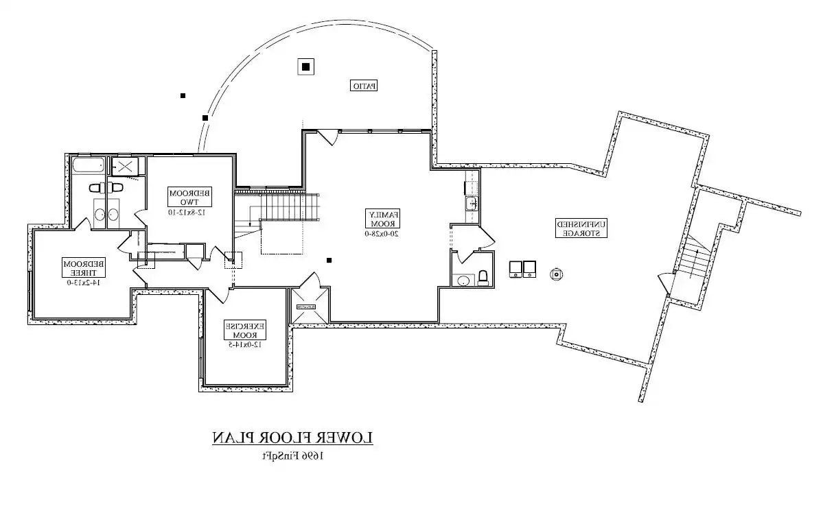
Floor Plans
Click to Zoom In on Floor Plan
 
About House Plan 11440:
This charming modern design offers 2,658 square feet of thoughtfully planned living with two to four bedrooms. The exterior highlights clean rooflines and natural materials for timeless curb appeal. Inside, a soaring great room with clerestory windows creates a light-filled centerpiece to the open floor plan. The kitchen provides a cooktop island, walk-in pantry, and easy access to the covered patio through dual French doors. The primary suite includes a cozy sitting nook, spa bath, and generous walk-in closet, while a study and secondary bedroom complete the main level. A mudroom connects to the angled, side-entry 3-car garage for convenience. The optional lower level expands the layout with a family room, wet bar, gym, and additional bedrooms. Warm, functional, and inviting, this plan is ideal for both family living and entertaining.
House Plan Pricing
STEP 1 Select Your Package

PDF Single Build


Digital plans emailed to you in PDF format that allows for printing copies and sharing electronically with contractors, subs, decorators, and more. This package includes a license to build the home one time.

PDF Single Build $1,750
Most recommended package

PDF Unlimited Build


Digital plans with an unlimited build license emailed in PDF format, that allows for printing copies on a home printer or local print shop and sharing with contractors, subs, decorators and more 

PDF Unlimited Build $2,475
Digital plans including unlimited build license

CAD + PDF Single Build


CAD files are a complete set of construction drawings delivered electronically. They can be used for any type of modification—including major design changes and engineering—and include a release granting permission to modify the plan. Most CAD plan orders are emailed the same or next business day.
 
This package also comes with a PDF set of plans and a copyright release for making modifications and printing unlimited copies.
 
CAD files are provided in .dwg format. For details on the specific CAD program used, please refer to the PLAN DETAILS section located above the floor plan on each plan’s page.

CAD + PDF Single Build $3,050
2D electronic editable computer files

CAD Unlimited Build


CAD files are a complete set of construction drawings delivered electronically. They can be used for any type of modification—including major design changes and engineering—and include a release granting permission to modify the plan. Most CAD plan orders are emailed the same or next business day. CAD files are provided in .dwg format. For details on the specific CAD program used, please refer to the PLAN DETAILS section located above the floor plan on each plan’s page.
CAD Unlimited Build $4,425
2D electronic editable computer files
STEP 2 Need To Reverse This Plan?
STEP 3 CHOOSE YOUR FOUNDATION
STEP 4 OPTIONAL ADD-ONS
Subtotal:
$1750
FREE SHIPPING
 
Plan Details
See All Details
Finished Square Footage
2,658 Sq. Ft.
Main Level:
1,696 Sq. Ft.
Lower Level:
2,658 Sq. Ft.
Total:
Room Details
2
Bedrooms:
2
Full Baths:
1
Half Baths:
General House Information
1
Number of Stories:
128' 11"
Width:
64' 10"
Depth:
Single
Dwelling Number:
Unfinished Square Footage
1112 Sq. Ft.
Garage:
1882 Sq. Ft.
Porch:
GARAGE
3
Garage Size:
Exterior Style
Contemporary
Mid-Century Modern
Modern
Ranch
Collections
Affordable
First Home
Luxury
Mountain
Open Floor Plan
Split Bedroom
Foundation
Basement
Crawl Space
Slab
Walkout Basement
Framing Information
Truss
Roof Framing:
2x6
Exterior Wall Framing:
Roof Pitch
6/12
Primary:
3/12
Secondary:
Insulation (R)
House And Ceiling Heights
10
First Floor Ceiling:
23' 9"
Maximum House Height:
Key Features
Attached
Butler's Pantry
Covered Front Porch
Covered Rear Porch
Dining Room
Double Vanity Sink
Exercise Room
Family Room
Fireplace
Great Room
Home Office
Kitchen Island
Laundry 1st Fl
Library/Media Rm
L-Shaped
Primary Bdrm Main Floor
Mud Room
Open Floor Plan
Peninsula / Eating Bar
Rec Room
Separate Tub and Shower
Side-entry
Sitting Area
Split Bedrooms
Storage Space
Suited for corner lot
Unfinished Space
Walk-in Closet
Workshop

Our Guarantees

  • Only the highest quality plans
  • Int’l Residential Code Compliant
  • Full structural details on all plans
  • Best plan price guarantee
  • Free modification Estimates
  • Builder-ready construction drawings
  • Expert advice from leading designers
  •  PDFs NOW!™ plans in minutes
  • 100% satisfaction guarantee
  • Free Home Building Organizer