17% off ALL House Plans Sitewide
17% off ALL House Plans Sitewide

House Plan: DFD-11489

See All 13 Photos > (photographs may reflect modified homes)
© copyright by designer
SQ FT
2,263
BEDS
2
BATHS
2.5
STORIES
1
CARS
3
HOUSE PLANS SALE 
START AT  $1,286.50
For questions and help, live chat, email or call us at 877-895-5299
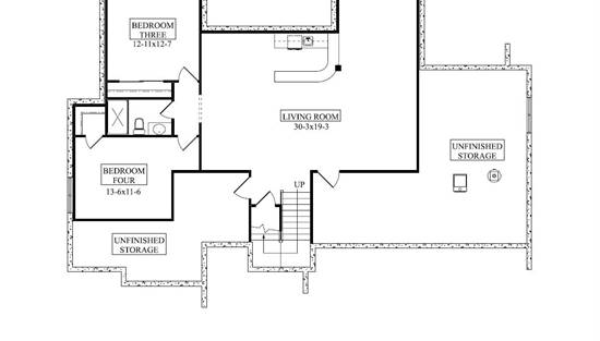
Floor Plans
Click to Zoom In on Floor Plan
 
About House Plan 11489:
Blending ranch elegance with everyday comfort, this 2-bedroom home showcases inviting outdoor spaces and thoughtful design. The spacious great room and kitchen form the heart of the home, enhanced by a butler’s pantry and peninsula eating bar. The primary bedroom suite on the main floor offers privacy and luxury, while the split-bedroom layout provides a quiet retreat for guests. A covered rear porch and front courtyard create perfect spots for relaxing or entertaining. The home office adds a touch of versatility, ideal for remote work or study. With 2,263 heated square feet and graceful proportions, this plan captures a sense of warmth and sophistication. It’s a wonderful fit for families!
House Plan Pricing
STEP 1 Select Your Package

PDF Single Build


Digital plans emailed to you in PDF format that allows for printing copies and sharing electronically with contractors, subs, decorators, and more. This package includes a license to build the home one time.

PDF Single Build $1,550
Most recommended package

CAD + PDF Single Build


CAD files are a complete set of construction drawings delivered electronically. They can be used for any type of modification—including major design changes and engineering—and include a release granting permission to modify the plan. Most CAD plan orders are emailed the same or next business day.
 
This package also comes with a PDF set of plans and a copyright release for making modifications and printing unlimited copies.
 
CAD files are provided in .dwg format. For details on the specific CAD program used, please refer to the PLAN DETAILS section located above the floor plan on each plan’s page.

CAD + PDF Single Build $2,850
2D electronic editable computer files
STEP 2 Need To Reverse This Plan?
STEP 3 CHOOSE YOUR FOUNDATION
STEP 4 OPTIONAL ADD-ONS
Subtotal:
$1550
FREE SHIPPING
 
Plan Details
See All Details
Finished Square Footage
2,263 Sq. Ft.
Main Level:
1,328 Sq. Ft.
Lower Level:
2,263 Sq. Ft.
Total:
Room Details
2
Bedrooms:
2
Full Baths:
1
Half Baths:
General House Information
1
Number of Stories:
65' 0"
Width:
67' 6"
Depth:
Single
Dwelling Number:
Unfinished Square Footage
857 Sq. Ft.
Garage:
GARAGE
Front
Garage Location:
3
Garage Size:
Exterior Style
European
Mediterranean
Ranch
Southwest
Collections
First Home
Open Floor Plan
Split Bedroom
Foundation
Basement
Crawl Space
Slab
Framing Information
Truss
Roof Framing:
2x6
Exterior Wall Framing:
Roof Pitch
4/12
Primary:
Insulation (R)
House And Ceiling Heights
10
First Floor Ceiling:
20' 3"
Maximum House Height:
Key Features
Attached
Butler's Pantry
Courtyard
Covered Rear Porch
Dining Room
Double Vanity Sink
Fireplace
Front Porch
Front-entry
Great Room
Home Office
Kitchen Island
Laundry 1st Fl
L-Shaped
Primary Bdrm Main Floor
Mud Room
Open Floor Plan
Peninsula / Eating Bar
Split Bedrooms
Storage Space
Suited for corner lot
Unfinished Space
Walk-in Closet

Our Guarantees

  • Only the highest quality plans
  • Int’l Residential Code Compliant
  • Full structural details on all plans
  • Best plan price guarantee
  • Free modification Estimates
  • Builder-ready construction drawings
  • Expert advice from leading designers
  •  PDFs NOW!™ plans in minutes
  • 100% satisfaction guarantee
  • Free Home Building Organizer