20% off ALL House Plans Sitewide
20% off ALL House Plans Sitewide

House Plan: DFD-11510

See All 2 Photos > (photographs may reflect modified homes)
© copyright by designer
SQ FT
3,360
BEDS
5
BATHS
4.5
STORIES
1
CARS
3
HOUSE PLANS SALE 
START AT  $1,276.00
For questions and help, live chat, email or call us at 877-895-5299
Floor Plans
Click to Zoom In on Floor Plan
 
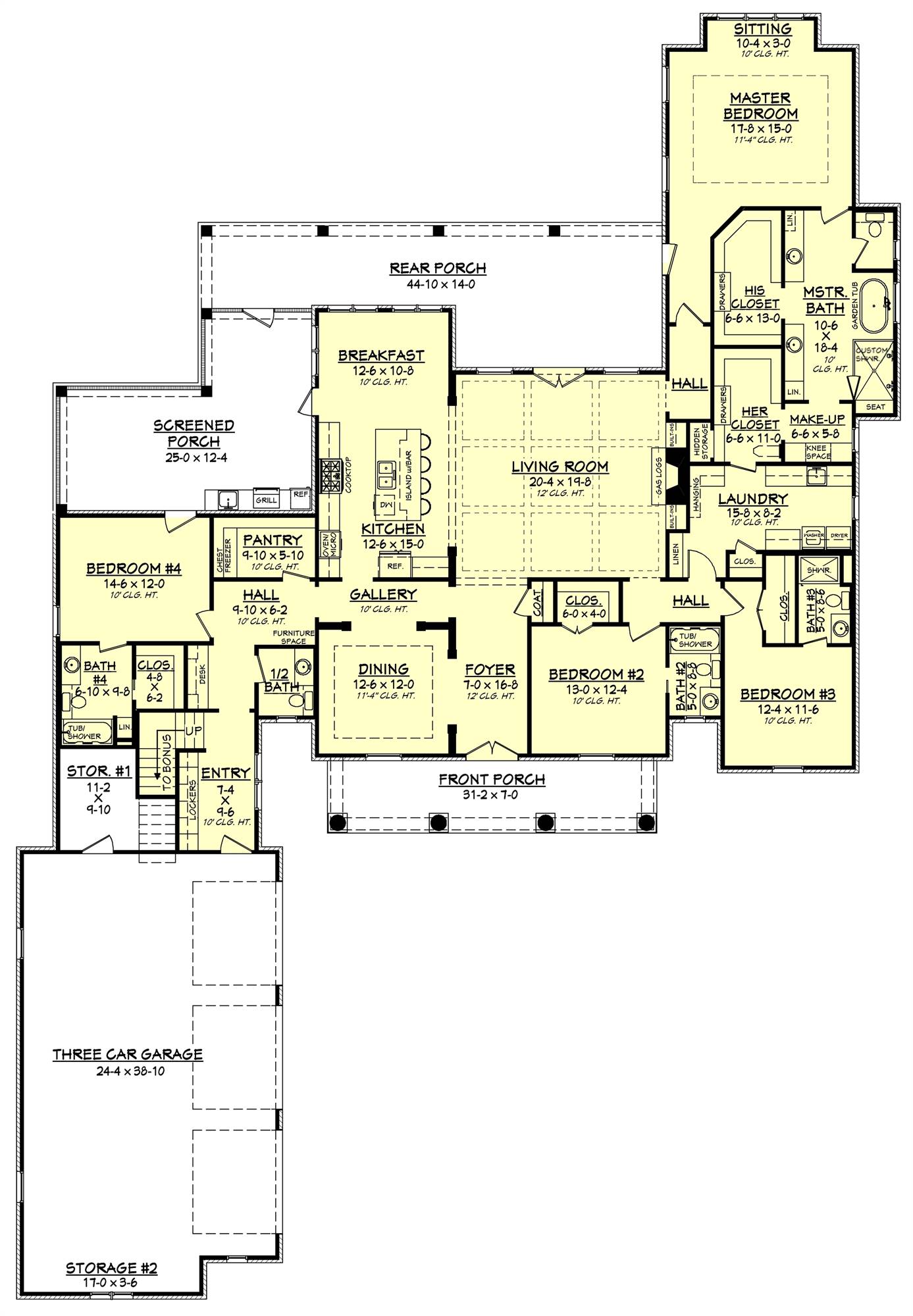
About House Plan 11510:
House Plan 11510 delivers classic French Country architecture paired with a spacious, well-organized layout designed for modern living. The heart of the home features an open living area with vaulted ceilings, a fireplace, and seamless connections to the kitchen and breakfast nook. The kitchen includes an island, walk-in pantry, and ample cabinetry, making it equally suited for entertaining and daily use. A main-floor primary suite provides a private retreat with his-and-her closets and a luxurious bathroom layout. Additional bedrooms are thoughtfully positioned to support both privacy and convenience, while a bonus room above the garage adds valuable flexible space. Covered porches at the front and rear, along with a screened porch and outdoor kitchen potential, enhance the home’s indoor-outdoor flow. With elegant proportions and classic detailing, this French Country house plan offers a timeless foundation for upscale family living.
House Plan Pricing
STEP 1 Select Your Package

PDF Single Build


Digital plans emailed to you in PDF format that allows for printing copies and sharing electronically with contractors, subs, decorators, and more. This package includes a license to build the home one time.

PDF Single Build $1,595
Most recommended package

5 Printed Sets + PDF


Digital plan emailed to you in PDF format that allows for printing copies on a home printer or local print shop and sharing with contractors, subs, decorators, and more. PLUS five printed sets shipped and delivered 3-5 business days.

5 Printed Sets + PDF $1,845
Digital plans plus 5 printed sets

PDF Unlimited Build


Digital plans with an unlimited build license emailed in PDF format, that allows for printing copies on a home printer or local print shop and sharing with contractors, subs, decorators and more 

PDF Unlimited Build $2,295
Digital plans including unlimited build license

CAD + PDF Unlimited Build


CAD files are a complete set of construction drawings delivered electronically. They can be used for any type of modification—including major design changes and engineering—and include a release granting permission to modify the plan. Most CAD plan orders are emailed the same or next business day.
 
This package also comes with a PDF set of plans and a multi-use building license, granting permission to construct the home an unlimited number of times, along with a copyright release for making modifications and printing unlimited copies.
 
CAD files are provided in .dwg format. For details on the specific CAD program used, please refer to the PLAN DETAILS section located above the floor plan on each plan’s page.

CAD + PDF Unlimited Build $2,695
2D electronic editable computer files
STEP 2 Need To Reverse This Plan?
STEP 3 CHOOSE YOUR FOUNDATION
STEP 4 OPTIONAL ADD-ONS
Subtotal:
$1595
FREE SHIPPING
 
Plan Details
See All Details
Finished Square Footage
3,360 Sq. Ft.
Main Level:
3,360 Sq. Ft.
Total:
Room Details
5
Bedrooms:
4
Full Baths:
1
Half Baths:
General House Information
1
Number of Stories:
84' 8"
Width:
123' 6"
Depth:
Single
Dwelling Number:
2nd Floor
Bonus Access:
Unfinished Square Footage
985 Sq. Ft.
Garage:
157 Sq. Ft.
Storage:
218 Sq. Ft.
Front Porch:
483 Sq. Ft.
Rear Porch:
391 Sq. Ft.
Deck:
730 Sq. Ft.
Bonus Room:
GARAGE
Front
Garage Location:
3
Garage Size:
Exterior Style
Classical
French Country
Southern
Traditional
Collections
Kitchens
Luxury
Primary Suites
Old House Classics
Open Floor Plan
Outdoor Living
Split Bedroom
Foundation
Basement
Crawl Space
Slab
Walkout Basement
Framing Information
Stick
Roof Framing:
2x4
Exterior Wall Framing:
Roof Pitch
14/12
Primary:
8/12
Secondary:
Roof Load
30 psf
Live:
Insulation (R)
House And Ceiling Heights
10
First Floor Ceiling:
30' 0"
Maximum House Height:
Key Features
Attached
Bonus Room
Courtyard/Motorcourt Entry
Covered Front Porch
Covered Rear Porch
Dining Room
Double Vanity Sink
Fireplace
Formal LR
Foyer
His and Hers Primary Closets
Kitchen Island
Laundry 1st Fl
L-Shaped
Primary Bdrm Main Floor
Mud Room
Nook / Breakfast Area
Open Floor Plan
Outdoor Kitchen
Peninsula / Eating Bar
Rec Room
Screened Porch/Sunroom
Separate Tub and Shower
Split Bedrooms
Storage Space
Vaulted Ceilings
Walk-in Pantry
Wraparound Porch

Our Guarantees

  • Only the highest quality plans
  • Int’l Residential Code Compliant
  • Full structural details on all plans
  • Best plan price guarantee
  • Free modification Estimates
  • Builder-ready construction drawings
  • Expert advice from leading designers
  •  PDFs NOW!™ plans in minutes
  • 100% satisfaction guarantee
  • Free Home Building Organizer