House Plan: DFD-11536

See All 5 Photos > (photographs may reflect modified homes)
© copyright by designer
SQ FT
2,293
BEDS
3
BATHS
2.5
STORIES
2
CARS
3
HOUSE PLANS SALE 
START AT  $1,062.50
For questions and help, live chat, email or call us at 877-895-5299
Floor Plans
Click to Zoom In on Floor Plan
 
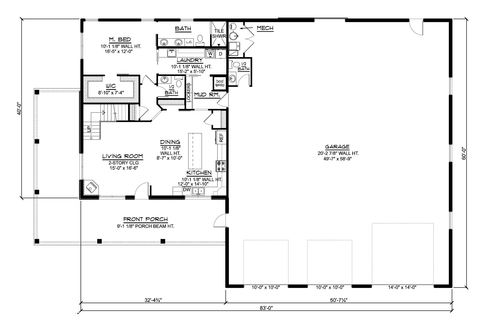
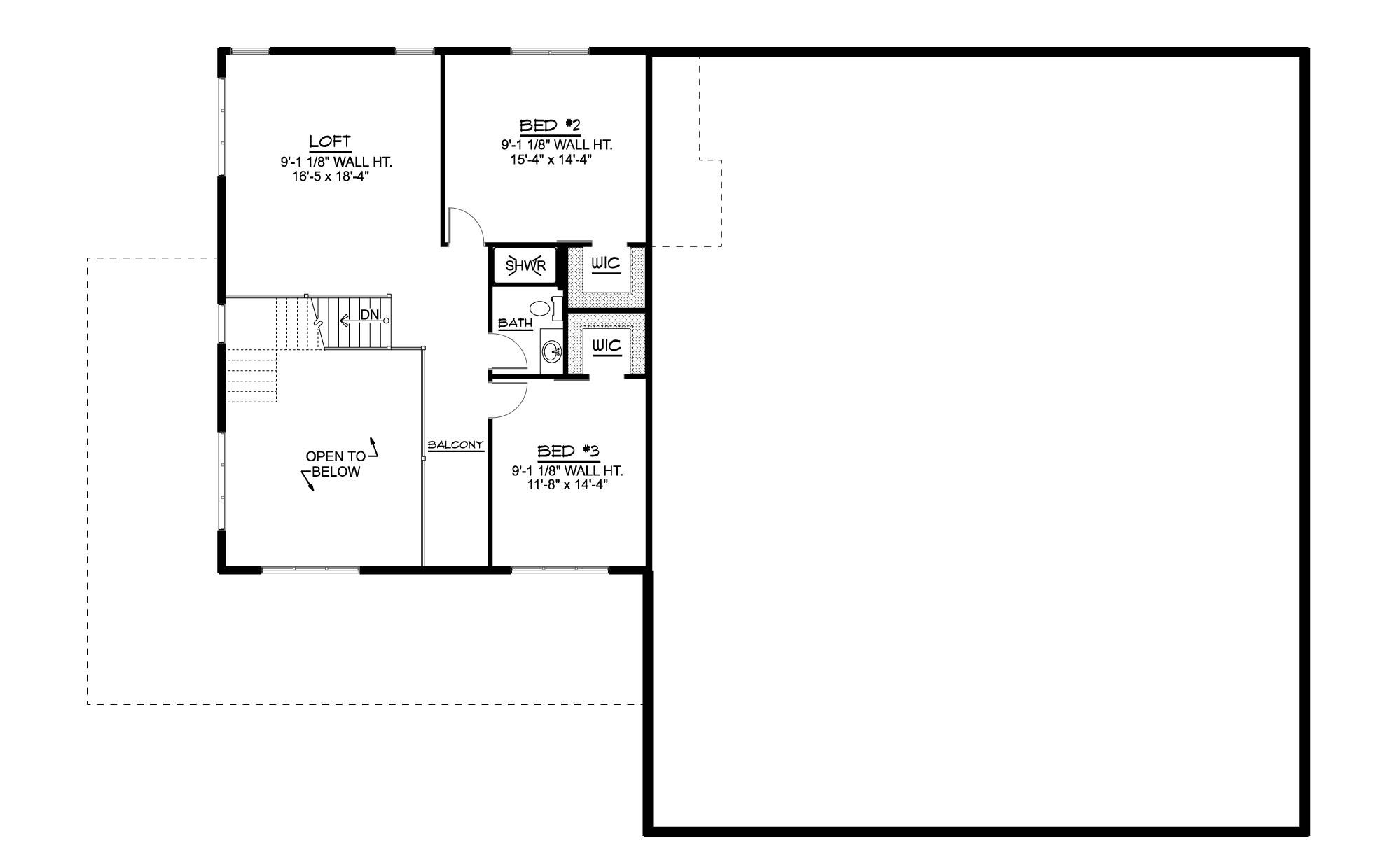
About House Plan 11536:
House Plan 11536 combines modern barndominium style with craftsman detailing for a striking two-story home designed for both comfort and utility. Featuring 2,293 sq. ft. of living space and a massive 3,030 sq. ft. garage, this design caters to RV owners, hobbyists, and families who need room to grow. The main level boasts a spacious primary suite, laundry room, and open kitchen-to-living layout that connects seamlessly to outdoor living areas. Upstairs, a loft and two bedrooms offer privacy and storage. With a wraparound porch and classic metal roof accents, this plan is ideal for modern country estates and multi-purpose living.
House Plan Pricing
STEP 1 Select Your Package

PDF Single Build


Digital plans emailed to you in PDF format that allows for printing copies and sharing electronically with contractors, subs, decorators, and more. This package includes a license to build the home one time.

PDF Single Build $1,250
Most recommended package

5 Printed Sets + PDF


Digital plan emailed to you in PDF format that allows for printing copies on a home printer or local print shop and sharing with contractors, subs, decorators, and more. PLUS five printed sets shipped and delivered 3-5 business days.

5 Printed Sets + PDF $1,600
Digital plans plus 5 printed sets

PDF Unlimited Build


Digital plans with an unlimited build license emailed in PDF format, that allows for printing copies on a home printer or local print shop and sharing with contractors, subs, decorators and more 

PDF Unlimited Build $1,850
Digital plans including unlimited build license

CAD + PDF Single Build


CAD files are a complete set of construction drawings delivered electronically. They can be used for any type of modification—including major design changes and engineering—and include a release granting permission to modify the plan. Most CAD plan orders are emailed the same or next business day.
 
This package also comes with a PDF set of plans and a copyright release for making modifications and printing unlimited copies.
 
CAD files are provided in .dwg format. For details on the specific CAD program used, please refer to the PLAN DETAILS section located above the floor plan on each plan’s page.

CAD + PDF Single Build $2,300
2D electronic editable computer files

CAD + PDF Unlimited Build


CAD files are a complete set of construction drawings delivered electronically. They can be used for any type of modification—including major design changes and engineering—and include a release granting permission to modify the plan. Most CAD plan orders are emailed the same or next business day.
 
This package also comes with a PDF set of plans and a multi-use building license, granting permission to construct the home an unlimited number of times, along with a copyright release for making modifications and printing unlimited copies.
 
CAD files are provided in .dwg format. For details on the specific CAD program used, please refer to the PLAN DETAILS section located above the floor plan on each plan’s page.

CAD + PDF Unlimited Build $2,850
2D electronic editable computer files
STEP 2 Need To Reverse This Plan?
STEP 3 CHOOSE YOUR FOUNDATION
STEP 4 OPTIONAL ADD-ONS
Subtotal:
$1250
FREE SHIPPING
 
Plan Details
See All Details
Finished Square Footage
1,302 Sq. Ft.
Main Level:
991 Sq. Ft.
Upper Level:
2,293 Sq. Ft.
Total:
Room Details
3
Bedrooms:
2
Full Baths:
2
Half Baths:
General House Information
2
Number of Stories:
93' 0"
Width:
60' 0"
Depth:
Single
Dwelling Number:
Unfinished Square Footage
3030 Sq. Ft.
Garage:
664 Sq. Ft.
Porch:
GARAGE
Side
Garage Location:
3
Garage Size:
Exterior Style
Barndominium
Country
Craftsman
Farmhouse
Modern Farmhouse
Transitional
Collections
Open Floor Plan
Outdoor Living
Split Bedroom
Foundation
Basement
Crawl Space
Slab
Walkout
Framing Information
Truss
Roof Framing:
2x6
Exterior Wall Framing:
Roof Pitch
4/12
Primary:
Insulation (R)
19
Exterior Wall:
36
Ceiling:
House And Ceiling Heights
10
First Floor Ceiling:
9
Second Floor Ceiling:
30' 9"
Maximum House Height:
Key Features
2 Story Volume
Attached
Covered Front Porch
Double Vanity Sink
Front-entry
Great Room
Kitchen Island
Loft / Balcony
L-Shaped
Primary Bdrm Main Floor
Mud Room
Open Floor Plan
Outdoor Living Space
Oversized
Pantry
Split Bedrooms
Suited for view lot
Walk-in Closet
Workshop
Wraparound Porch

Our Guarantees

  • Only the highest quality plans
  • Int’l Residential Code Compliant
  • Full structural details on all plans
  • Best plan price guarantee
  • Free modification Estimates
  • Builder-ready construction drawings
  • Expert advice from leading designers
  •  PDFs NOW!™ plans in minutes
  • 100% satisfaction guarantee
  • Free Home Building Organizer