15% off ALL House Plans Sitewide
15% off ALL House Plans Sitewide

House Plan: DFD-11548

See All 2 Photos > (photographs may reflect modified homes)
© copyright by designer
SQ FT
2,876
BEDS
4
BATHS
3.5
STORIES
1
CARS
4
HOUSE PLANS SALE 
START AT  $1,657.50
For questions and help, live chat, email or call us at 877-895-5299
Floor Plans
Click to Zoom In on Floor Plan
 
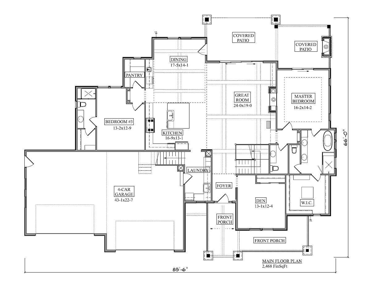
About House Plan 11548:
This charming 2,468 square foot modern ranch is designed for easy living and stylish comfort. The open layout flows from a welcoming foyer into the great room, where natural light enhances the inviting atmosphere. The kitchen features a large island, butler’s pantry, and eating bar—perfect for gatherings and family meals. The main-floor primary suite includes a luxurious bath with dual vanities, a separate tub and shower, and a generous walk-in closet. Upstairs, additional bedrooms provide private retreats for family or guests. Outdoor living shines with covered front and rear porches that extend your entertaining space. Blending modern design with classic craftsmanship, this home offers a warm and timeless space where memories are made.
House Plan Pricing
STEP 1 Select Your Package

PDF Single Build


Digital plans emailed to you in PDF format that allows for printing copies and sharing electronically with contractors, subs, decorators, and more. This package includes a license to build the home one time.

PDF Single Build $1,950
Most recommended package

5 Printed Sets + PDF


Includes 5 physical printed blueprint sets, shipped free via UPS within the U.S. Printed sets ship within 1 business day and are delivered within 3 – 5 business days. A complimentary PDF plan set is also emailed within 1 business day for easy sharing and local printing. These plans may be used to construct one home.

5 Printed Sets + PDF $2,300
5 Printed Sets + PDF

PDF Unlimited Build


Digital plans with an unlimited build license emailed in PDF format, that allows for printing copies on a home printer or local print shop and sharing with contractors, subs, decorators and more 

PDF Unlimited Build $2,775
Digital plans including unlimited build license

CAD + PDF Single Build


This plan package is created in AutoCAD and delivered in .DWG format. CAD files are intended for use by design professionals, structural engineers, and builders to update plans for local building codes or to make revisions based on specific needs, lot requirements, and budget considerations. A complimentary PDF copy is included with this package for reference. CAD packages are delivered within 1 to 2 business days.
 
This package also comes with a copyright release for making revisions and printing unlimited copies.

For details on the specific CAD program used, please refer to the PLAN DETAILS section located above the floor plan on each plan page.

CAD + PDF Single Build $3,450
2D electronic editable computer files

CAD Unlimited Build


CAD files are a complete set of construction drawings delivered electronically. They can be used for any type of modification—including major design changes and engineering—and include a release granting permission to modify the plan. Most CAD plan orders are emailed the same or next business day. CAD files are provided in .dwg format. For details on the specific CAD program used, please refer to the PLAN DETAILS section located above the floor plan on each plan’s page.
CAD Unlimited Build $5,025
2D electronic editable computer files
STEP 2 Need To Reverse This Plan?
STEP 3 CHOOSE YOUR FOUNDATION
STEP 4 OPTIONAL ADD-ONS
Subtotal:
$1950
FREE SHIPPING
 
Plan Details
See All Details
Finished Square Footage
2,468 Sq. Ft.
Main Level:
408 Sq. Ft.
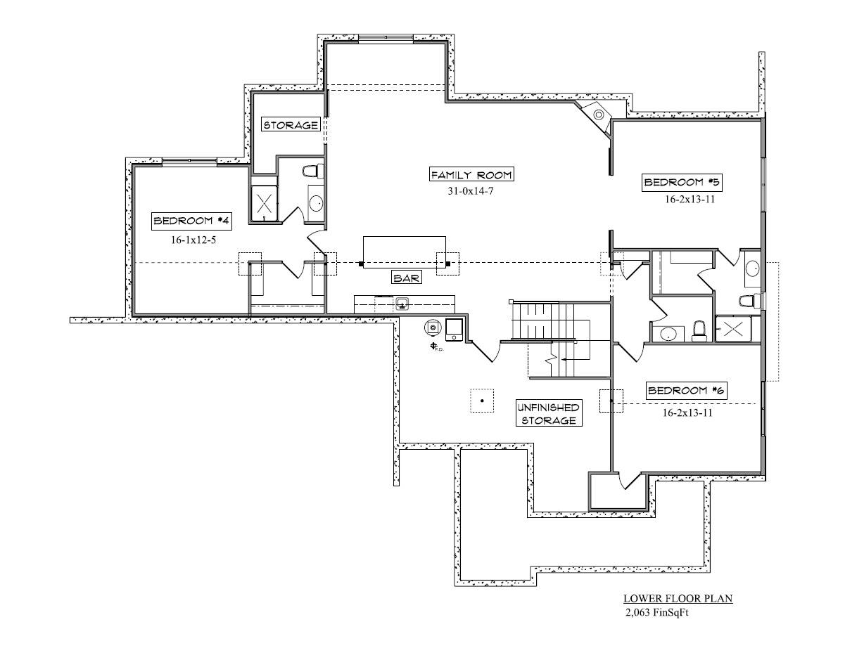
Upper Level:
2,063 Sq. Ft.
Lower Level:
2,876 Sq. Ft.
Total:
Room Details
4
Bedrooms:
3
Full Baths:
1
Half Baths:
General House Information
1
Number of Stories:
85' 6"
Width:
66' 0"
Depth:
Single
Dwelling Number:
Unfinished Square Footage
1113 Sq. Ft.
Garage:
679 Sq. Ft.
Porch:
GARAGE
Front
Garage Location:
4
Garage Size:
Exterior Style
Country
Farmhouse
Ranch
Collections
Primary Suites
Mountain
Split Bedroom
Foundation
Basement
Crawl Space
Daylight Basement
Slab
Framing Information
Truss
Roof Framing:
2x6
Exterior Wall Framing:
Roof Pitch
9/12
Primary:
12/12
Secondary:
Insulation (R)
House And Ceiling Heights
10
First Floor Ceiling:
9
Second Floor Ceiling:
27' 5"
Maximum House Height:
Key Features
Attached
Butler's Pantry
Covered Front Porch
Covered Rear Porch
Dining Room
Double Vanity Sink
Family Room
Fireplace
Foyer
Front-entry
Great Room
Home Office
Kitchen Island
Laundry 1st Fl
L-Shaped
Primary Bdrm Main Floor
Mud Room
Open Floor Plan
Outdoor Living Space
Oversized
Peninsula / Eating Bar
Separate Tub and Shower
Split Bedrooms
Storage Space
Suited for corner lot
Unfinished Space
Walk-in Closet

Our Guarantees

  • Only the highest quality plans
  • Int’l Residential Code Compliant
  • Full structural details on all plans
  • Best plan price guarantee
  • Free modification Estimates
  • Builder-ready construction drawings
  • Expert advice from leading designers
  •  PDFs NOW!™ plans in minutes
  • 100% satisfaction guarantee
  • Free Home Building Organizer

See terms opt out anytime