20% off ALL House Plans Sitewide
20% off ALL House Plans Sitewide

House Plan: DFD-11565

See All 19 Photos > (photographs may reflect modified homes)
© copyright by designer
SQ FT
3,032
BEDS
6
BATHS
3.5
STORIES
3
CARS
2
HOUSE PLANS SALE 
START AT  $1,160.00
For questions and help, live chat, email or call us at 877-895-5299
Floor Plans
Click to Zoom In on Floor Plan
 
About House Plan 11565:
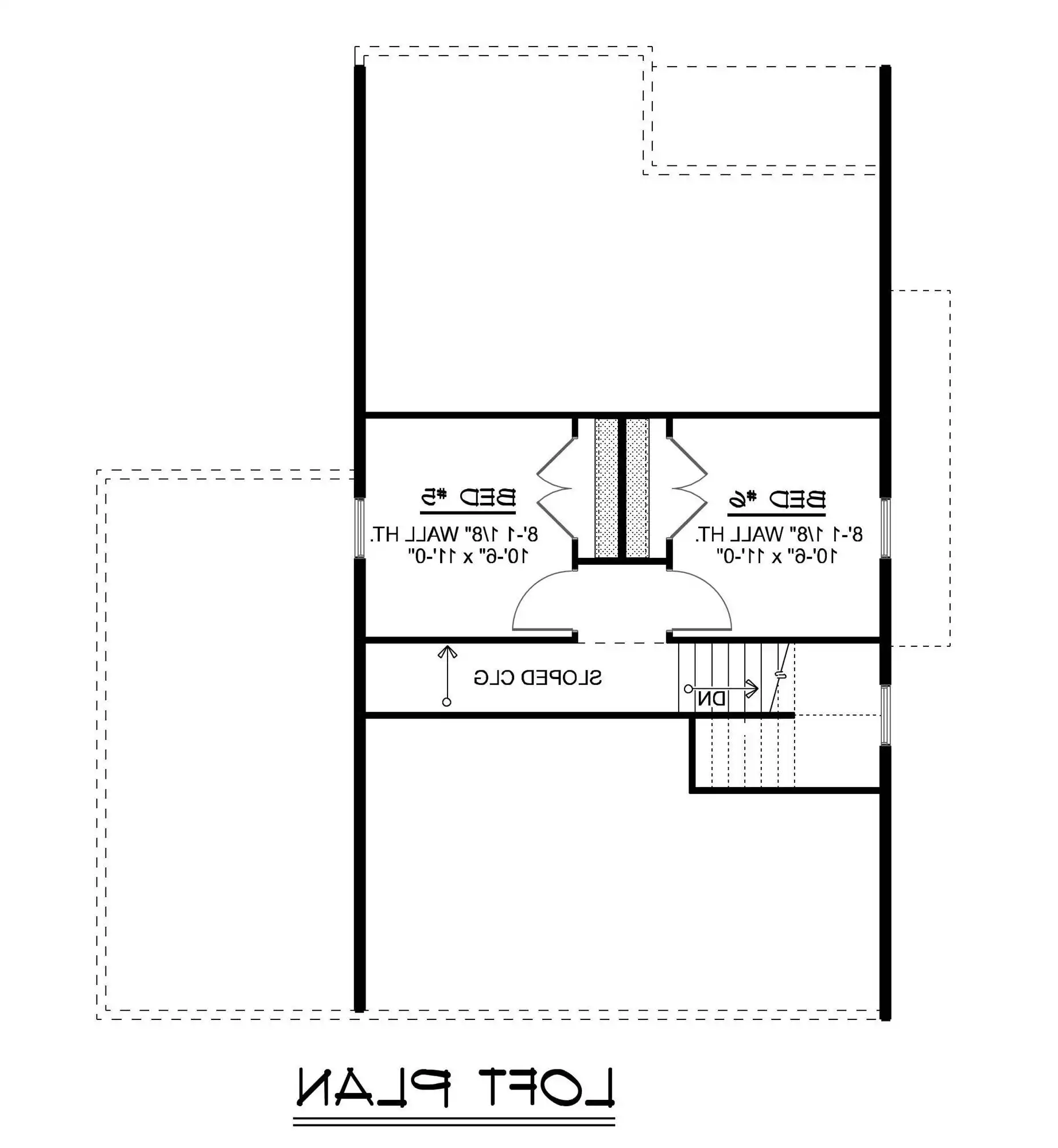
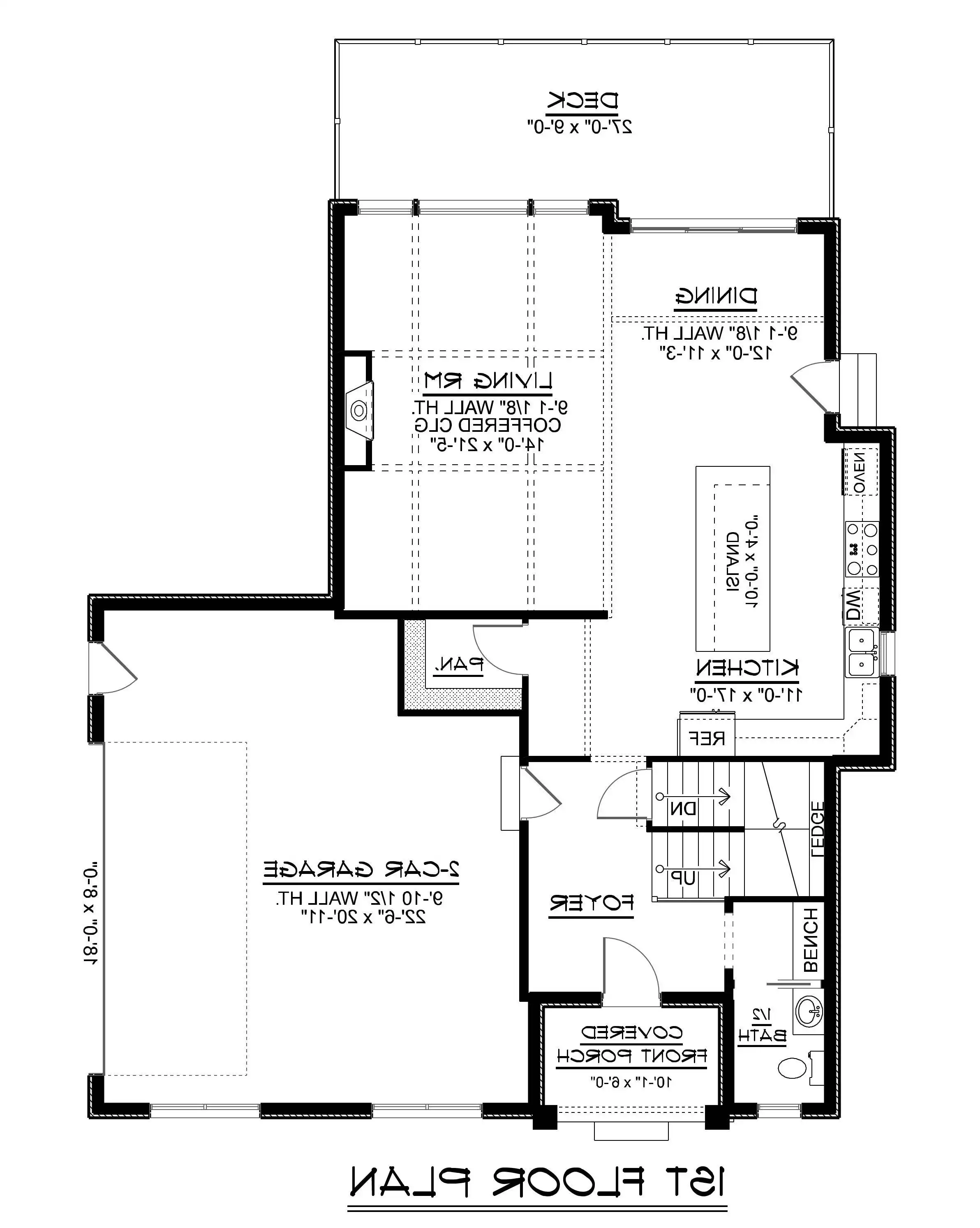
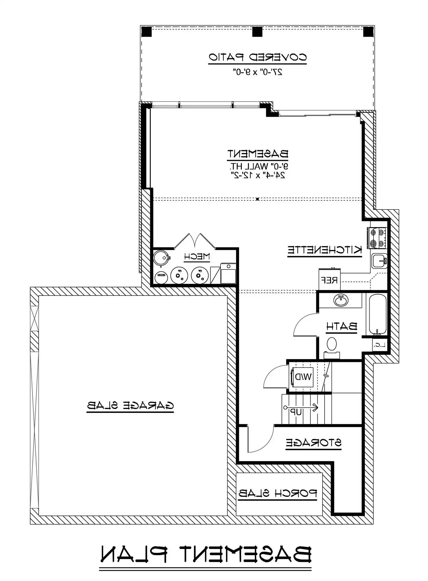
House Plan 11565 blends modern farmhouse styling with a highly functional multi-level layout designed for today’s families. The main floor centers around an open kitchen with a 10' island, a light-filled living room with a coffered ceiling, and a dining area that opens to the 27' wide rear deck. Upstairs, the private primary suite sits alongside three additional bedrooms, a spacious laundry room, and a full bathroom. The third-floor loft adds two more bedrooms with sloped ceilings—ideal for kids, guests, or a home studio. A walkout basement level provides 1,032 sq. ft. of optional finished space, complete with a kitchenette, full bath, storage, and direct access to the covered patio. With 6 bedrooms, multiple living areas, and flexible expansion potential, this plan is perfect for large families, multigenerational households, or sloping lots. A side-entry 2-car garage and welcoming front porch complete the design.
House Plan Pricing
STEP 1 Select Your Package

PDF Single Build


Digital plans emailed to you in PDF format that allows for printing copies and sharing electronically with contractors, subs, decorators, and more. This package includes a license to build the home one time.

PDF Single Build $1,450
Most recommended package

5 Printed Sets + PDF


Includes 5 physical printed blueprint sets, shipped free via UPS within the U.S. Printed sets ship within 1 business day and are delivered within 3 – 5 business days. A complimentary PDF plan set is also emailed within 1 business day for easy sharing and local printing. These plans may be used to construct one home.

5 Printed Sets + PDF $1,800
5 Printed Sets + PDF

PDF Unlimited Build


Digital plans with an unlimited build license emailed in PDF format, that allows for printing copies on a home printer or local print shop and sharing with contractors, subs, decorators and more 

PDF Unlimited Build $2,050
Digital plans including unlimited build license

CAD + PDF Single Build


This plan package is created in AutoCAD and delivered in .DWG format. CAD files are intended for use by design professionals, structural engineers, and builders to update plans for local building codes or to make revisions based on specific needs, lot requirements, and budget considerations. A complimentary PDF copy is included with this package for reference. CAD packages are delivered within 1 to 2 business days.
 
This package also comes with a copyright release for making revisions and printing unlimited copies.

For details on the specific CAD program used, please refer to the PLAN DETAILS section located above the floor plan on each plan page.

CAD + PDF Single Build $2,700
2D electronic editable computer files

CAD + PDF Unlimited Build


This plan package is created in AutoCAD and delivered in .DWG format. CAD files are intended for use by design professionals, structural engineers, and builders to update plans for local building codes or to make revisions based on specific needs, lot requirements, and budget considerations. A complimentary PDF copy is included with this package for reference. CAD packages are delivered within 1 to 2 business days.
 
This package also comes with a multi-use building license, granting permission to construct the home an unlimited number of times, along with a copyright release for making revisions and printing unlimited copies.
 
For details on the specific CAD program used, please refer to the PLAN DETAILS section located above the floor plan on each plan page.

CAD + PDF Unlimited Build $3,250
2D electronic editable computer files
STEP 2 Need To Reverse This Plan?
STEP 3 CHOOSE YOUR FOUNDATION
STEP 4 OPTIONAL ADD-ONS
Subtotal:
$1450
FREE SHIPPING
 
Plan Details
See All Details
Finished Square Footage
1,066 Sq. Ft.
Main Level:
1,590 Sq. Ft.
Upper Level:
376 Sq. Ft.
Third Level:
1,032 Sq. Ft.
Lower Level:
3,032 Sq. Ft.
Total:
Room Details
6
Bedrooms:
3
Full Baths:
1
Half Baths:
General House Information
3
Number of Stories:
43' 0"
Width:
58' 0"
Depth:
Single
Dwelling Number:
Unfinished Square Footage
598 Sq. Ft.
Garage:
60 Sq. Ft.
Front Porch:
255 Sq. Ft.
Rear Porch:
315 Sq. Ft.
Deck:
GARAGE
Under
Garage Location:
2
Garage Size:
Exterior Style
Contemporary
Farmhouse
Modern Farmhouse
Collections
Primary Suites
Open Floor Plan
Outdoor Living
Foundation
Basement
Crawl Space
Slab
Walkout Included
Framing Information
Truss
Roof Framing:
2x6
Exterior Wall Framing:
Roof Pitch
6/12
Primary:
12/12
Secondary:
Insulation (R)
19
Exterior Wall:
36
Ceiling:
House And Ceiling Heights
9
First Floor Ceiling:
9
Second Floor Ceiling:
31' 6"
Maximum House Height:
Key Features
Attached
Deck
Double Vanity Sink
Family Style
Fireplace
Foyer
Front Porch
Great Room
Kitchen Island
Laundry 2nd Fl
L-Shaped
Primary Bdrm Upstairs
Nook / Breakfast Area
Open Floor Plan
Outdoor Living Space
Rear Porch
Rec Room
Separate Tub and Shower
Side-entry
Sitting Area
Storage Space
Suited for sloping lot
Walk-in Closet
Walk-in Pantry

Our Guarantees

  • Only the highest quality plans
  • Int’l Residential Code Compliant
  • Full structural details on all plans
  • Best plan price guarantee
  • Free modification Estimates
  • Builder-ready construction drawings
  • Expert advice from leading designers
  •  PDFs NOW!™ plans in minutes
  • 100% satisfaction guarantee
  • Free Home Building Organizer