20% off ALL House Plans Sitewide
20% off ALL House Plans Sitewide

House Plan: DFD-11577

See All 28 Photos > (photographs may reflect modified homes)
© copyright by designer
SQ FT
2,191
BEDS
3
BATHS
3
STORIES
2
CARS
3
HOUSE PLANS SALE 
START AT  $1,400.00
For questions and help, live chat, email or call us at 877-895-5299
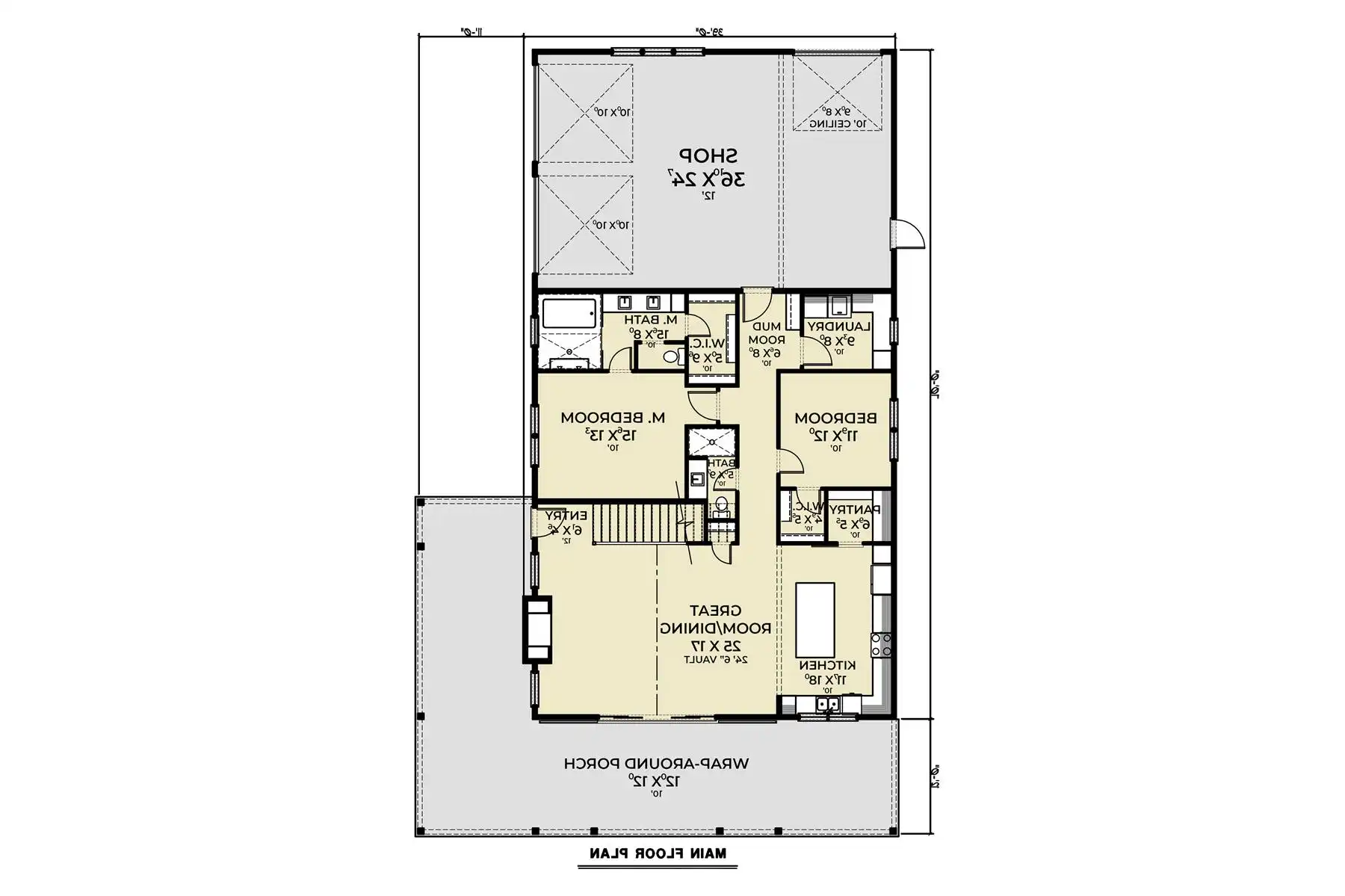
Floor Plans
Click to Zoom In on Floor Plan
 
About House Plan 11577:
House Plan 11577 delivers a functional and stylish 2,191-square-foot barndominium with the versatility today’s homeowners need. The expansive wrap-around porch welcomes you home and provides the perfect outdoor retreat. Inside, an open floor plan connects the vaulted great room, dining area, and L-shaped kitchen, where a large island and walk-in pantry make cooking and entertaining effortless. The main level features a private primary suite with a spa-like ensuite and walk-in closet, along with a secondary bedroom and ensuite for guests. A spacious laundry and mudroom lead to an oversized garage that also serves as a shop, offering three access points for easy storage of tools, vehicles, or farm equipment. Upstairs, a third bedroom with its own bath and an adaptable loft space expand the home’s functionality. Blending modern barn-inspired design with everyday practicality, this plan is ideal for families, hobbyists, or those seeking the perfect country retreat.
House Plan Pricing
STEP 1 Select Your Package

PDF Bid Set


Home plans stamped "NOT FOR CONSTRUCTION" for cost estimating and bidding purposes only; a minimum 5 set plan package must be purchased within 90 days for a license to build plan set; a credit will be applied towards your house plan upgrade

PDF Bid Set $875
Digital set of plans for bidding purposes only

PDF Single Build


Digital plans emailed to you in PDF format that allows for printing copies and sharing electronically with contractors, subs, decorators, and more. This package includes a license to build the home one time.

PDF Single Build $1,750
Most recommended package

5 Printed Sets + PDF


Digital plan emailed to you in PDF format that allows for printing copies on a home printer or local print shop and sharing with contractors, subs, decorators, and more. PLUS five printed sets shipped and delivered 3-5 business days.

5 Printed Sets + PDF $2,200
Digital plans plus 5 printed sets

CAD + PDF Single Build


CAD files are a complete set of construction drawings delivered electronically. They can be used for any type of modification—including major design changes and engineering—and include a release granting permission to modify the plan. Most CAD plan orders are emailed the same or next business day.
 
This package also comes with a PDF set of plans and a copyright release for making modifications and printing unlimited copies.
 
CAD files are provided in .dwg format. For details on the specific CAD program used, please refer to the PLAN DETAILS section located above the floor plan on each plan’s page.

CAD + PDF Single Build $2,250
2D electronic editable computer files
STEP 2 Need To Reverse This Plan?
STEP 3 CHOOSE YOUR FOUNDATION
STEP 4 OPTIONAL ADD-ONS
Subtotal:
$1750
FREE SHIPPING
 
Plan Details
See All Details
Finished Square Footage
1,717 Sq. Ft.
Main Level:
474 Sq. Ft.
Upper Level:
2,191 Sq. Ft.
Total:
Room Details
3
Bedrooms:
3
Full Baths:
General House Information
2
Number of Stories:
50' 0"
Width:
82' 0"
Depth:
Single
Dwelling Number:
Unfinished Square Footage
950 Sq. Ft.
Garage:
869 Sq. Ft.
Front Porch:
GARAGE
Side
Garage Location:
3
Garage Size:
Exterior Style
Barndominium
Country
Craftsman
Farmhouse
Modern Farmhouse
Ranch
Collections
Affordable
Budget
First Home
Kitchens
Open Floor Plan
Outdoor Living
Foundation
Slab
Framing Information
Truss
Roof Framing:
2x6
Exterior Wall Framing:
Roof Pitch
12/12
Primary:
4/12
Secondary:
Insulation (R)
House And Ceiling Heights
10
First Floor Ceiling:
8
Second Floor Ceiling:
28' 1"
Maximum House Height:
Key Features
Attached
Country Kitchen
Covered Front Porch
Dining Room
Double Vanity Sink
Fireplace
Front Porch
Great Room
Kitchen Island
Laundry 1st Fl
Loft / Balcony
Primary Bdrm Main Floor
Mud Room
Open Floor Plan
Outdoor Living Space
Oversized
Pantry
Peninsula / Eating Bar
RV Garage
Separate Tub and Shower
Side-entry
Suited for corner lot
U-Shaped
Vaulted Ceilings
Vaulted Great Room/Living
Walk-in Closet
Walk-in Pantry
Wraparound Porch

Our Guarantees

  • Only the highest quality plans
  • Int’l Residential Code Compliant
  • Full structural details on all plans
  • Best plan price guarantee
  • Free modification Estimates
  • Builder-ready construction drawings
  • Expert advice from leading designers
  •  PDFs NOW!™ plans in minutes
  • 100% satisfaction guarantee
  • Free Home Building Organizer

See terms opt out anytime