20% off ALL House Plans Sitewide
20% off ALL House Plans Sitewide

House Plan: DFD-11610

See All 11 Photos > (photographs may reflect modified homes)
© copyright by designer
SQ FT
2,478
BEDS
2
BATHS
2.5
STORIES
1
CARS
7
HOUSE PLANS SALE 
START AT  $1,400.00
For questions and help, live chat, email or call us at 877-895-5299
Floor Plans
Click to Zoom In on Floor Plan
 
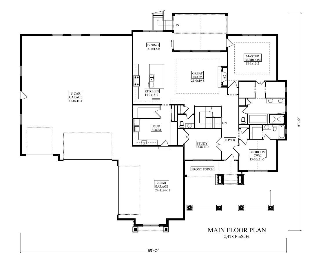
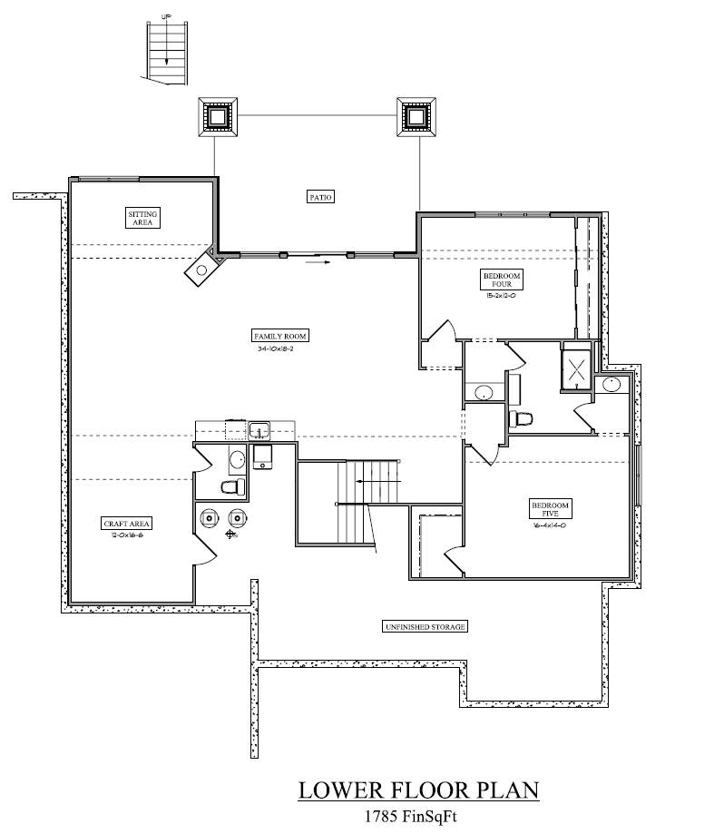
About House Plan 11610:
This charming 2,478-square-foot Craftsman-style residence is designed for those who value spacious, functional, and inviting living. The open layout flows seamlessly from a welcoming foyer into a family-friendly great room with a fireplace and bright windows. The kitchen is both stylish and practical with an island, peninsula, and butler’s pantry, making entertaining effortless. The main-floor primary suite includes double vanities, a soaking tub, and dual closets for added luxury. A media or library room offers a quiet escape, while the lower level features unfinished space ready for personalization. A workshop and oversized garage provide space for projects and storage, adding to the home’s versatility. With covered porches and timeless charm, this home is perfect for comfortable living and memorable gatherings all year round.
House Plan Pricing
STEP 1 Select Your Package

PDF Single Build


Digital plans emailed to you in PDF format that allows for printing copies and sharing electronically with contractors, subs, decorators, and more. This package includes a license to build the home one time.

PDF Single Build $1,750
Most recommended package

5 Printed Sets + PDF


Includes 5 physical printed blueprint sets, shipped free via UPS within the U.S. Printed sets ship within 1 business day and are delivered within 3 – 5 business days. A complimentary PDF plan set is also emailed within 1 business day for easy sharing and local printing. These plans may be used to construct one home.

5 Printed Sets + PDF $2,100
5 Printed Sets + PDF

CAD + PDF Single Build


This plan package is created in AutoCAD and delivered in .DWG format. CAD files are intended for use by design professionals, structural engineers, and builders to update plans for local building codes or to make revisions based on specific needs, lot requirements, and budget considerations. A complimentary PDF copy is included with this package for reference. CAD packages are delivered within 1 to 2 business days.
 
This package also comes with a copyright release for making revisions and printing unlimited copies.

For details on the specific CAD program used, please refer to the PLAN DETAILS section located above the floor plan on each plan page.

CAD + PDF Single Build $3,050
2D electronic editable computer files
STEP 2 Need To Reverse This Plan?
STEP 3 CHOOSE YOUR FOUNDATION
STEP 4 OPTIONAL ADD-ONS
Subtotal:
$1750
FREE SHIPPING
 
Plan Details
See All Details
Finished Square Footage
2,478 Sq. Ft.
Main Level:
1,785 Sq. Ft.
Lower Level:
2,478 Sq. Ft.
Total:
Room Details
2
Bedrooms:
2
Full Baths:
1
Half Baths:
General House Information
1
Number of Stories:
99' 0"
Width:
81' 0"
Depth:
Single
Dwelling Number:
Unfinished Square Footage
2607 Sq. Ft.
Garage:
645 Sq. Ft.
Porch:
GARAGE
Front
Garage Location:
7
Garage Size:
Exterior Style
Craftsman
Ranch
Traditional
Collections
Luxury
Open Floor Plan
Outdoor Living
Foundation
Basement
Crawl Space
Slab
Walkout Basement
Framing Information
Truss
Roof Framing:
2x6
Exterior Wall Framing:
Roof Pitch
6/12
Primary:
9/12
Secondary:
Insulation (R)
House And Ceiling Heights
10
First Floor Ceiling:
27' 4"
Maximum House Height:
Key Features
Attached
Butler's Pantry
Covered Front Porch
Covered Rear Porch
Dining Room
Double Vanity Sink
Family Room
Family Style
Fireplace
Foyer
Front-entry
Great Room
His and Hers Primary Closets
Kitchen Island
Laundry 1st Fl
Library/Media Rm
L-Shaped
Primary Bdrm Main Floor
Mud Room
Open Floor Plan
Oversized
Peninsula / Eating Bar
Separate Tub and Shower
Side-entry
Storage Space
Suited for corner lot
Unfinished Space
Walk-in Closet
Workshop

Our Guarantees

  • Only the highest quality plans
  • Int’l Residential Code Compliant
  • Full structural details on all plans
  • Best plan price guarantee
  • Free modification Estimates
  • Builder-ready construction drawings
  • Expert advice from leading designers
  •  PDFs NOW!™ plans in minutes
  • 100% satisfaction guarantee
  • Free Home Building Organizer