15% off ALL House Plans Sitewide
15% off ALL House Plans Sitewide

House Plan: DFD-11618

See All 15 Photos > (photographs may reflect modified homes)
© copyright by designer
SQ FT
1,397
BEDS
1
BATHS
1.5
STORIES
2
CARS
2
HOUSE PLANS SALE 
START AT  $1,487.50
For questions and help, live chat, email or call us at 877-895-5299
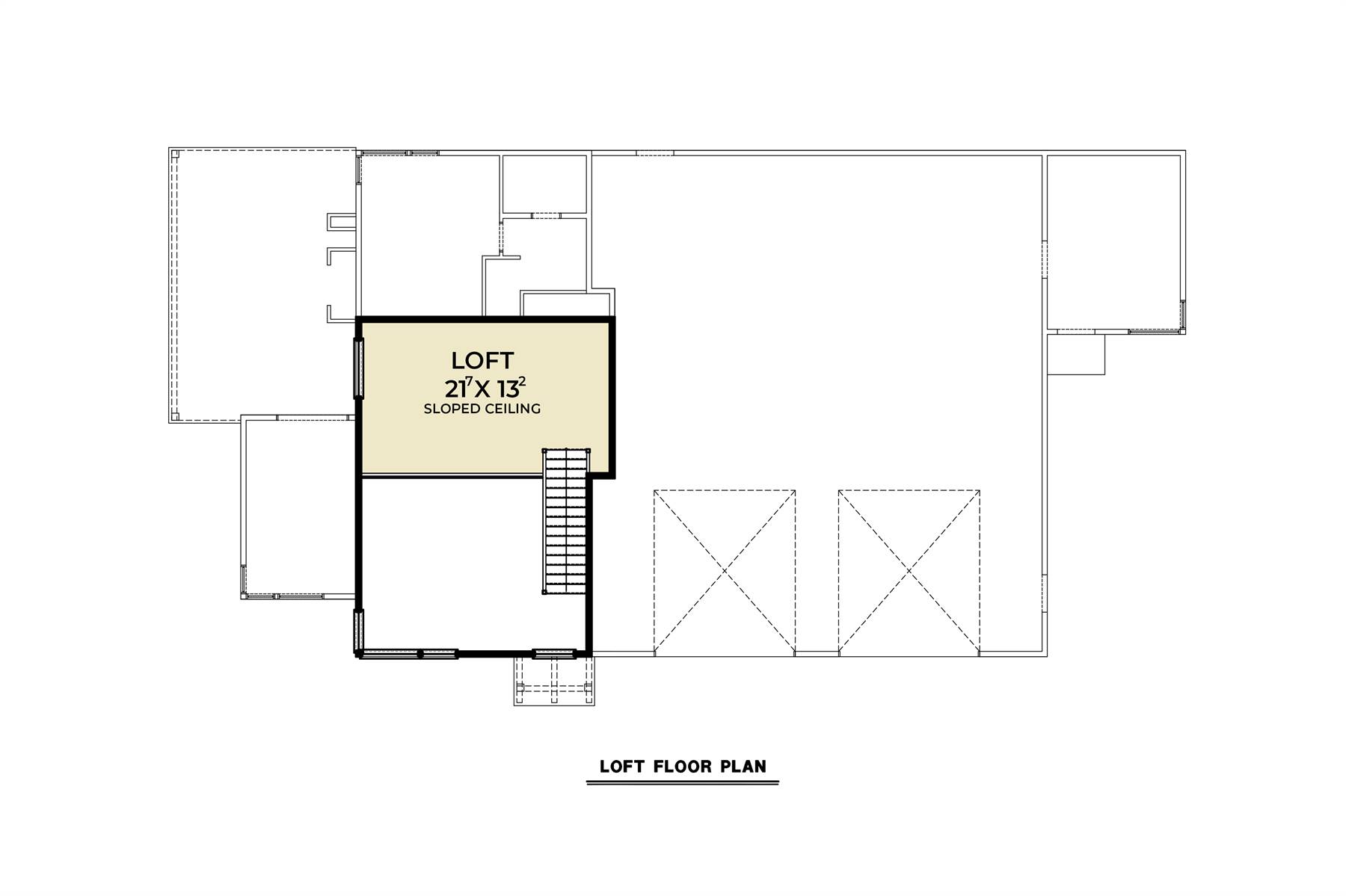
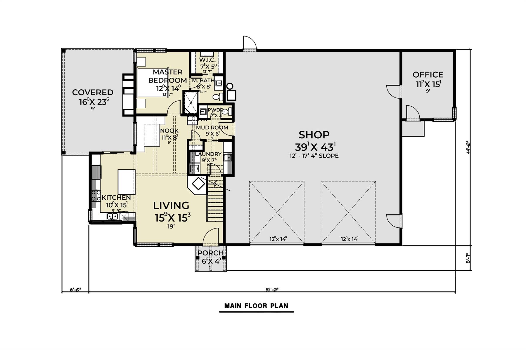
Floor Plans
Click to Zoom In on Floor Plan
 
About House Plan 11618:
House Plan 11618 offers a modern barndominium design that merges residential comfort with professional-grade workspace. With 1,379 square feet of living space, this one-bedroom layout features an inviting open floor plan centered around a large living area with a corner fireplace, a bright dining nook, and an L-shaped kitchen with a spacious island for cooking, dining, and gathering. The primary bedroom includes a walk-in closet and private ensuite, while a half bath, laundry, and mudroom ensure everyday convenience. The home’s standout feature is its oversized RV-height shop—complete with an office—ideal for small business owners, tradespeople, or anyone who needs substantial equipment or storage space. Upstairs, a flexible loft offers additional living or work potential. Stylish, practical, and efficient, this plan is perfect for modern homeowners seeking to balance work and home life seamlessly.
House Plan Pricing
STEP 1 Select Your Package

PDF Bid Set


Home plans stamped "NOT FOR CONSTRUCTION" for cost estimating and bidding purposes only; a minimum 5 set plan package must be purchased within 90 days for a license to build plan set; a credit will be applied towards your house plan upgrade

PDF Bid Set $875
Digital set of plans for bidding purposes only

PDF Single Build


Digital plans emailed to you in PDF format that allows for printing copies and sharing electronically with contractors, subs, decorators, and more. This package includes a license to build the home one time.

PDF Single Build $1,750
Most recommended package

5 Printed Sets + PDF


Includes 5 physical printed blueprint sets, shipped free via UPS within the U.S. Printed sets ship within 1 business day and are delivered within 3 – 5 business days. A complimentary PDF plan set is also emailed within 1 business day for easy sharing and local printing. These plans may be used to construct one home.

5 Printed Sets + PDF $2,200
5 Printed Sets + PDF

CAD + PDF Single Build


This plan package is created in AutoCAD and delivered in .DWG format. CAD files are intended for use by design professionals, structural engineers, and builders to update plans for local building codes or to make revisions based on specific needs, lot requirements, and budget considerations. A complimentary PDF copy is included with this package for reference. CAD packages are delivered within 1 to 2 business days.
 
This package also comes with a copyright release for making revisions and printing unlimited copies.

For details on the specific CAD program used, please refer to the PLAN DETAILS section located above the floor plan on each plan page.

CAD + PDF Single Build $2,250
2D electronic editable computer files
STEP 2 Need To Reverse This Plan?
STEP 3 CHOOSE YOUR FOUNDATION
STEP 4 OPTIONAL ADD-ONS
Subtotal:
$1750
FREE SHIPPING
 
Plan Details
See All Details
Finished Square Footage
1,093 Sq. Ft.
Main Level:
304 Sq. Ft.
Upper Level:
1,397 Sq. Ft.
Total:
Room Details
1
Bedrooms:
1
Full Baths:
1
Half Baths:
General House Information
2
Number of Stories:
88' 0"
Width:
49' 7"
Depth:
Single
Dwelling Number:
Unfinished Square Footage
1707 Sq. Ft.
Garage:
301 Sq. Ft.
Storage:
36 Sq. Ft.
Front Porch:
371 Sq. Ft.
Rear Porch:
371 Sq. Ft.
Deck:
GARAGE
Front
Garage Location:
2
Garage Size:
Exterior Style
Barndominium
Contemporary
Mid-Century Modern
Modern
Collections
ADU
Affordable
Budget
Empty Nester
First Home
Kitchens
Primary Suites
Mountain
Open Floor Plan
Outdoor Living
Foundation
Slab
Framing Information
Combination
Roof Framing:
2x6
Exterior Wall Framing:
Roof Pitch
1.5/12
Primary:
Insulation (R)
House And Ceiling Heights
9
First Floor Ceiling:
21' 10"
Maximum House Height:
Key Features
Attached
Country Kitchen
Covered Front Porch
Family Room
Fireplace
Front Porch
Front-entry
Home Office
Kitchen Island
Laundry 1st Fl
Loft / Balcony
Primary Bdrm Main Floor
Mud Room
Nook / Breakfast Area
Open Floor Plan
Oversized
Pantry
Peninsula / Eating Bar
RV Garage
Storage Space
Suited for corner lot
U-Shaped
Walk-in Closet
Workshop

Our Guarantees

  • Only the highest quality plans
  • Int’l Residential Code Compliant
  • Full structural details on all plans
  • Best plan price guarantee
  • Free modification Estimates
  • Builder-ready construction drawings
  • Expert advice from leading designers
  •  PDFs NOW!™ plans in minutes
  • 100% satisfaction guarantee
  • Free Home Building Organizer