House Plan: DFD-11632

See All 17 Photos > (photographs may reflect modified homes)
© copyright by designer
SQ FT
1,493
BEDS
3
BATHS
2
STORIES
2
CARS
0
PLANS FROM $1,095
For questions and help, live chat, email or call us at 877-895-5299
Floor Plans
Click to Zoom In on Floor Plan
 
About House Plan 11632:
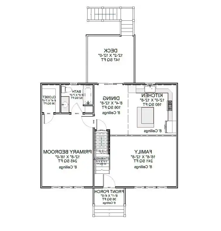
This cozy 1,493 square foot residence combines smart design and homey charm in an affordable layout. The open-concept kitchen includes both an island and a peninsula bar, offering plenty of space for cooking, dining, and gathering. Three bedrooms are thoughtfully arranged in a split layout, giving the primary suite quiet seclusion and a luxurious bath retreat. The covered front porch sets a welcoming tone, while the back deck is ideal for enjoying evenings outdoors. With a laundry room on the first floor and generous storage options, daily life feels easy and organized. This lovely Cape Cod home balances character and comfort beautifully. You’ll love the inviting atmosphere that makes every day feel like home.
House Plan Pricing
STEP 1 Select Your Package

PDF Single Build


Digital plans emailed to you in PDF format that allows for printing copies and sharing electronically with contractors, subs, decorators, and more. This package includes a license to build the home one time.

PDF Single Build $1,095
Most recommended package

PDF Unlimited Build


Digital plans with an unlimited build license emailed in PDF format, that allows for printing copies on a home printer or local print shop and sharing with contractors, subs, decorators and more 

PDF Unlimited Build $1,595
Digital plans including unlimited build license

CAD + PDF Unlimited Build


This plan package is created in AutoCAD and delivered in .DWG format. CAD files are intended for use by design professionals, structural engineers, and builders to update plans for local building codes or to make revisions based on specific needs, lot requirements, and budget considerations. A complimentary PDF copy is included with this package for reference. CAD packages are delivered within 1 to 2 business days.
 
This package also comes with a multi-use building license, granting permission to construct the home an unlimited number of times, along with a copyright release for making revisions and printing unlimited copies.
 
For details on the specific CAD program used, please refer to the PLAN DETAILS section located above the floor plan on each plan page.

CAD + PDF Unlimited Build $2,095
2D electronic editable computer files
STEP 2 Need To Reverse This Plan?
STEP 3 CHOOSE YOUR FOUNDATION
STEP 4 OPTIONAL ADD-ONS
Subtotal:
$1095
FREE SHIPPING
 
Plan Details
See All Details
Finished Square Footage
851 Sq. Ft.
Main Level:
642 Sq. Ft.
Upper Level:
851 Sq. Ft.
Lower Level:
1,493 Sq. Ft.
Total:
Room Details
3
Bedrooms:
2
Full Baths:
General House Information
2
Number of Stories:
34' 0"
Width:
38' 0"
Depth:
Single
Dwelling Number:
Unfinished Square Footage
36 Sq. Ft.
Porch:
147 Sq. Ft.
Deck:
GARAGE
0
Garage Size:
Exterior Style
Cape Cod
Cottage
Country
Collections
Affordable
Budget
First Home
Split Bedroom
Foundation
Basement
Crawl Space
Daylight Basement
Monolithic Slab
Slab
Walkout Basement
Framing Information
Stick
Roof Framing:
2x4
Exterior Wall Framing:
Roof Pitch
12/12
Primary:
4/12
Secondary:
Insulation (R)
House And Ceiling Heights
8
First Floor Ceiling:
8
Second Floor Ceiling:
22' 1"
Maximum House Height:
Key Features
Covered Front Porch
Deck
Dining Room
Family Room
Kitchen Island
Laundry 1st Fl
L-Shaped
Primary Bdrm Main Floor
Peninsula / Eating Bar
Separate Tub and Shower
Split Bedrooms
Storage Space
Suited for corner lot
Walk-in Closet

Our Guarantees

  • Only the highest quality plans
  • Int’l Residential Code Compliant
  • Full structural details on all plans
  • Best plan price guarantee
  • Free modification Estimates
  • Builder-ready construction drawings
  • Expert advice from leading designers
  •  PDFs NOW!™ plans in minutes
  • 100% satisfaction guarantee
  • Free Home Building Organizer