House Plan: DFD-11633

See All 25 Photos > (photographs may reflect modified homes)
© copyright by designer
SQ FT
1,077
BEDS
2
BATHS
1
STORIES
2
CARS
0
PLANS FROM $1,095
For questions and help, live chat, email or call us at 877-895-5299
Floor Plans
Click to Zoom In on Floor Plan
 
About House Plan 11633:
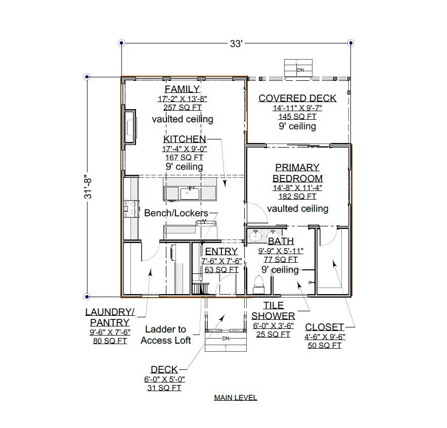
This cozy 1,077 square foot home combines smart use of space with timeless cottage charm. The kitchen includes an island, walk-in pantry, and peninsula bar that opens into a vaulted family room with a warm fireplace. Two bedrooms are positioned in a split layout, giving the primary suite added peace and privacy. The bath features a double vanity and the vaulted ceiling in the primary adds a touch of spacious elegance. A deck extends the living area outdoors, perfect for relaxing or casual entertaining. The mudroom and first-floor laundry keep life simple and clutter-free. With its Craftsman-style character and welcoming design, this home feels like the perfect place to unwind and make lasting memories.
House Plan Pricing
STEP 1 Select Your Package

PDF Single Build


Digital plans emailed to you in PDF format that allows for printing copies and sharing electronically with contractors, subs, decorators, and more. This package includes a license to build the home one time.

PDF Single Build $1,095
Most recommended package

PDF Unlimited Build


Digital plans with an unlimited build license emailed in PDF format, that allows for printing copies on a home printer or local print shop and sharing with contractors, subs, decorators and more 

PDF Unlimited Build $1,595
Digital plans including unlimited build license

CAD + PDF Unlimited Build


CAD files are a complete set of construction drawings delivered electronically. They can be used for any type of modification—including major design changes and engineering—and include a release granting permission to modify the plan. Most CAD plan orders are emailed the same or next business day.
 
This package also comes with a PDF set of plans and a multi-use building license, granting permission to construct the home an unlimited number of times, along with a copyright release for making modifications and printing unlimited copies.
 
CAD files are provided in .dwg format. For details on the specific CAD program used, please refer to the PLAN DETAILS section located above the floor plan on each plan’s page.

CAD + PDF Unlimited Build $2,095
2D electronic editable computer files
STEP 2 Need To Reverse This Plan?
STEP 3 CHOOSE YOUR FOUNDATION
STEP 4 OPTIONAL ADD-ONS
Subtotal:
$1095
FREE SHIPPING
 
Plan Details
See All Details
Finished Square Footage
900 Sq. Ft.
Main Level:
177 Sq. Ft.
Upper Level:
1,077 Sq. Ft.
Total:
Room Details
2
Bedrooms:
1
Full Baths:
General House Information
2
Number of Stories:
33' 0"
Width:
36' 9"
Depth:
Single
Dwelling Number:
Unfinished Square Footage
31 Sq. Ft.
Porch:
71 Sq. Ft.
Deck:
GARAGE
0
Garage Size:
Exterior Style
Cottage
Country
Craftsman
Traditional
Collections
Affordable
Budget
Cabin
First Home
Split Bedroom
Foundation
Basement
Crawl Space
Daylight Basement
Monolithic Slab
Slab
Walkout Basement
Framing Information
Stick
Roof Framing:
2x4
Exterior Wall Framing:
Roof Pitch
14/12
Primary:
8/12
Secondary:
Insulation (R)
House And Ceiling Heights
9
First Floor Ceiling:
8
Second Floor Ceiling:
22' 4"
Maximum House Height:
Key Features
Butler's Pantry
Deck
Double Vanity Sink
Family Room
Fireplace
Kitchen Island
Laundry 1st Fl
L-Shaped
Primary Bdrm Main Floor
Mud Room
Peninsula / Eating Bar
Split Bedrooms
Storage Space
Suited for corner lot
Vaulted Great Room/Living
Vaulted Primary
Walk-in Closet

Our Guarantees

  • Only the highest quality plans
  • Int’l Residential Code Compliant
  • Full structural details on all plans
  • Best plan price guarantee
  • Free modification Estimates
  • Builder-ready construction drawings
  • Expert advice from leading designers
  •  PDFs NOW!™ plans in minutes
  • 100% satisfaction guarantee
  • Free Home Building Organizer