15% off ALL House Plans Sitewide
15% off ALL House Plans Sitewide

House Plan: DFD-11639

See All 14 Photos > (photographs may reflect modified homes)
© copyright by designer
SQ FT
2,708
BEDS
1
BATHS
1.5
STORIES
2
CARS
3
HOUSE PLANS SALE 
START AT  $1,232.50
For questions and help, live chat, email or call us at 877-895-5299
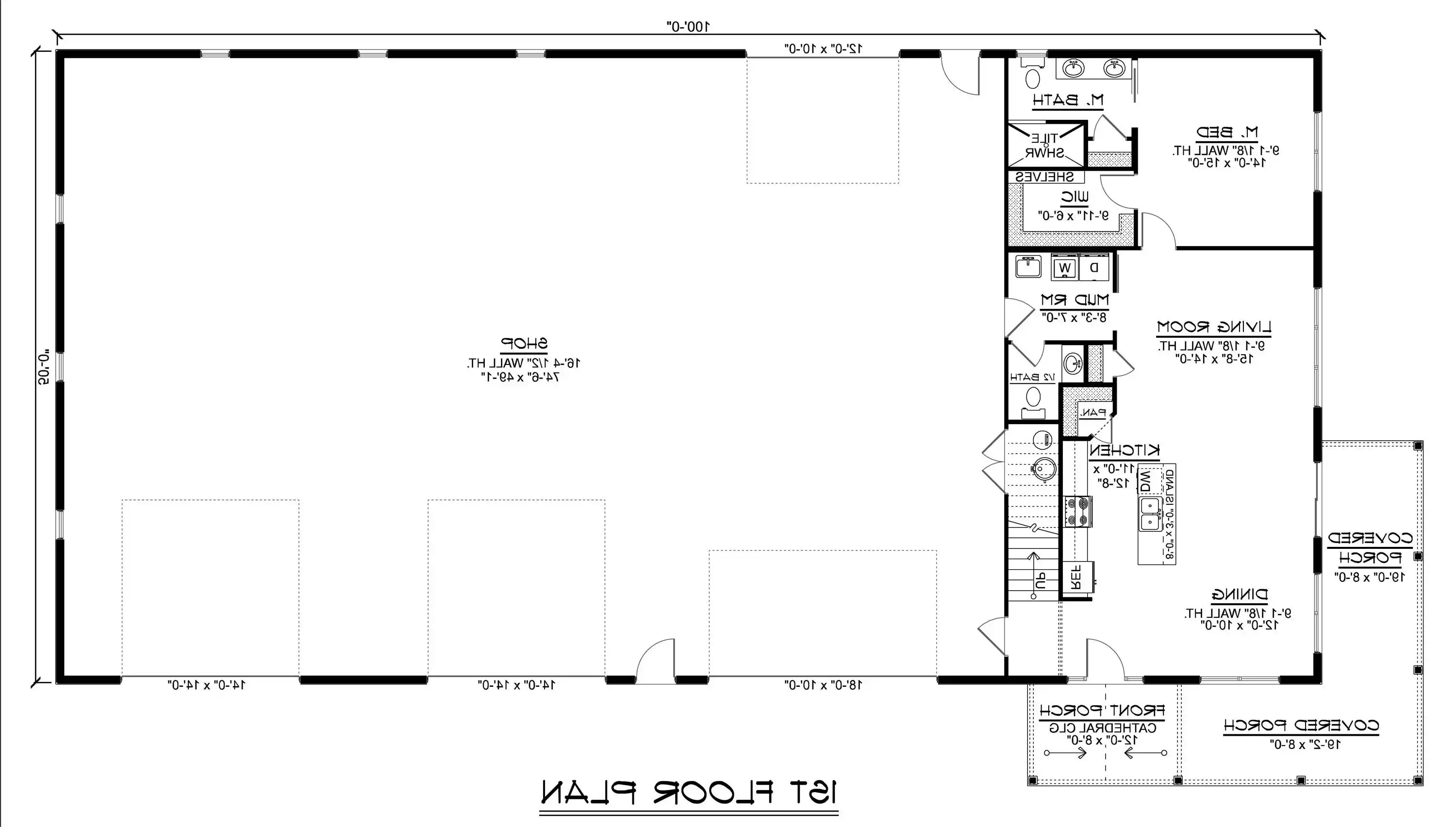
Floor Plans
Click to Zoom In on Floor Plan
 
About House Plan 11639:
House Plan 11639 offers a well-balanced barndominium layout that prioritizes storage, flexibility, and comfortable living. Designed with a primary bedroom on the main level, it is an excellent choice for a couple or single homeowner seeking long-term livability. The open-concept living space flows seamlessly into a functional kitchen, making everyday routines simple and efficient. A standout feature is the oversized garage and workshop area, ideal for multiple vehicles, outdoor equipment, or hands-on projects. Covered porches enhance the exterior appeal while providing outdoor living space. An upstairs recreation room adds versatility for entertainment, storage, or future use. This barndominium house plan delivers rugged practicality with a refined residential feel.
House Plan Pricing
STEP 1 Select Your Package

PDF Single Build


Digital plans emailed to you in PDF format that allows for printing copies and sharing electronically with contractors, subs, decorators, and more. This package includes a license to build the home one time.

PDF Single Build $1,450
Most recommended package

5 Printed Sets + PDF


Includes 5 physical printed blueprint sets, shipped free via UPS within the U.S. Printed sets ship within 1 business day and are delivered within 3 – 5 business days. A complimentary PDF plan set is also emailed within 1 business day for easy sharing and local printing. These plans may be used to construct one home.

5 Printed Sets + PDF $1,800
5 Printed Sets + PDF

PDF Unlimited Build


Digital plans with an unlimited build license emailed in PDF format, that allows for printing copies on a home printer or local print shop and sharing with contractors, subs, decorators and more 

PDF Unlimited Build $2,050
Digital plans including unlimited build license

CAD + PDF Single Build


This plan package is created in AutoCAD and delivered in .DWG format. CAD files are intended for use by design professionals, structural engineers, and builders to update plans for local building codes or to make revisions based on specific needs, lot requirements, and budget considerations. A complimentary PDF copy is included with this package for reference. CAD packages are delivered within 1 to 2 business days.
 
This package also comes with a copyright release for making revisions and printing unlimited copies.

For details on the specific CAD program used, please refer to the PLAN DETAILS section located above the floor plan on each plan page.

CAD + PDF Single Build $2,700
2D electronic editable computer files

CAD + PDF Unlimited Build


This plan package is created in AutoCAD and delivered in .DWG format. CAD files are intended for use by design professionals, structural engineers, and builders to update plans for local building codes or to make revisions based on specific needs, lot requirements, and budget considerations. A complimentary PDF copy is included with this package for reference. CAD packages are delivered within 1 to 2 business days.
 
This package also comes with a multi-use building license, granting permission to construct the home an unlimited number of times, along with a copyright release for making revisions and printing unlimited copies.
 
For details on the specific CAD program used, please refer to the PLAN DETAILS section located above the floor plan on each plan page.

CAD + PDF Unlimited Build $3,250
2D electronic editable computer files
STEP 2 CHOOSE YOUR FOUNDATION
STEP 3 OPTIONAL ADD-ONS
Subtotal:
$1450
FREE SHIPPING
 
Plan Details
See All Details
Finished Square Footage
1,500 Sq. Ft.
Main Level:
1,208 Sq. Ft.
Upper Level:
2,708 Sq. Ft.
Total:
Room Details
1
Bedrooms:
1
Full Baths:
1
Half Baths:
General House Information
2
Number of Stories:
100' 0"
Width:
50' 0"
Depth:
Single
Dwelling Number:
Unfinished Square Footage
3750 Sq. Ft.
Garage:
395 Sq. Ft.
Patio:
GARAGE
Side
Garage Location:
3
Garage Size:
Exterior Style
Barndominium
Country
Modern Farmhouse
Collections
Open Floor Plan
Foundation
Basement
Crawl Space
Slab
Walkout
Framing Information
Truss
Roof Framing:
2x6
Exterior Wall Framing:
Roof Pitch
4/12
Primary:
6/12
Secondary:
Insulation (R)
19
Exterior Wall:
36
Ceiling:
House And Ceiling Heights
9
First Floor Ceiling:
25' 2"
Maximum House Height:
Key Features
Covered Front Porch
Double Vanity Sink
Front-entry
Great Room
Kitchen Island
Laundry 1st Fl
Primary Bdrm Main Floor
Mud Room
Open Floor Plan
Oversized
Pantry
Rec Room
Storage Space
Suited for view lot
Walk-in Closet
Walk-in Pantry
Workshop
Wraparound Porch

Our Guarantees

  • Only the highest quality plans
  • Int’l Residential Code Compliant
  • Full structural details on all plans
  • Best plan price guarantee
  • Free modification Estimates
  • Builder-ready construction drawings
  • Expert advice from leading designers
  •  PDFs NOW!™ plans in minutes
  • 100% satisfaction guarantee
  • Free Home Building Organizer