15% off ALL House Plans Sitewide
15% off ALL House Plans Sitewide

House Plan: DFD-11656

See All 2 Photos > (photographs may reflect modified homes)
© copyright by designer
SQ FT
2,393
BEDS
4
BATHS
2.5
STORIES
1.5
CARS
2
HOUSE PLANS SALE 
START AT  $1,190.00
For questions and help, live chat, email or call us at 877-895-5299
Floor Plans
Click to Zoom In on Floor Plan
 
About House Plan 11656:
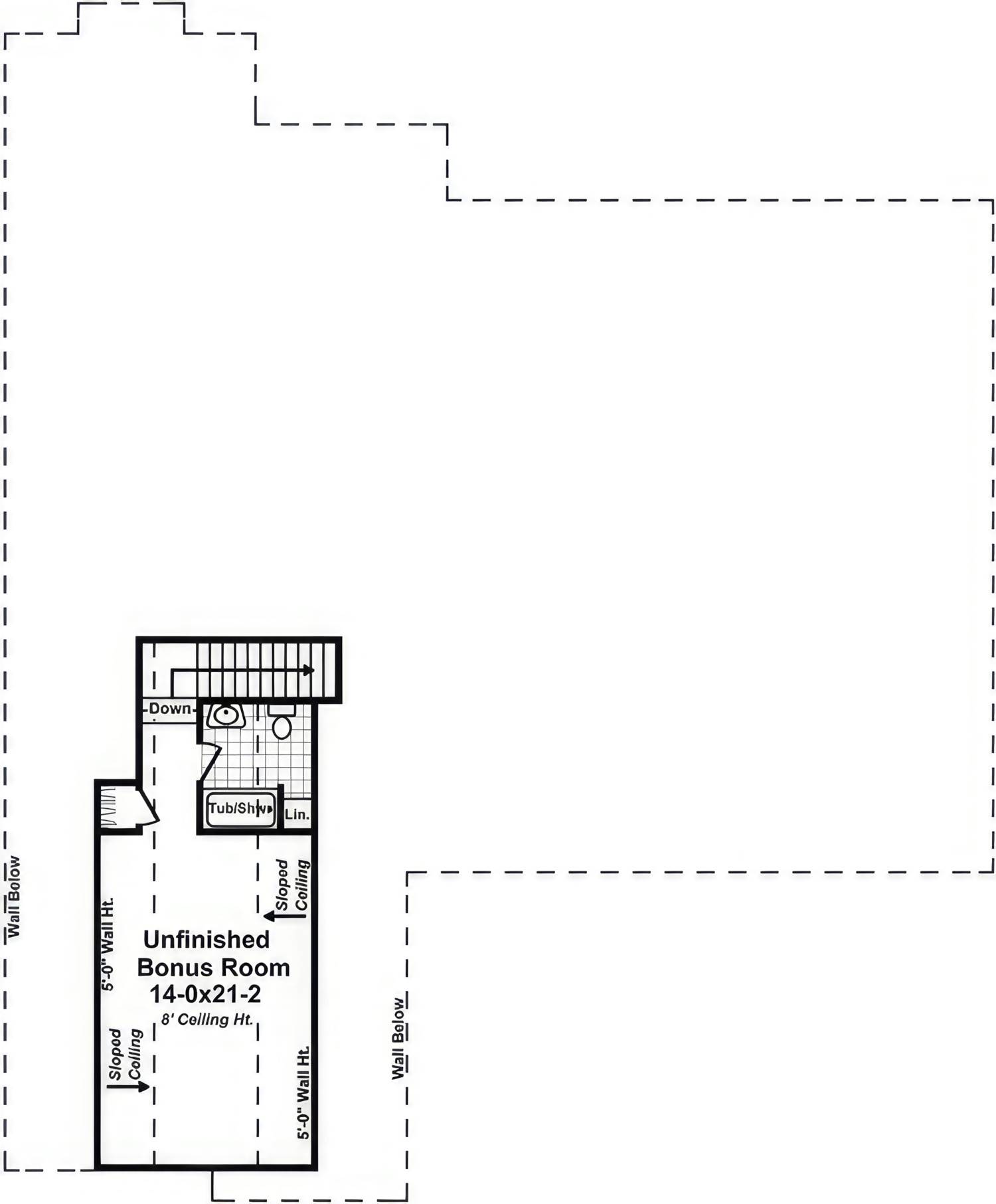
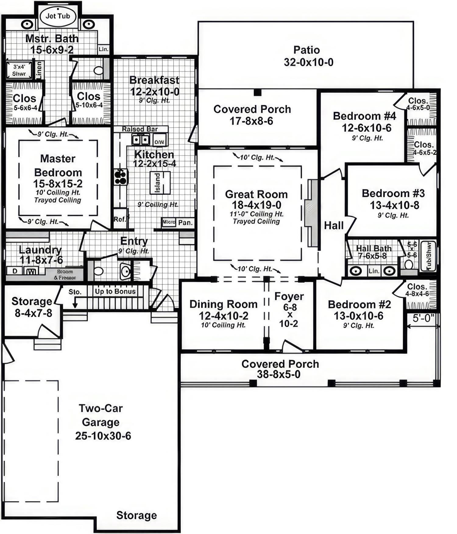
House Plan 11656 delivers a modern farmhouse layout with inviting curb appeal and a thoughtful blend of open spaces and private retreats. The great room features an 11’ trayed ceiling and connects seamlessly to the kitchen and breakfast area, making it perfect for everyday living. The kitchen includes a raised bar island, walk-in pantry, and direct access to the covered rear porch for easy indoor-outdoor flow. The primary bedroom sits on the main level with dual walk-in closets and a spacious ensuite bathroom. Three additional bedrooms share a hall bath on the opposite side of the home, creating a comfortable split layout. A formal dining room and foyer add traditional charm, while the home office provides a quiet workspace. The side-entry two-car garage includes convenient storage, and the unfinished bonus room upstairs offers flexible future space.
House Plan Pricing
STEP 1 Select Your Package

Study Set - Printed


One printed set of house plans stamped NOT FOR CONSTRUCTION". This set is intended for review purposes and are mailed to you. To build from the plans, you need to upgrade to a licensed set.
Study Set - Printed $1,250
One Printed Set - Not for Construction

5 Printed Sets


Includes 5 physical printed blueprint sets, shipped free via UPS within the Continental U.S. Printed sets ship within 1 business day and are delivered within 3 – 5 business days. These plans may be used to construct one home.

5 Printed Sets $1,500
Five printed sets of house plans

5 Printed Sets + PDF


Includes 5 physical printed blueprint sets, shipped free via UPS within the Continental U.S. Printed sets ship within 1 business day and are delivered within 3 – 5 business days. A complimentary PDF plan set is also emailed within 1 business day for easy sharing and local printing. These plans may be used to construct one home.

5 Printed Sets + PDF $1,700
5 Printed Sets + PDF

PDF Single Build


Digital plans emailed to you in PDF format that allows for printing copies and sharing electronically with contractors, subs, decorators, and more. This package includes a license to build the home one time.

PDF Single Build $1,400
Most recommended package

CAD + PDF Single Build


This plan package is created in AutoCAD and delivered in .DWG format. CAD files are intended for use by design professionals, structural engineers, and builders to update plans for local building codes or to make revisions based on specific needs, lot requirements, and budget considerations. A complimentary PDF copy is included with this package for reference. CAD packages are delivered within 1 to 2 business days.
 
This package also comes with a copyright release for making revisions and printing unlimited copies.

For details on the specific CAD program used, please refer to the PLAN DETAILS section located above the floor plan on each plan page.

CAD + PDF Single Build $2,100
2D electronic editable computer files
STEP 2 Need To Reverse This Plan?
STEP 3 CHOOSE YOUR FOUNDATION
STEP 4 OPTIONAL ADD-ONS
Subtotal:
$1500
FREE SHIPPING
 
Plan Details
See All Details
Finished Square Footage
3,695 Sq. Ft.
Main Level:
2,393 Sq. Ft.
Total:
Room Details
4
Bedrooms:
2
Full Baths:
1
Half Baths:
General House Information
1.5
Number of Stories:
65' 2"
Width:
79' 0"
Depth:
Single
Dwelling Number:
Unfinished Square Footage
929 Sq. Ft.
Garage:
233 Sq. Ft.
Front Porch:
150 Sq. Ft.
Rear Porch:
442 Sq. Ft.
Bonus Room:
GARAGE
Side
Garage Location:
2
Garage Size:
Exterior Style
Country
Farmhouse
Modern Farmhouse
Traditional
Collections
Open Floor Plan
Outdoor Living
Split Bedroom
Foundation
Crawl Space
Slab
Framing Information
Stick
Roof Framing:
2x6
Exterior Wall Framing:
Roof Pitch
10 in 12
Primary:
3 in 12
Secondary:
Roof Load
30
Live:
10
Dead:
40
Wind:
Insulation (R)
15
Exterior Wall:
38
Interior Wall:
19
Ceiling:
19
Floor:
House And Ceiling Heights
9
First Floor Ceiling:
28' 4"
Maximum House Height:
Key Features
Attached
Bonus Room
Country Kitchen
Covered Front Porch
Covered Rear Porch
Dining Room
Double Vanity Sink
Fireplace
Formal LR
Foyer
Great Room
His and Hers Primary Closets
Home Office
Kitchen Island
Laundry 1st Fl
Library/Media Rm
Primary Bdrm Main Floor
Nook / Breakfast Area
Nursery Room
Open Floor Plan
Oversized
Pantry
Peninsula / Eating Bar
Rear Porch
Rec Room
Separate Tub and Shower
Split Bedrooms
Storage Space
Unfinished Space
Vaulted Ceilings
Walk-in Closet

Our Guarantees

  • Only the highest quality plans
  • Int’l Residential Code Compliant
  • Full structural details on all plans
  • Best plan price guarantee
  • Free modification Estimates
  • Builder-ready construction drawings
  • Expert advice from leading designers
  •  PDFs NOW!™ plans in minutes
  • 100% satisfaction guarantee
  • Free Home Building Organizer