15% off ALL House Plans Sitewide
15% off ALL House Plans Sitewide

House Plan: DFD-11658

See All 20 Photos > (photographs may reflect modified homes)
© copyright by designer
SQ FT
3,187
BEDS
4
BATHS
3.5
STORIES
2
CARS
2
HOUSE PLANS SALE 
START AT  $1,015.75
For questions and help, live chat, email or call us at 877-895-5299
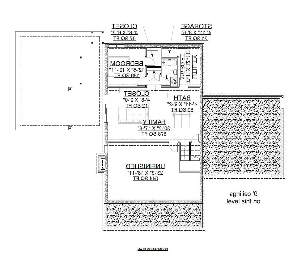
Floor Plans
Click to Zoom In on Floor Plan
 
About House Plan 11658:
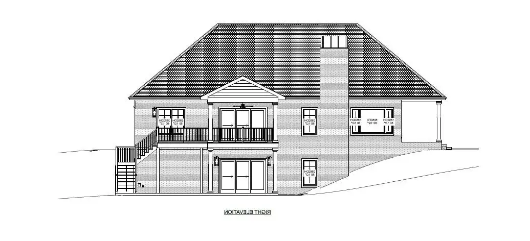
This inviting Craftsman home offers 3,187 heated square feet with four bedrooms and three and a half baths, perfectly designed for modern family life. The kitchen includes a butler’s pantry, large island, and eating bar that flow seamlessly into the dining and family areas. A main-floor primary suite features his-and-hers closets and a luxurious bath with a soaking tub and separate shower. Upstairs, three additional bedrooms share access to flexible living and storage areas, creating space for everyone. Outdoor living is enhanced by a covered porch and a generous deck overlooking the backyard. The side-entry garage and timeless rooflines elevate its street presence. Designed for both comfort and charm, this home welcomes family gatherings and everyday enjoyment alike.
House Plan Pricing
STEP 1 Select Your Package

PDF Single Build


Digital plans emailed to you in PDF format that allows for printing copies and sharing electronically with contractors, subs, decorators, and more. This package includes a license to build the home one time.

PDF Single Build $1,195
Most recommended package

PDF Unlimited Build


Digital plans with an unlimited build license emailed in PDF format, that allows for printing copies on a home printer or local print shop and sharing with contractors, subs, decorators and more 

PDF Unlimited Build $1,695
Digital plans including unlimited build license

CAD + PDF Unlimited Build


This plan package is created in AutoCAD and delivered in .DWG format. CAD files are intended for use by design professionals, structural engineers, and builders to update plans for local building codes or to make revisions based on specific needs, lot requirements, and budget considerations. A complimentary PDF copy is included with this package for reference. CAD packages are delivered within 1 to 2 business days.
 
This package also comes with a multi-use building license, granting permission to construct the home an unlimited number of times, along with a copyright release for making revisions and printing unlimited copies.
 
For details on the specific CAD program used, please refer to the PLAN DETAILS section located above the floor plan on each plan page.

CAD + PDF Unlimited Build $2,195
2D electronic editable computer files
STEP 2 Need To Reverse This Plan?
STEP 3 CHOOSE YOUR FOUNDATION
STEP 4 OPTIONAL ADD-ONS
Subtotal:
$1195
FREE SHIPPING
 
Plan Details
See All Details
Finished Square Footage
1,594 Sq. Ft.
Main Level:
493 Sq. Ft.
Upper Level:
1,100 Sq. Ft.
Lower Level:
3,187 Sq. Ft.
Total:
Room Details
4
Bedrooms:
3
Full Baths:
1
Half Baths:
General House Information
2
Number of Stories:
70' 0"
Width:
60' 0"
Depth:
Single
Dwelling Number:
Unfinished Square Footage
677 Sq. Ft.
Garage:
256 Sq. Ft.
Porch:
264 Sq. Ft.
Deck:
GARAGE
Side
Garage Location:
2
Garage Size:
Exterior Style
Country
Craftsman
Modern Farmhouse
Ranch
Traditional
Collections
Affordable
Open Floor Plan
Split Bedroom
Foundation
Basement
Crawl Space
Monolithic Slab
Slab
Walkout Basement
Framing Information
Stick
Roof Framing:
2x4
Exterior Wall Framing:
Roof Pitch
10/12
Primary:
4/12
Secondary:
6/12
Teritary:
Insulation (R)
House And Ceiling Heights
9
First Floor Ceiling:
8
Second Floor Ceiling:
23' 6"
Maximum House Height:
Key Features
Attached
Butler's Pantry
Covered Front Porch
Deck
Dining Room
Double Vanity Sink
Family Room
Fireplace
Front-entry
His and Hers Primary Closets
Home Office
Kitchen Island
Laundry 1st Fl
L-Shaped
Primary Bdrm Main Floor
Open Floor Plan
Peninsula / Eating Bar
Separate Tub and Shower
Split Bedrooms
Storage Space
Suited for corner lot
Unfinished Space
Walk-in Closet

Our Guarantees

  • Only the highest quality plans
  • Int’l Residential Code Compliant
  • Full structural details on all plans
  • Best plan price guarantee
  • Free modification Estimates
  • Builder-ready construction drawings
  • Expert advice from leading designers
  •  PDFs NOW!™ plans in minutes
  • 100% satisfaction guarantee
  • Free Home Building Organizer