15% off ALL House Plans Sitewide
15% off ALL House Plans Sitewide

House Plan: DFD-11686

See All 2 Photos > (photographs may reflect modified homes)
© copyright by designer
SQ FT
3,389
BEDS
3
BATHS
2.5
STORIES
2
CARS
2
HOUSE PLANS SALE 
START AT  $1,870.00
For questions and help, live chat, email or call us at 877-895-5299
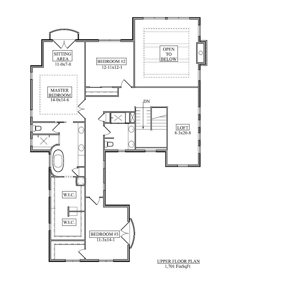
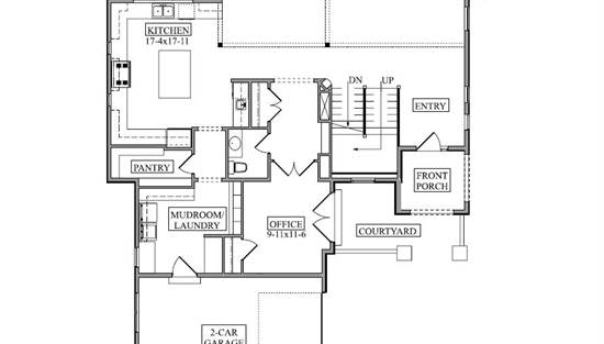
Floor Plans
Click to Zoom In on Floor Plan
 
About House Plan 11686:
With 3,389 heated square feet, this elegant two-story home combines practical family design with graceful architectural appeal. The main level showcases open-concept living, connecting the great room, dining area, and gourmet kitchen complete with a butler’s pantry and large island. A home office and mud room add everyday convenience, while the upper level features a luxurious primary suite with a private sitting area and spacious walk-in closet. The loft offers additional room for relaxing or entertaining. The lower floor includes a recreation area and unfinished spaces ready for customization. Outdoor areas like the courtyard, covered porch, and deck create inviting spots for entertaining or quiet retreat. This thoughtful layout brings together elegance, livability, and timeless charm.
House Plan Pricing
STEP 1 Select Your Package

PDF Single Build


Digital plans emailed to you in PDF format that allows for printing copies and sharing electronically with contractors, subs, decorators, and more. This package includes a license to build the home one time.

PDF Single Build $2,200
Most recommended package

5 Printed Sets + PDF


Includes 5 physical printed blueprint sets, shipped free via UPS within the U.S. Printed sets ship within 1 business day and are delivered within 3 – 5 business days. A complimentary PDF plan set is also emailed within 1 business day for easy sharing and local printing. These plans may be used to construct one home.

5 Printed Sets + PDF $2,550
5 Printed Sets + PDF

PDF Unlimited Build


Digital plans with an unlimited build license emailed in PDF format, that allows for printing copies on a home printer or local print shop and sharing with contractors, subs, decorators and more 

PDF Unlimited Build $3,150
Digital plans including unlimited build license

CAD + PDF Single Build


This plan package is created in AutoCAD and delivered in .DWG format. CAD files are intended for use by design professionals, structural engineers, and builders to update plans for local building codes or to make revisions based on specific needs, lot requirements, and budget considerations. A complimentary PDF copy is included with this package for reference. CAD packages are delivered within 1 to 2 business days.
 
This package also comes with a copyright release for making revisions and printing unlimited copies.

For details on the specific CAD program used, please refer to the PLAN DETAILS section located above the floor plan on each plan page.

CAD + PDF Single Build $3,700
2D electronic editable computer files

CAD Unlimited Build


CAD files are a complete set of construction drawings delivered electronically. They can be used for any type of modification—including major design changes and engineering—and include a release granting permission to modify the plan. Most CAD plan orders are emailed the same or next business day. CAD files are provided in .dwg format. For details on the specific CAD program used, please refer to the PLAN DETAILS section located above the floor plan on each plan’s page.
CAD Unlimited Build $5,400
2D electronic editable computer files
STEP 2 Need To Reverse This Plan?
STEP 3 CHOOSE YOUR FOUNDATION
STEP 4 OPTIONAL ADD-ONS
Subtotal:
$2200
FREE SHIPPING
 
Plan Details
See All Details
Finished Square Footage
1,688 Sq. Ft.
Main Level:
1,701 Sq. Ft.
Upper Level:
1,040 Sq. Ft.
Lower Level:
3,389 Sq. Ft.
Total:
Room Details
3
Bedrooms:
2
Full Baths:
1
Half Baths:
General House Information
2
Number of Stories:
47' 0"
Width:
69' 6"
Depth:
Single
Dwelling Number:
Unfinished Square Footage
492 Sq. Ft.
Garage:
GARAGE
Front
Garage Location:
2
Garage Size:
Exterior Style
European
Mediterranean
Modern Farmhouse
Transitional
Tuscan
Collections
Affordable
First Home
Open Floor Plan
Foundation
Basement
Crawl Space
Slab
Walkout Basement
Framing Information
2x6
Exterior Wall Framing:
Roof Pitch
8/12
Primary:
Insulation (R)
House And Ceiling Heights
9
First Floor Ceiling:
8
Second Floor Ceiling:
29' 1"
Maximum House Height:
Key Features
Attached
Butler's Pantry
Courtyard
Covered Rear Porch
Deck
Dining Room
Double Vanity Sink
Family Style
Fireplace
Great Room
Home Office
Kitchen Island
Laundry 1st Fl
Loft / Balcony
L-Shaped
Primary Bdrm Upstairs
Mud Room
Open Floor Plan
Peninsula / Eating Bar
Rec Room
Separate Tub and Shower
Side-entry
Sitting Area
Storage Space
Suited for corner lot
Unfinished Space
U-Shaped
Walk-in Closet

Our Guarantees

  • Only the highest quality plans
  • Int’l Residential Code Compliant
  • Full structural details on all plans
  • Best plan price guarantee
  • Free modification Estimates
  • Builder-ready construction drawings
  • Expert advice from leading designers
  •  PDFs NOW!™ plans in minutes
  • 100% satisfaction guarantee
  • Free Home Building Organizer