20% off ALL House Plans Sitewide

House Plan: DFD-11697

See All 5 Photos > (photographs may reflect modified homes)
© copyright by designer
SQ FT
2,228
BEDS
3
BATHS
2.5
STORIES
2
CARS
2
HOUSE PLANS SALE 
START AT  $1,491.20
For questions and help, live chat, email or call us at 877-895-5299
Floor Plans
Click to Zoom In on Floor Plan
 
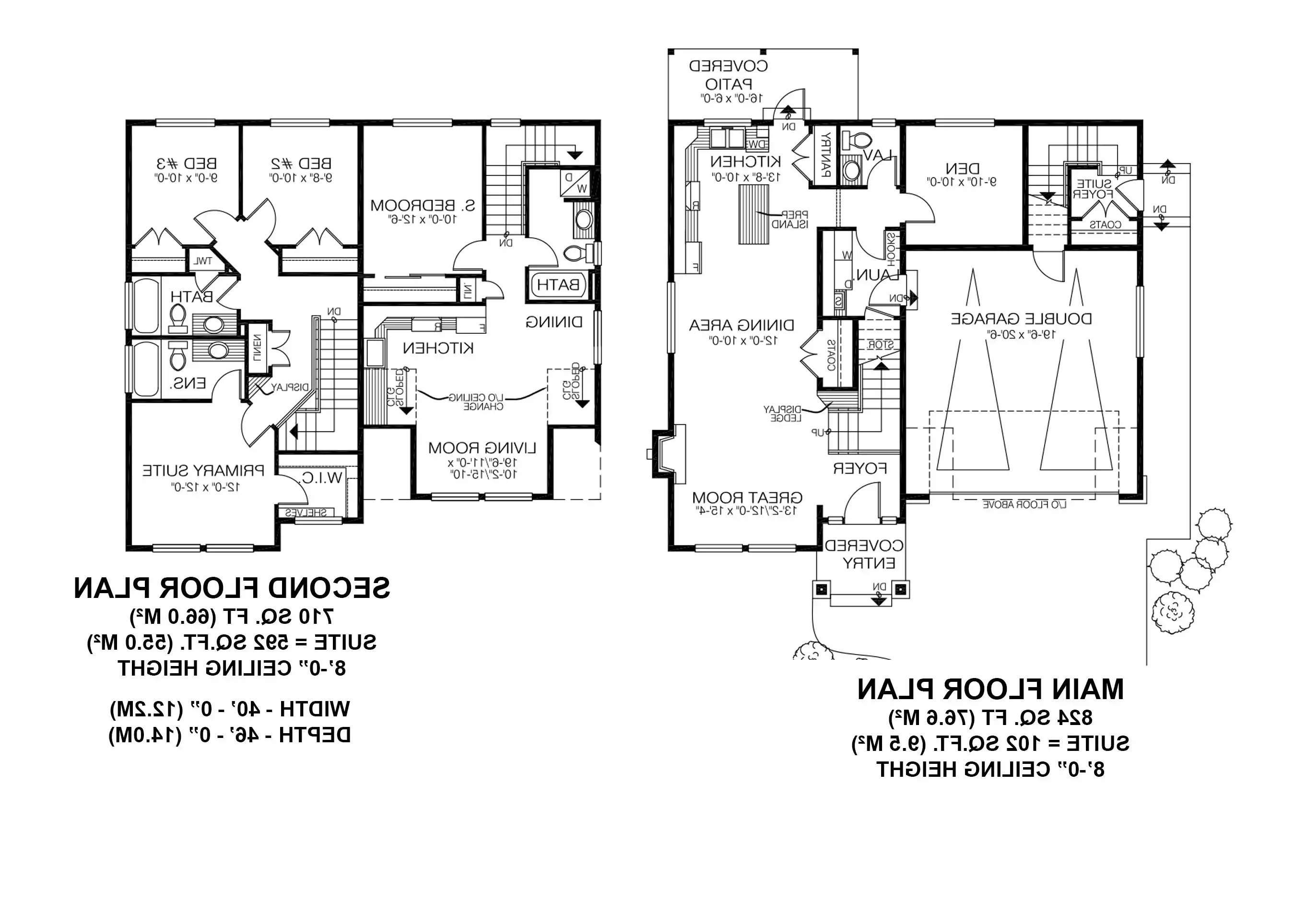
About House Plan 11697:
This 2,228 square foot design balances style, function, and the flexibility of multi-generational living. The main floor features a covered entry, foyer, and an open great room with a fireplace that flows into the dining area and L-shaped kitchen. A central island and pantry support easy meal prep, while access to the covered patio encourages outdoor relaxation. A flex den provides room to work or unwind. On the second floor, the primary suite is paired with an ensuite, and two additional bedrooms share a full bath. The home also includes a completely separate suite with its own living room, kitchen, dining space, bedroom, and full bath, offering privacy for guests, in-laws, or rental potential. A double car garage on the main level adds to everyday convenience.
House Plan Pricing
STEP 1 Select Your Package

PDF Single Build


Digital plans emailed to you in PDF format that allows for printing copies and sharing electronically with contractors, subs, decorators, and more. This package includes a license to build the home one time.

PDF Single Build $1,864
Most recommended package

5 Printed Sets + PDF


Includes 5 physical printed blueprint sets, shipped free via UPS within the U.S. Printed sets ship within 1 business day and are delivered within 3 – 5 business days. A complimentary PDF plan set is also emailed within 1 business day for easy sharing and local printing. These plans may be used to construct one home.

5 Printed Sets + PDF $2,019
5 Printed Sets + PDF

CAD + PDF Single Build


This plan package is created in AutoCAD and delivered in .DWG format. CAD files are intended for use by design professionals, structural engineers, and builders to update plans for local building codes or to make revisions based on specific needs, lot requirements, and budget considerations. A complimentary PDF copy is included with this package for reference. CAD packages are delivered within 1 to 2 business days.
 
This package also comes with a copyright release for making revisions and printing unlimited copies.

For details on the specific CAD program used, please refer to the PLAN DETAILS section located above the floor plan on each plan page.

CAD + PDF Single Build $3,461
2D electronic editable computer files

CAD + PDF Unlimited Build


This plan package is created in AutoCAD and delivered in .DWG format. CAD files are intended for use by design professionals, structural engineers, and builders to update plans for local building codes or to make revisions based on specific needs, lot requirements, and budget considerations. A complimentary PDF copy is included with this package for reference. CAD packages are delivered within 1 to 2 business days.
 
This package also comes with a multi-use building license, granting permission to construct the home an unlimited number of times, along with a copyright release for making revisions and printing unlimited copies.
 
For details on the specific CAD program used, please refer to the PLAN DETAILS section located above the floor plan on each plan page.

CAD + PDF Unlimited Build $6,846
2D electronic editable computer files
STEP 2 Need To Reverse This Plan?
STEP 3 CHOOSE YOUR FOUNDATION
STEP 4 OPTIONAL ADD-ONS
Subtotal:
$1864
FREE SHIPPING
 
Plan Details
See All Details
Finished Square Footage
824 Sq. Ft.
Main Level:
710 Sq. Ft.
Upper Level:
2,228 Sq. Ft.
Total:
Room Details
3
Bedrooms:
2
Full Baths:
1
Half Baths:
General House Information
2
Number of Stories:
40' 0"
Width:
46' 0"
Depth:
Single
Dwelling Number:
Unfinished Square Footage
420 Sq. Ft.
Garage:
45 Sq. Ft.
Front Porch:
96 Sq. Ft.
Rear Porch:
GARAGE
Front
Garage Location:
2
Garage Size:
Exterior Style
Craftsman
Farmhouse
Modern Farmhouse
Traditional
Collections
Affordable
Architects Choice
Budget
Builders
Canada
In-Law Suite
Kitchens
Primary Suites
Open Floor Plan
PDFs Fast!
Split Bedroom
Foundation
Basement
Crawlspace
Slab
Walkout Basement
Framing Information
Truss
Roof Framing:
2x6
Exterior Wall Framing:
Roof Pitch
10/12
Primary:
4/12
Dormer:
Insulation (R)
Per IRC Climate Zones
House And Ceiling Heights
8
First Floor Ceiling:
8
Second Floor Ceiling:
27' 8"
Maximum House Height:
Key Features
Attached
Bonus Room
Country Kitchen
Covered Rear Porch
Fireplace
Front-entry
Great Room
Kitchen Island
Laundry 1st Fl
L-Shaped
Primary Bdrm Upstairs
Open Floor Plan
Pantry
Rear Porch
Split Bedrooms
Suited for corner lot
Walk-in Closet
With Living Space

Our Guarantees

  • Only the highest quality plans
  • Int’l Residential Code Compliant
  • Full structural details on all plans
  • Best plan price guarantee
  • Free modification Estimates
  • Builder-ready construction drawings
  • Expert advice from leading designers
  •  PDFs NOW!™ plans in minutes
  • 100% satisfaction guarantee
  • Free Home Building Organizer