15% off ALL House Plans Sitewide
15% off ALL House Plans Sitewide

House Plan: DFD-11704

See All 5 Photos > (photographs may reflect modified homes)
© copyright by designer
SQ FT
1,998
BEDS
3
BATHS
2
STORIES
2
CARS
3
HOUSE PLANS SALE 
START AT  $1,465.40
For questions and help, live chat, email or call us at 877-895-5299
Floor Plans
Click to Zoom In on Floor Plan
 
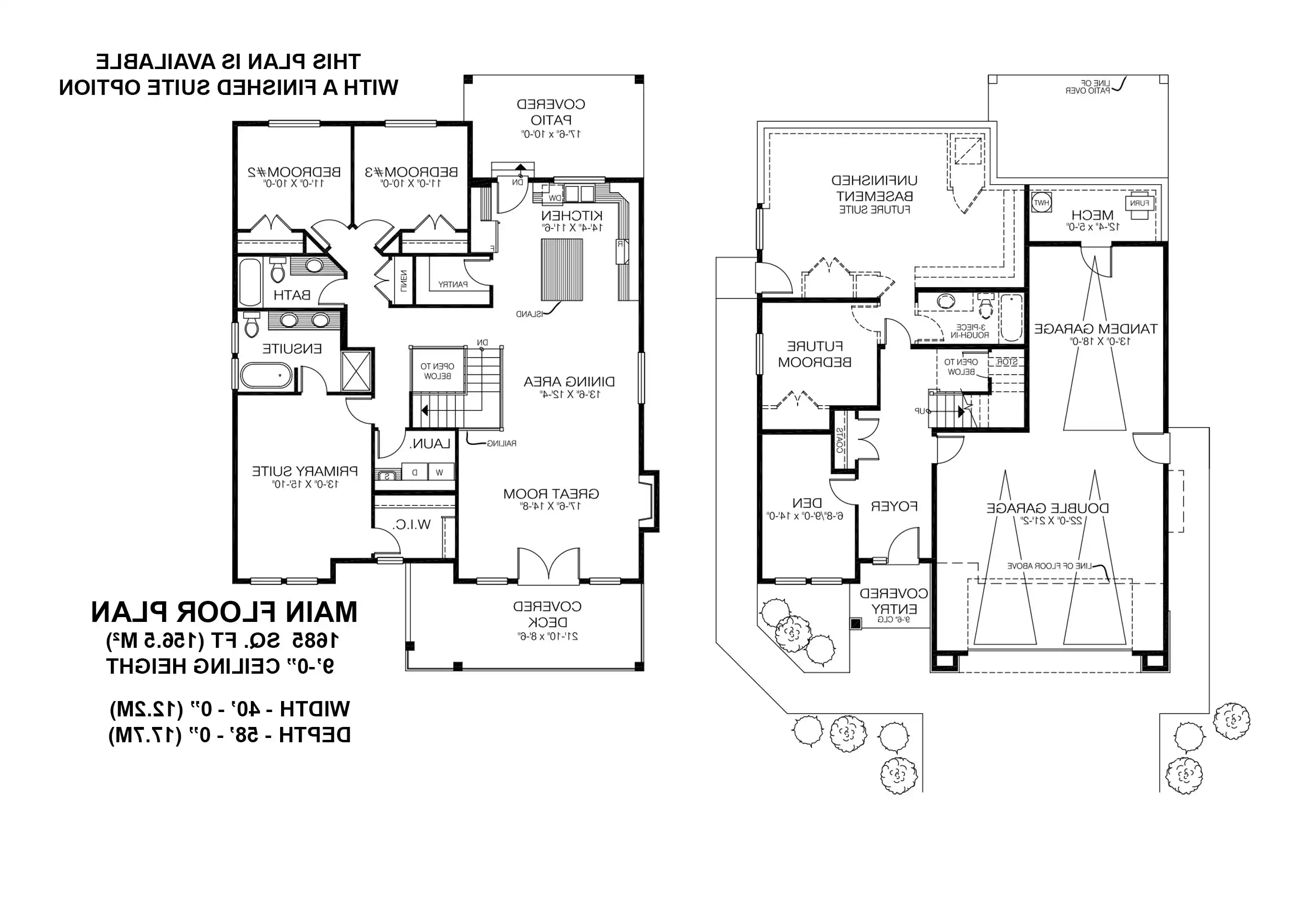
About House Plan 11704:
House Plan 11704 delivers 1,998 square feet of thoughtfully designed living space across two stories, ideal for growing families or multi-generational living. The lower level includes a double garage with tandem parking, a welcoming entry foyer, and a flexible den. A future suite with private access provides the perfect setup for in-laws, guests, or added income potential. On the main floor, the open-concept layout connects the great room, dining area, and L-shaped kitchen, creating a bright, spacious environment for entertaining or daily life. The primary suite features a private ensuite and walk-in closet, while two additional bedrooms share a full bath. A dedicated laundry area, covered front deck, and rear covered patio add comfort and convenience. With its blend of open living, flexible spaces, and modern appeal, this plan offers both style and versatility.
House Plan Pricing
STEP 1 Select Your Package

PDF Single Build


Digital plans emailed to you in PDF format that allows for printing copies and sharing electronically with contractors, subs, decorators, and more. This package includes a license to build the home one time.

PDF Single Build $1,724
Most recommended package

5 Printed Sets + PDF


Includes 5 physical printed blueprint sets, shipped free via UPS within the U.S. Printed sets ship within 1 business day and are delivered within 3 – 5 business days. A complimentary PDF plan set is also emailed within 1 business day for easy sharing and local printing. These plans may be used to construct one home.

5 Printed Sets + PDF $1,881
5 Printed Sets + PDF

CAD + PDF Single Build


This plan package is created in AutoCAD and delivered in .DWG format. CAD files are intended for use by design professionals, structural engineers, and builders to update plans for local building codes or to make revisions based on specific needs, lot requirements, and budget considerations. A complimentary PDF copy is included with this package for reference. CAD packages are delivered within 1 to 2 business days.
 
This package also comes with a copyright release for making revisions and printing unlimited copies.

For details on the specific CAD program used, please refer to the PLAN DETAILS section located above the floor plan on each plan page.

CAD + PDF Single Build $3,201
2D electronic editable computer files

CAD + PDF Unlimited Build


This plan package is created in AutoCAD and delivered in .DWG format. CAD files are intended for use by design professionals, structural engineers, and builders to update plans for local building codes or to make revisions based on specific needs, lot requirements, and budget considerations. A complimentary PDF copy is included with this package for reference. CAD packages are delivered within 1 to 2 business days.
 
This package also comes with a multi-use building license, granting permission to construct the home an unlimited number of times, along with a copyright release for making revisions and printing unlimited copies.
 
For details on the specific CAD program used, please refer to the PLAN DETAILS section located above the floor plan on each plan page.

CAD + PDF Unlimited Build $6,312
2D electronic editable computer files
STEP 2 Need To Reverse This Plan?
STEP 3 CHOOSE YOUR FOUNDATION
STEP 4 OPTIONAL ADD-ONS
Subtotal:
$1724
FREE SHIPPING
 
Plan Details
See All Details
Finished Square Footage
1,005 Sq. Ft.
Main Level:
1,629 Sq. Ft.
Upper Level:
1,998 Sq. Ft.
Total:
Room Details
3
Bedrooms:
2
Full Baths:
General House Information
2
Number of Stories:
40' 0"
Width:
58' 0"
Depth:
Single
Dwelling Number:
Unfinished Square Footage
850 Sq. Ft.
Garage:
175 Sq. Ft.
Rear Porch:
175 Sq. Ft.
Deck:
GARAGE
Front
Garage Location:
3
Garage Size:
Exterior Style
Farmhouse
Modern Farmhouse
Traditional
Transitional
Collections
Affordable
Architects Choice
Canada
In-Law Suite
Open Floor Plan
Foundation
Basement
Crawl Space
Slab
Walkout Basement
Framing Information
Truss
Roof Framing:
2x6
Exterior Wall Framing:
Roof Pitch
6/12
Primary:
8/12
Gable:
Insulation (R)
Per IRC Climate Zones
House And Ceiling Heights
8
First Floor Ceiling:
9
Second Floor Ceiling:
30' 2"
Maximum House Height:
Key Features
Attached
Country Kitchen
Covered Rear Porch
Deck
Double Vanity Sink
Drive-under
Exercise Room
Fireplace
Foyer
Front Porch
Front-entry
Great Room
Home Office
In-law Suite
Kitchen Island
Laundry 2nd Fl
L-Shaped
Primary Bdrm Upstairs
Open Floor Plan
Pantry
Rear Porch
Separate Tub and Shower
Split Bedrooms
Storage Space
Suited for sloping lot
Suited for view lot
Tandem
Unfinished Space
Walk-in Closet
Walk-in Pantry
Workshop

Our Guarantees

  • Only the highest quality plans
  • Int’l Residential Code Compliant
  • Full structural details on all plans
  • Best plan price guarantee
  • Free modification Estimates
  • Builder-ready construction drawings
  • Expert advice from leading designers
  •  PDFs NOW!™ plans in minutes
  • 100% satisfaction guarantee
  • Free Home Building Organizer