20% off ALL House Plans Sitewide
20% off ALL House Plans Sitewide

House Plan: DFD-11723

See All 10 Photos > (photographs may reflect modified homes)
© copyright by designer
SQ FT
767
BEDS
2
BATHS
1.5
STORIES
2
CARS
2
HOUSE PLANS SALE 
START AT  $716.00
For questions and help, live chat, email or call us at 877-895-5299
Floor Plans
Click to Zoom In on Floor Plan
 
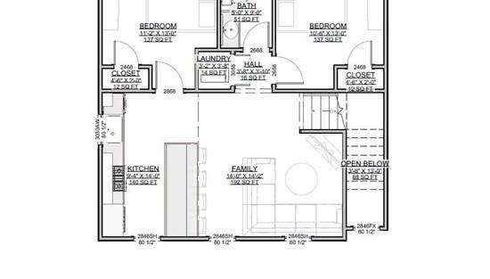
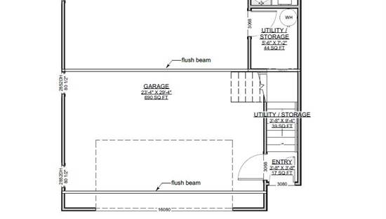
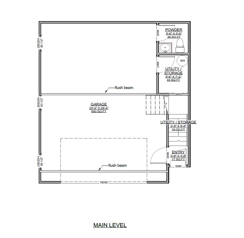
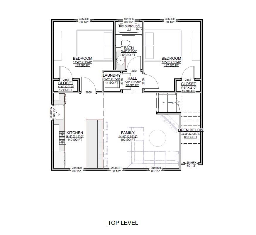
About House Plan 11723:
Compact yet inviting, this 767-square-foot home offers an ideal floor plan for small families or those starting their homeownership journey. The open kitchen features an island and eating bar, creating a natural gathering spot that connects seamlessly with the family room. Upstairs, the primary suite includes a spacious walk-in closet, while the conveniently located laundry adds everyday ease. A second bedroom provides versatility for guests or work-from-home needs. The front-entry garage keeps the footprint efficient while maintaining great curb appeal. Designed with simplicity and comfort in mind, this home proves that a smaller space can still feel open and full of character. Perfect for those seeking affordable style and easy living.
House Plan Pricing
STEP 1 Select Your Package

PDF Single Build


Digital plans emailed to you in PDF format that allows for printing copies and sharing electronically with contractors, subs, decorators, and more. This package includes a license to build the home one time.

PDF Single Build $895
Most recommended package

PDF Unlimited Build


Digital plans with an unlimited build license emailed in PDF format, that allows for printing copies on a home printer or local print shop and sharing with contractors, subs, decorators and more 

PDF Unlimited Build $1,345
Digital plans including unlimited build license

CAD + PDF Unlimited Build


CAD files are a complete set of construction drawings delivered electronically. They can be used for any type of modification—including major design changes and engineering—and include a release granting permission to modify the plan. Most CAD plan orders are emailed the same or next business day.
 
This package also comes with a PDF set of plans and a multi-use building license, granting permission to construct the home an unlimited number of times, along with a copyright release for making modifications and printing unlimited copies.
 
CAD files are provided in .dwg format. For details on the specific CAD program used, please refer to the PLAN DETAILS section located above the floor plan on each plan’s page.

CAD + PDF Unlimited Build $1,895
2D electronic editable computer files
STEP 2 Need To Reverse This Plan?
STEP 3 CHOOSE YOUR FOUNDATION
STEP 4 OPTIONAL ADD-ONS
Subtotal:
$895
FREE SHIPPING
 
Plan Details
See All Details
Finished Square Footage
55 Sq. Ft.
Main Level:
712 Sq. Ft.
Upper Level:
767 Sq. Ft.
Total:
Room Details
2
Bedrooms:
1
Full Baths:
1
Half Baths:
General House Information
2
Number of Stories:
28' 0"
Width:
30' 0"
Depth:
Single
Dwelling Number:
Unfinished Square Footage
690 Sq. Ft.
Garage:
GARAGE
Front
Garage Location:
2
Garage Size:
Exterior Style
Country
Traditional
Collections
Affordable
Budget
First Home
Foundation
Monolithic Slab
Stem Wall Slab
Framing Information
Stick
Roof Framing:
2x4
Exterior Wall Framing:
Roof Pitch
8/12
Primary:
Insulation (R)
House And Ceiling Heights
9
First Floor Ceiling:
8
Second Floor Ceiling:
27' 10"
Maximum House Height:
Key Features
Attached
Family Room
Family Style
Front-entry
Kitchen Island
Laundry 2nd Fl
L-Shaped
Primary Bdrm Upstairs
No Porch
Peninsula / Eating Bar
Storage Space
Suited for corner lot
Walk-in Closet

Our Guarantees

  • Only the highest quality plans
  • Int’l Residential Code Compliant
  • Full structural details on all plans
  • Best plan price guarantee
  • Free modification Estimates
  • Builder-ready construction drawings
  • Expert advice from leading designers
  •  PDFs NOW!™ plans in minutes
  • 100% satisfaction guarantee
  • Free Home Building Organizer