20% off ALL House Plans Sitewide
20% off ALL House Plans Sitewide

House Plan: DFD-11730

See All 4 Photos > (photographs may reflect modified homes)
© copyright by designer
SQ FT
2,900
BEDS
4
BATHS
3.5
STORIES
2
CARS
0
HOUSE PLANS SALE 
START AT  $1,828.00
For questions and help, live chat, email or call us at 877-895-5299
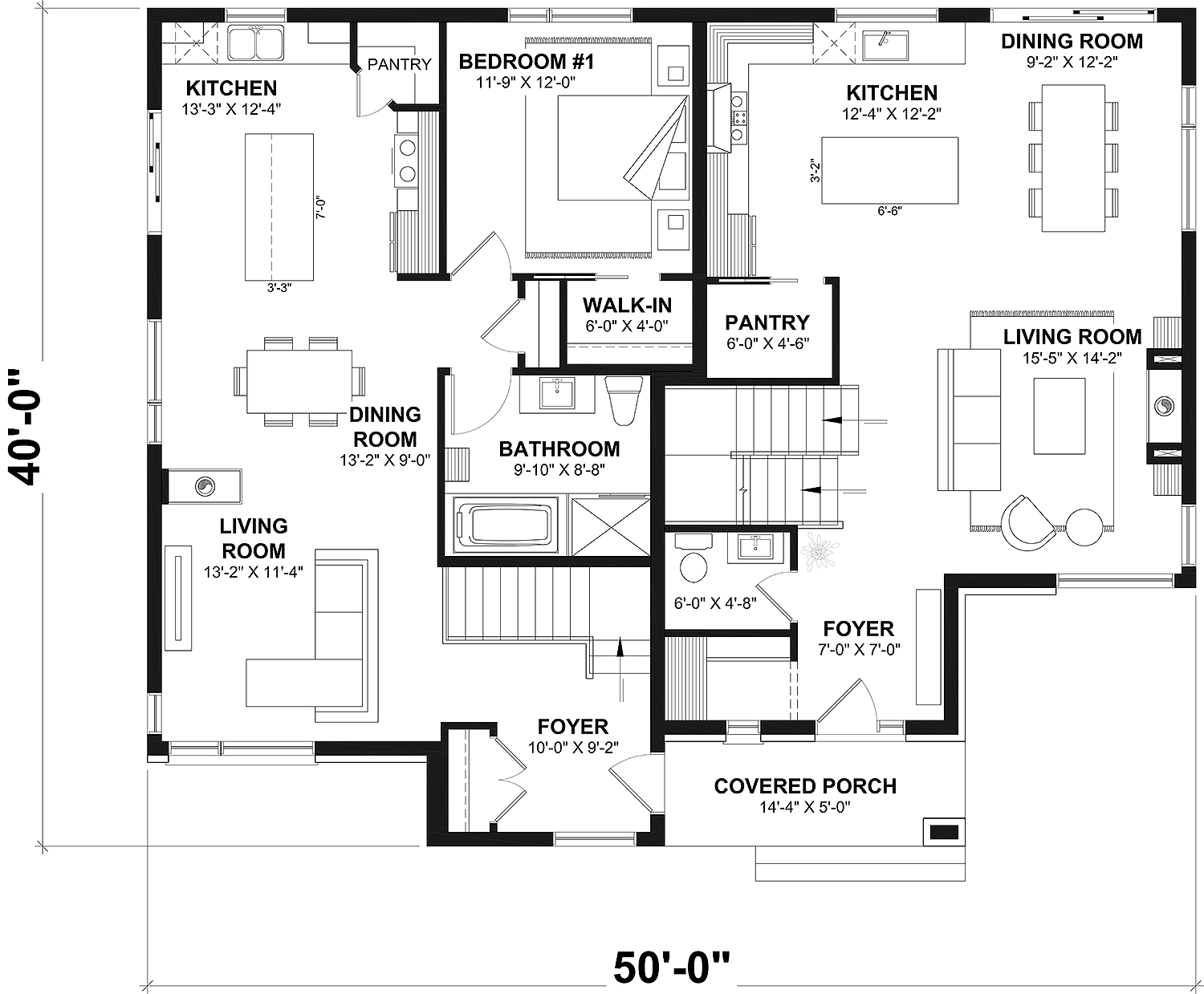
Floor Plans
Click to Zoom In on Floor Plan
 
About House Plan 11730:
House Plan 11730 checks the boxes for families looking for a multigenerational solution! This modern home offers 2,900 square feet with four bedrooms and three-and-a-half bathrooms in total, spread across two stories. The main house is perfect for the average family with open-concept living on the main floor and three bedrooms upstairs while the secondary unit on the main floor offers one bedroom and one bathroom alongside open-concept living as well. Both sides get an island kitchen and a fireplace! 
House Plan Pricing
STEP 1 Select Your Package

PDF Single Build


Digital plans emailed to you in PDF format that allows for printing copies and sharing electronically with contractors, subs, decorators, and more. This package includes a license to build the home one time.

PDF Single Build $2,285
Most recommended package

3 sets + PDF


Please allow 3-5 days for delivery
3 sets + PDF $2,425
3 sets + PDF

CAD + PDF Single Build


CAD files are a complete set of construction drawings delivered electronically. They can be used for any type of modification—including major design changes and engineering—and include a release granting permission to modify the plan. Most CAD plan orders are emailed the same or next business day.
 
This package also comes with a PDF set of plans and a copyright release for making modifications and printing unlimited copies.
 
CAD files are provided in .dwg format. For details on the specific CAD program used, please refer to the PLAN DETAILS section located above the floor plan on each plan’s page.

CAD + PDF Single Build $3,675
2D electronic editable computer files
STEP 2 Need To Reverse This Plan?
STEP 3 CHOOSE YOUR FOUNDATION
STEP 4 OPTIONAL ADD-ONS
Subtotal:
$2285
FREE SHIPPING

Orders for this plan will be fulfilled after January 4th. Please check our PDFs NOW!™ collection for plans that can be downloaded and received immediately or live chat, email or call us at 877-895-5299 to help you find a similar plan available immediately.

 
Plan Details
See All Details
Finished Square Footage
1,742 Sq. Ft.
Main Level:
1,158 Sq. Ft.
Upper Level:
1,742 Sq. Ft.
Lower Level:
2,900 Sq. Ft.
Total:
Room Details
4
Bedrooms:
3
Full Baths:
1
Half Baths:
General House Information
2
Number of Stories:
50' 0"
Width:
40' 0"
Depth:
Single
Dwelling Number:
None
Bonus Access:
Unfinished Square Footage
72 Sq. Ft.
Porch:
GARAGE
0
Garage Size:
Exterior Style
Contemporary
Modern
Scandinavian
Transitional
Collections
Canada
In-Law Suite
Primary Suites
Open Floor Plan
Foundation
Crawlspace
Floating slab
Full Unfinished Basement (included)
Monolithic slab
Framing Information
Truss
Roof Framing:
2x6
Exterior Wall Framing:
Roof Pitch
6/12
Primary:
Insulation (R)
House And Ceiling Heights
9
First Floor Ceiling:
8
Second Floor Ceiling:
28' 2"
Maximum House Height:
Key Features
Covered Front Porch
Double Vanity Sink
Family Style
Fireplace
Foyer
Great Room
In-law Suite
Kitchen Island
Laundry 2nd Fl
L-Shaped
Primary Bdrm Upstairs
Mud Room
None
Open Floor Plan
Separate Tub and Shower
Walk-in Closet
Walk-in Pantry

Our Guarantees

  • Only the highest quality plans
  • Int’l Residential Code Compliant
  • Full structural details on all plans
  • Best plan price guarantee
  • Free modification Estimates
  • Builder-ready construction drawings
  • Expert advice from leading designers
  •  PDFs NOW!™ plans in minutes
  • 100% satisfaction guarantee
  • Free Home Building Organizer