20% off ALL House Plans Sitewide
20% off ALL House Plans Sitewide

House Plan: DFD-11748

See All 10 Photos > (photographs may reflect modified homes)
© copyright by designer
SQ FT
3,024
BEDS
4
BATHS
2.5
STORIES
2
CARS
0
HOUSE PLANS SALE 
START AT  $1,116.00
For questions and help, live chat, email or call us at 877-895-5299
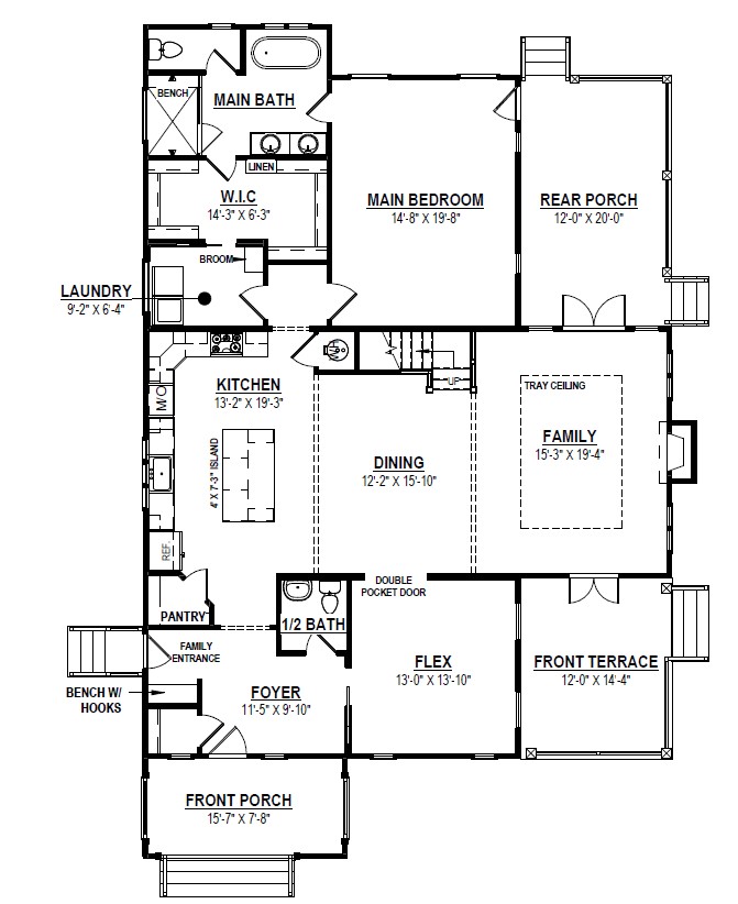
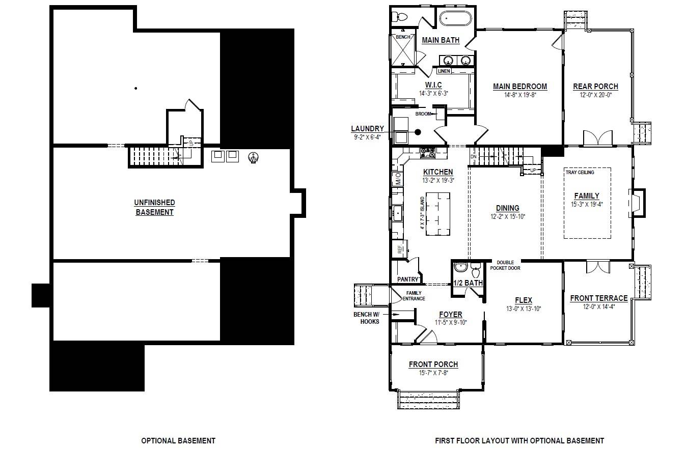
Floor Plans
Click to Zoom In on Floor Plan
 
About House Plan 11748:
House Plan 11748 is a lovely farmhouse with traditional style and a layout modern families will love! The two-story layout offers 3,024 square feet with four bedrooms and two-and-a-half baths. On the main floor, you'll find the flex room and powder room in front, the open-concept great room in the middle, and the five-piece primary suite in back with the laundry room. Don't miss the corner porches! Upstairs, three bedrooms share a four-piece hall bath and a loft. This design gives you the option to add a front-entry or rear-entry garage, if you need one! 
House Plan Pricing
STEP 1 Select Your Package

PDF Single Build


Digital plans emailed to you in PDF format that allows for printing copies and sharing electronically with contractors, subs, decorators, and more. This package includes a license to build the home one time.

PDF Single Build $1,395
Most recommended package

CAD + PDF Single Build


CAD files are a complete set of construction drawings delivered electronically. They can be used for any type of modification—including major design changes and engineering—and include a release granting permission to modify the plan. Most CAD plan orders are emailed the same or next business day.
 
This package also comes with a PDF set of plans and a copyright release for making modifications and printing unlimited copies.
 
CAD files are provided in .dwg format. For details on the specific CAD program used, please refer to the PLAN DETAILS section located above the floor plan on each plan’s page.

CAD + PDF Single Build $1,595
2D electronic editable computer files

5 Printed Sets + PDF


Digital plan emailed to you in PDF format that allows for printing copies on a home printer or local print shop and sharing with contractors, subs, decorators, and more. PLUS five printed sets shipped and delivered 3-5 business days.

5 Printed Sets + PDF $1,770
Digital plans plus 5 printed sets

PDF Unlimited Build


Digital plans with an unlimited build license emailed in PDF format, that allows for printing copies on a home printer or local print shop and sharing with contractors, subs, decorators and more 

PDF Unlimited Build $1,895
Digital plans including unlimited build license

CAD + PDF Unlimited Build


CAD files are a complete set of construction drawings delivered electronically. They can be used for any type of modification—including major design changes and engineering—and include a release granting permission to modify the plan. Most CAD plan orders are emailed the same or next business day.
 
This package also comes with a PDF set of plans and a multi-use building license, granting permission to construct the home an unlimited number of times, along with a copyright release for making modifications and printing unlimited copies.
 
CAD files are provided in .dwg format. For details on the specific CAD program used, please refer to the PLAN DETAILS section located above the floor plan on each plan’s page.

CAD + PDF Unlimited Build $2,095
2D electronic editable computer files
STEP 2 Need To Reverse This Plan?
STEP 3 CHOOSE YOUR FOUNDATION
STEP 4 OPTIONAL ADD-ONS
Subtotal:
$1395
FREE SHIPPING
 
Plan Details
See All Details
Finished Square Footage
1,930 Sq. Ft.
Main Level:
1,094 Sq. Ft.
Upper Level:
1,940 Sq. Ft.
Lower Level:
3,024 Sq. Ft.
Total:
Room Details
4
Bedrooms:
2
Full Baths:
1
Half Baths:
General House Information
2
Number of Stories:
44' 0"
Width:
66' 4"
Depth:
Single
Dwelling Number:
None
Bonus Access:
Unfinished Square Footage
837 Sq. Ft.
Garage:
130 Sq. Ft.
Front Porch:
240 Sq. Ft.
Rear Porch:
GARAGE
0
Garage Size:
Exterior Style
Country
Farmhouse
Modern Farmhouse
Collections
Primary Suites
Open Floor Plan
Outdoor Living
Split Bedroom
Foundation
Basement
Crawl Space
Slab
Framing Information
Truss
Roof Framing:
2x4
Exterior Wall Framing:
Roof Pitch
9/12
Primary:
6/12
Secondary:
Insulation (R)
House And Ceiling Heights
9
First Floor Ceiling:
8
Second Floor Ceiling:
26' 7"
Maximum House Height:
Key Features
Attached
Covered Front Porch
Covered Rear Porch
Double Vanity Sink
Fireplace
Foyer
Front-entry
Great Room
Home Office
Kitchen Island
Laundry 1st Fl
Loft / Balcony
L-Shaped
Primary Bdrm Main Floor
Mud Room
None
Open Floor Plan
Outdoor Living Space
Pantry
Separate Tub and Shower
Side-entry
Split Bedrooms
Storage Space
Walk-in Closet

Our Guarantees

  • Only the highest quality plans
  • Int’l Residential Code Compliant
  • Full structural details on all plans
  • Best plan price guarantee
  • Free modification Estimates
  • Builder-ready construction drawings
  • Expert advice from leading designers
  •  PDFs NOW!™ plans in minutes
  • 100% satisfaction guarantee
  • Free Home Building Organizer

See terms opt out anytime