15% off ALL House Plans Sitewide
15% off ALL House Plans Sitewide

House Plan: DFD-11776

See All 9 Photos > (photographs may reflect modified homes)
© copyright by designer
SQ FT
1,555
BEDS
3
BATHS
2.5
STORIES
2
CARS
0
HOUSE PLANS SALE 
START AT  $973.25
For questions and help, live chat, email or call us at 877-895-5299
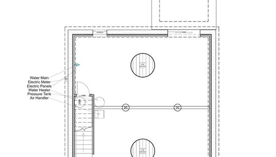
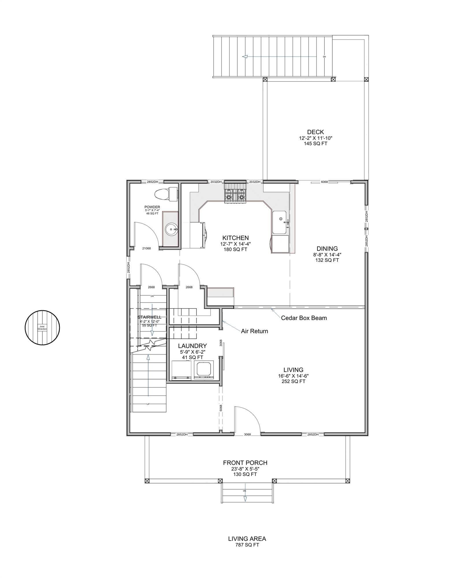
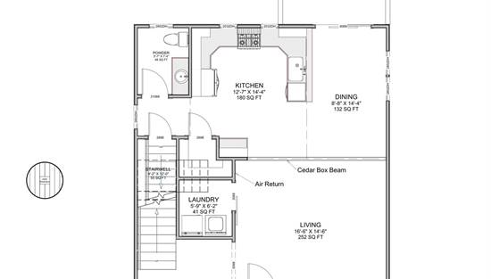
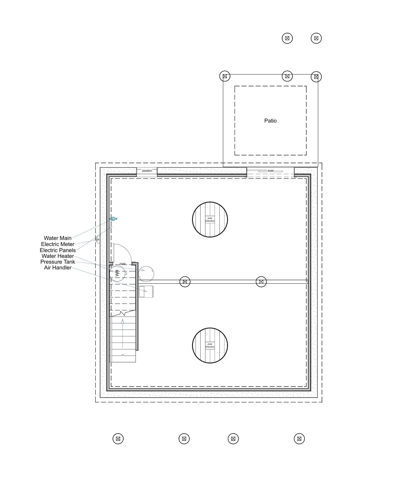
Floor Plans
Click to Zoom In on Floor Plan
 
About House Plan 11776:
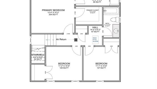
A welcoming front porch sets the tone for a home that is compact yet thoughtfully arranged. The main floor features a smooth flow from the kitchen to the dining area, with the U-shaped layout providing plenty of workspace for cooking or gatherings. The walk-in pantry helps keep the kitchen streamlined and functional. Laundry on the first floor keeps chores easy to manage. Upstairs, the primary suite is set apart for privacy, offering a generous walk-in closet and a bright bath with dual sinks. Two secondary bedrooms complete the upper floor, creating a balanced and comfortable layout. The rear deck offers an outdoor escape, perfect for quiet mornings or relaxed evenings.
House Plan Pricing
STEP 1 Select Your Package

PDF Single Build


Digital plans emailed to you in PDF format that allows for printing copies and sharing electronically with contractors, subs, decorators, and more. This package includes a license to build the home one time.

PDF Single Build $1,145
Most recommended package

PDF Unlimited Build


Digital plans with an unlimited build license emailed in PDF format, that allows for printing copies on a home printer or local print shop and sharing with contractors, subs, decorators and more 

PDF Unlimited Build $1,645
Digital plans including unlimited build license

CAD + PDF Unlimited Build


This plan package is created in AutoCAD and delivered in .DWG format. CAD files are intended for use by design professionals, structural engineers, and builders to update plans for local building codes or to make revisions based on specific needs, lot requirements, and budget considerations. A complimentary PDF copy is included with this package for reference. CAD packages are delivered within 1 to 2 business days.
 
This package also comes with a multi-use building license, granting permission to construct the home an unlimited number of times, along with a copyright release for making revisions and printing unlimited copies.
 
For details on the specific CAD program used, please refer to the PLAN DETAILS section located above the floor plan on each plan page.

CAD + PDF Unlimited Build $2,145
2D electronic editable computer files
STEP 2 Need To Reverse This Plan?
STEP 3 CHOOSE YOUR FOUNDATION
STEP 4 OPTIONAL ADD-ONS
Subtotal:
$1145
FREE SHIPPING
 
Plan Details
See All Details
Finished Square Footage
787 Sq. Ft.
Main Level:
768 Sq. Ft.
Upper Level:
787 Sq. Ft.
Lower Level:
1,555 Sq. Ft.
Total:
Room Details
3
Bedrooms:
2
Full Baths:
1
Half Baths:
General House Information
2
Number of Stories:
27' 10"
Width:
29' 6"
Depth:
Single
Dwelling Number:
Unfinished Square Footage
130 Sq. Ft.
Porch:
145 Sq. Ft.
Deck:
GARAGE
0
Garage Size:
Exterior Style
Country
Craftsman
Farmhouse
Modern Farmhouse
Collections
Affordable
First Home
Outdoor Living
Foundation
Basement
Crawl Space
Daylight Basement
Monolithic Slab
Slab
Stem Wall Slab
Walkout Basement
Framing Information
Stick
Roof Framing:
2x4
Exterior Wall Framing:
Roof Pitch
9/12
Primary:
4/12
Secondary:
Insulation (R)
House And Ceiling Heights
8
First Floor Ceiling:
8
Second Floor Ceiling:
29' 2"
Maximum House Height:
Key Features
Deck
Dining Room
Double Vanity Sink
Family Style
Front Porch
Laundry 1st Fl
Primary Bdrm Upstairs
None
Outdoor Living Space
Suited for corner lot
U-Shaped
Walk-in Closet
Walk-in Pantry

Our Guarantees

  • Only the highest quality plans
  • Int’l Residential Code Compliant
  • Full structural details on all plans
  • Best plan price guarantee
  • Free modification Estimates
  • Builder-ready construction drawings
  • Expert advice from leading designers
  •  PDFs NOW!™ plans in minutes
  • 100% satisfaction guarantee
  • Free Home Building Organizer