20% off ALL House Plans Sitewide
20% off ALL House Plans Sitewide

House Plan: DFD-11805

See All 12 Photos > (photographs may reflect modified homes)
© copyright by designer
SQ FT
4,032
BEDS
4
BATHS
3.5
STORIES
2
CARS
3
HOUSE PLANS SALE 
START AT  $1,236.00
For questions and help, live chat, email or call us at 877-895-5299
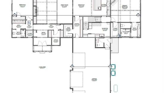
Floor Plans
Click to Zoom In on Floor Plan
 
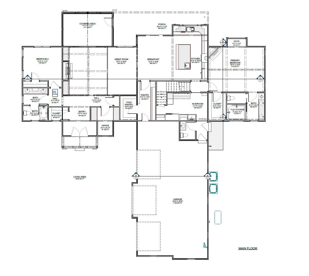
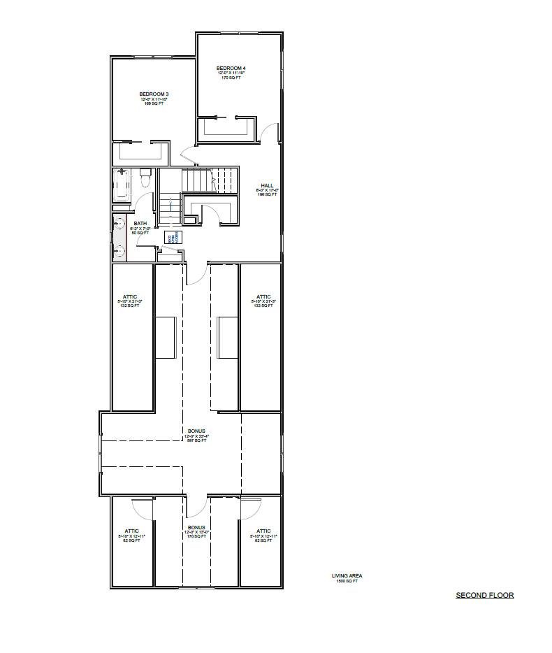
About House Plan 11805:
Offering 4,032 square feet of well-planned living space, this two-story layout creates a welcoming environment suited for everyday life and special gatherings. The kitchen features an island, a peninsula eating bar, and a breakfast nook, combining casual dining and workspace with plenty of storage thanks to the walk-in pantry and butler’s pantry. The great room anchors the main floor, opening to the rear porch for fresh-air living. The primary suite is set on the main level and includes a spacious bath with a double vanity and a walk-in closet. Split bedrooms provide separation and privacy, while the first-floor mud room, laundry, and home office streamline routine tasks. The second floor adds valuable flexibility with a well-sized bonus room accessed directly from the landing. Wide porches at the front and rear extend the living space outdoors, creating a home that feels open, inviting, and ready for comfortable living in every season.
House Plan Pricing
STEP 1 Select Your Package

PDF Single Build


Digital plans emailed to you in PDF format that allows for printing copies and sharing electronically with contractors, subs, decorators, and more. This package includes a license to build the home one time.

PDF Single Build $1,545
Most recommended package

PDF Unlimited Build


Digital plans with an unlimited build license emailed in PDF format, that allows for printing copies on a home printer or local print shop and sharing with contractors, subs, decorators and more 

PDF Unlimited Build $2,045
Digital plans including unlimited build license

CAD + PDF Unlimited Build


CAD files are a complete set of construction drawings delivered electronically. They can be used for any type of modification—including major design changes and engineering—and include a release granting permission to modify the plan. Most CAD plan orders are emailed the same or next business day.
 
This package also comes with a PDF set of plans and a multi-use building license, granting permission to construct the home an unlimited number of times, along with a copyright release for making modifications and printing unlimited copies.
 
CAD files are provided in .dwg format. For details on the specific CAD program used, please refer to the PLAN DETAILS section located above the floor plan on each plan’s page.

CAD + PDF Unlimited Build $2,545
2D electronic editable computer files
STEP 2 Need To Reverse This Plan?
STEP 3 CHOOSE YOUR FOUNDATION
STEP 4 OPTIONAL ADD-ONS
Subtotal:
$1545
FREE SHIPPING
 
Plan Details
See All Details
Finished Square Footage
2,532 Sq. Ft.
Main Level:
1,500 Sq. Ft.
Upper Level:
4,032 Sq. Ft.
Total:
Room Details
4
Bedrooms:
3
Full Baths:
1
Half Baths:
General House Information
2
Number of Stories:
84' 8"
Width:
86' 0"
Depth:
Single
Dwelling Number:
2nd Floor
Bonus Access:
Unfinished Square Footage
1138 Sq. Ft.
Garage:
506 Sq. Ft.
Porch:
50 Sq. Ft.
Front Porch:
295 Sq. Ft.
Rear Porch:
50 Sq. Ft.
Deck:
763 Sq. Ft.
Bonus Room:
GARAGE
Front
Garage Location:
3
Garage Size:
Exterior Style
Country
Farmhouse
Modern Farmhouse
Collections
First Home
Split Bedroom
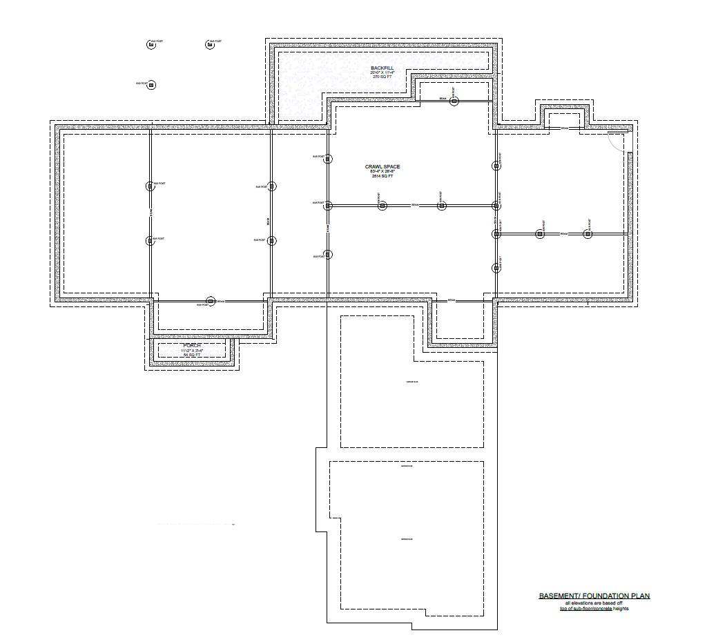
Foundation
Basement
Crawl Space
Monolithic Slab
Framing Information
Stick
Roof Framing:
2x4
Exterior Wall Framing:
Roof Pitch
12/12
Primary:
8/12
Secondary:
Insulation (R)
House And Ceiling Heights
9
First Floor Ceiling:
9
Second Floor Ceiling:
32' 7"
Maximum House Height:
Key Features
Attached
Bonus Room
Butler's Pantry
Double Vanity Sink
Fireplace
Front Porch
Great Room
Home Office
Kitchen Island
Laundry 1st Fl
L-Shaped
Primary Bdrm Main Floor
Mud Room
Nook / Breakfast Area
Peninsula / Eating Bar
Rear Porch
Side-entry
Split Bedrooms
Suited for corner lot
Walk-in Closet

Our Guarantees

  • Only the highest quality plans
  • Int’l Residential Code Compliant
  • Full structural details on all plans
  • Best plan price guarantee
  • Free modification Estimates
  • Builder-ready construction drawings
  • Expert advice from leading designers
  •  PDFs NOW!™ plans in minutes
  • 100% satisfaction guarantee
  • Free Home Building Organizer