15% off ALL House Plans Sitewide
15% off ALL House Plans Sitewide

House Plan: DFD-11844

See All 2 Photos > (photographs may reflect modified homes)
© copyright by designer
SQ FT
2,410
BEDS
4
BATHS
2.5
STORIES
1.5
CARS
2
HOUSE PLANS SALE 
START AT  $1,190.00
For questions and help, live chat, email or call us at 877-895-5299
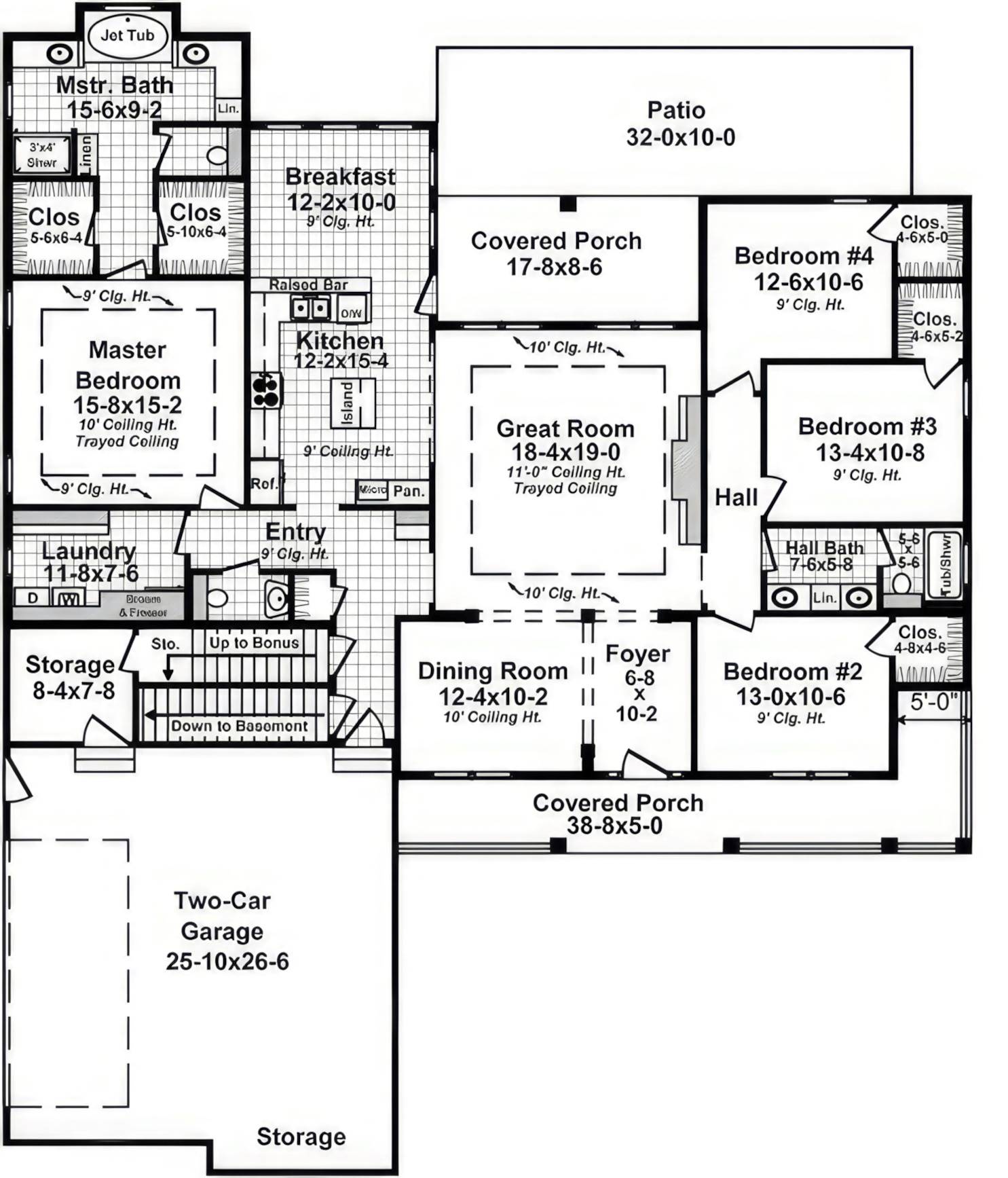
Floor Plans
Click to Zoom In on Floor Plan
 
About House Plan 11844:
With 2,410 heated square feet, this home is designed around easy movement, warm gathering spaces, and thoughtful bedroom separation. The L-shaped kitchen brings together an island, peninsula, and pantry, flowing into the bright breakfast nook and spacious great room for effortless entertaining. A dedicated family room offers an additional option for relaxing, while the formal dining room sits near the foyer for a welcoming front-of-home experience. The primary suite on the main floor includes dual closets and a well-appointed bathroom with a separate tub and shower. Three additional bedrooms are positioned across the layout to support privacy within the split-bedroom design. A home office, media or library space, and a large bonus room offer flexible options for future growth. With covered porches, front-entry garage access, and a footprint suited for a corner lot, this plan brings comfort and charm together in a warm, inviting way.
House Plan Pricing
STEP 1 Select Your Package

Study Set - Printed


One printed set of house plans stamped NOT FOR CONSTRUCTION". This set is intended for review purposes and are mailed to you. To build from the plans, you need to upgrade to a licensed set.
Study Set - Printed $1,250
One Printed Set - Not for Construction

5 Printed Sets


Includes 5 physical printed blueprint sets, shipped free via UPS within the Continental U.S. Printed sets ship within 1 business day and are delivered within 3 – 5 business days. These plans may be used to construct one home.

5 Printed Sets $1,500
Five printed sets of house plans

5 Printed Sets + PDF


Includes 5 physical printed blueprint sets, shipped free via UPS within the Continental U.S. Printed sets ship within 1 business day and are delivered within 3 – 5 business days. A complimentary PDF plan set is also emailed within 1 business day for easy sharing and local printing. These plans may be used to construct one home.

5 Printed Sets + PDF $1,700
5 Printed Sets + PDF

PDF Single Build


Digital plans emailed to you in PDF format that allows for printing copies and sharing electronically with contractors, subs, decorators, and more. This package includes a license to build the home one time.

PDF Single Build $1,400
Most recommended package

CAD + PDF Single Build


This plan package is created in AutoCAD and delivered in .DWG format. CAD files are intended for use by design professionals, structural engineers, and builders to update plans for local building codes or to make revisions based on specific needs, lot requirements, and budget considerations. A complimentary PDF copy is included with this package for reference. CAD packages are delivered within 1 to 2 business days.
 
This package also comes with a copyright release for making revisions and printing unlimited copies.

For details on the specific CAD program used, please refer to the PLAN DETAILS section located above the floor plan on each plan page.

CAD + PDF Single Build $2,100
2D electronic editable computer files
STEP 2 Need To Reverse This Plan?
STEP 3 CHOOSE YOUR FOUNDATION
STEP 4 OPTIONAL ADD-ONS
Subtotal:
$1500
FREE SHIPPING
 
Plan Details
See All Details
Finished Square Footage
2,410 Sq. Ft.
Main Level:
2,410 Sq. Ft.
Total:
Room Details
4
Bedrooms:
2
Full Baths:
1
Half Baths:
General House Information
1.5
Number of Stories:
65' 2"
Width:
79' 0"
Depth:
Single
Dwelling Number:
2nd Floor
Bonus Access:
Unfinished Square Footage
912 Sq. Ft.
Garage:
223 Sq. Ft.
Front Porch:
150 Sq. Ft.
Rear Porch:
442 Sq. Ft.
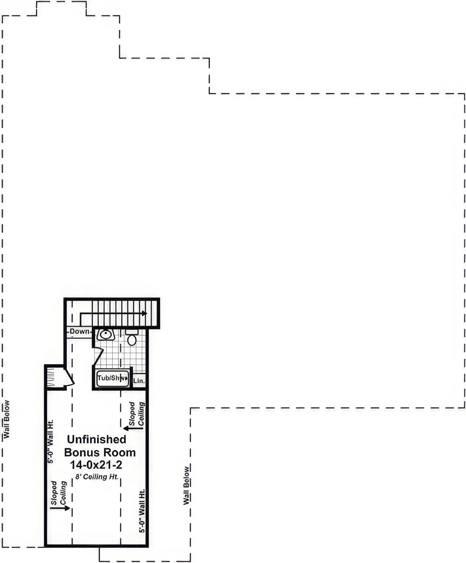
Bonus Room:
GARAGE
Front
Garage Location:
2
Garage Size:
Exterior Style
Country
Farmhouse
Traditional
Collections
Builders
Outdoor Living
Split Bedroom
Foundation
Basement
Crawl Space
Slab
Framing Information
Stick
Roof Framing:
2x6
Exterior Wall Framing:
Roof Pitch
10/12
Primary:
3/12
Secondary:
Roof Load
30
Live:
10
Dead:
40
Wind:
Insulation (R)
15
Exterior Wall:
19
Interior Wall:
38
Ceiling:
19
Floor:
House And Ceiling Heights
9
First Floor Ceiling:
28' 4"
Maximum House Height:
Key Features
Attached
Bonus Room
Covered Front Porch
Covered Rear Porch
Dining Room
Double Vanity Sink
Family Room
Fireplace
Foyer
Great Room
His and Hers Primary Closets
Home Office
Kitchen Island
Laundry 1st Fl
Library/Media Rm
L-Shaped
Primary Bdrm Main Floor
Nook / Breakfast Area
Pantry
Peninsula / Eating Bar
Rec Room
Separate Tub and Shower
Side-entry
Split Bedrooms
Storage Space
Suited for corner lot
Unfinished Space
Walk-in Closet

Our Guarantees

  • Only the highest quality plans
  • Int’l Residential Code Compliant
  • Full structural details on all plans
  • Best plan price guarantee
  • Free modification Estimates
  • Builder-ready construction drawings
  • Expert advice from leading designers
  •  PDFs NOW!™ plans in minutes
  • 100% satisfaction guarantee
  • Free Home Building Organizer