15% off ALL House Plans Sitewide
15% off ALL House Plans Sitewide

House Plan: DFD-12009

See All 8 Photos > (photographs may reflect modified homes)
© copyright by designer
SQ FT
4,770
BEDS
4
BATHS
3.5
STORIES
2
CARS
3
HOUSE PLANS SALE 
START AT  $1,440.75
For questions and help, live chat, email or call us at 877-895-5299
Floor Plans
Click to Zoom In on Floor Plan
 
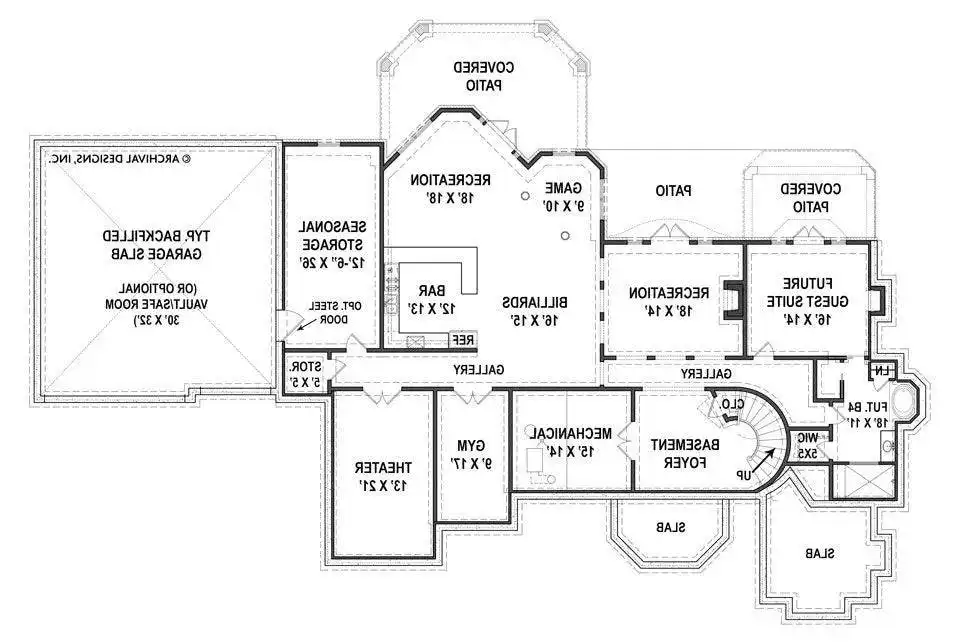
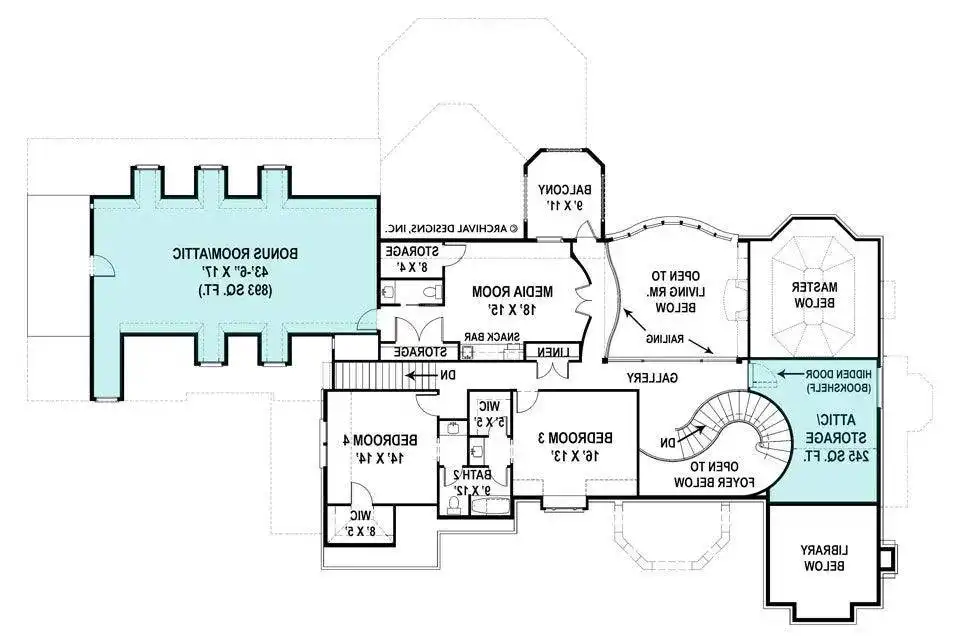
About House Plan 12009:
This 4,770 square foot layout with 4 bedrooms is designed to support active families who love roomy gathering spaces and practical organization. The main-level primary suite sits just steps from the living areas, while a well-arranged split-bedroom layout enhances quiet and relaxation. A two-story volume great room and nearby family room add openness that feels bright and welcoming. The kitchen includes a walk-in pantry, butler’s pantry, island, and peninsula, making meal prep effortless and social. A dedicated in-law suite, mud room, and first-floor laundry add convenience, and the second floor’s bonus room and exercise space provide extra flexibility. Outdoor living areas stretch the home’s functionality beyond its walls. With generous room and inviting details, this plan offers a warm, comfortable setting for everyday living and memorable gatherings.
House Plan Pricing
STEP 1 Select Your Package

PDF Single Build


Digital plans emailed to you in PDF format that allows for printing copies and sharing electronically with contractors, subs, decorators, and more. This package includes a license to build the home one time.

PDF Single Build $1,695
Most recommended package

5 Printed Sets


Five Printed Sets of Residential Construction Drawings are typically 24” x 36” documents and come with a license to construct a single residence shipped to a physical address. Keep in mind PDF Plan Packages are our most popular choice which allows you to print as many copies as you need and to electronically send files to your builder, subcontractors, etc.

5 Printed Sets $2,125
Five printed sets of house plans

5 Printed Sets + PDF


Includes 5 physical printed blueprints shipped and delivered within 3-5 business days and a copyright release license to construct one home and to make copies. A complimentary PDF plan set is also emailed within 1 business day for easy sharing and local printing. 

5 Printed Sets + PDF $2,225
5 Printed Sets + PDF

CAD + PDF Single Build


This plan package is created in AutoCAD and delivered in .DWG format. CAD files are intended for use by design professionals, structural engineers, and builders to update plans for local building codes or to make revisions based on specific needs, lot requirements, and budget considerations. A complimentary PDF copy is included with this package for reference. CAD packages are delivered within 1 to 2 business days.
 
This package also comes with a copyright release for making revisions and printing unlimited copies.

For details on the specific CAD program used, please refer to the PLAN DETAILS section located above the floor plan on each plan page.

CAD + PDF Single Build $2,495
2D electronic editable computer files

CAD + PDF Unlimited Build


This plan package is created in AutoCAD and delivered in .DWG format. CAD files are intended for use by design professionals, structural engineers, and builders to update plans for local building codes or to make revisions based on specific needs, lot requirements, and budget considerations. A complimentary PDF copy is included with this package for reference. CAD packages are delivered within 1 to 2 business days.
 
This package also comes with a multi-use building license, granting permission to construct the home an unlimited number of times, along with a copyright release for making revisions and printing unlimited copies.
 
For details on the specific CAD program used, please refer to the PLAN DETAILS section located above the floor plan on each plan page.

CAD + PDF Unlimited Build $3,290
2D electronic editable computer files
STEP 2 Need To Reverse This Plan?
STEP 3 CHOOSE YOUR FOUNDATION
STEP 4 OPTIONAL ADD-ONS
Subtotal:
$1695
FREE SHIPPING
 
Plan Details
See All Details
Finished Square Footage
3,464 Sq. Ft.
Main Level:
1,306 Sq. Ft.
Upper Level:
4,770 Sq. Ft.
Total:
Room Details
4
Bedrooms:
3
Full Baths:
2
Half Baths:
General House Information
2
Number of Stories:
114' 0"
Width:
76' 0"
Depth:
Single
Dwelling Number:
Unfinished Square Footage
1012 Sq. Ft.
Garage:
893 Sq. Ft.
Bonus Room:
GARAGE
Side
Garage Location:
3
Garage Size:
Exterior Style
European
French Country
Collections
Kitchens
Luxury
Primary Suites
Open Floor Plan
Outdoor Living
Split Bedroom
Foundation
Walk-out Basement
Framing Information
2x4
Exterior Wall Framing:
Insulation (R)
House And Ceiling Heights
10
First Floor Ceiling:
9
Second Floor Ceiling:
32' 0"
Maximum House Height:
Key Features
2 Story Volume
Attached
Bonus Room
Butler's Pantry
Covered Rear Porch
Deck
Dining Room
Double Vanity Sink
Exercise Room
Family Room
Fireplace
Foyer
Front-entry
Great Room
In-law Suite
Kitchen Island
Laundry 1st Fl
Library/Media Rm
L-Shaped
Primary Bdrm Main Floor
Mud Room
Nook / Breakfast Area
Outdoor Living Space
Peninsula / Eating Bar
Rec Room
Separate Tub and Shower
Split Bedrooms
Storage Space
Suited for corner lot
Vaulted Ceilings
Walk-in Closet
Walk-in Pantry

Our Guarantees

  • Only the highest quality plans
  • Int’l Residential Code Compliant
  • Full structural details on all plans
  • Best plan price guarantee
  • Free modification Estimates
  • Builder-ready construction drawings
  • Expert advice from leading designers
  •  PDFs NOW!™ plans in minutes
  • 100% satisfaction guarantee
  • Free Home Building Organizer