20% Off House Plans Sitewide Ends Sunday
20% Off House Plans Sitewide Ends Sunday

House Plan: DFD-1203

See All 4 Photos > (photographs may reflect modified homes)
© copyright by designer
SQ FT
3,203
BEDS
4
BATHS
3
STORIES
2
CARS
2
HOUSE PLANS SALE 
START AT  $1,060.00
For questions and help, live chat, email or call us at 877-895-5299
Floor Plans
Click to Zoom In on Floor Plan
 
About House Plan 1203:
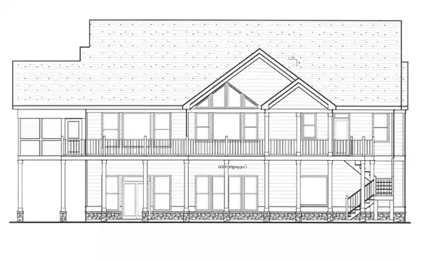
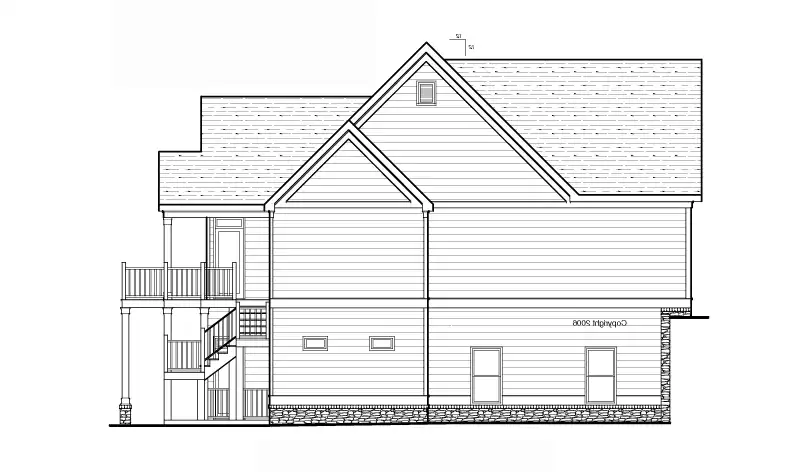
Ideal for a mountain community, the Avery II provides indoor/outdoor living. Porches and decks are everywhere. A side screen porch connects the front porch to the rear deck and is accessible from the spectacular truss-ceiling living area. A main floor bedroom and the breakfast nook share access to a covered porch on the rear of the house, making every room accessible to the outdoors.

The bedroom level is located below the main floor, taking advantage of a steep lot, making full use of the grade. The master bedroom enjoys the full rear view and access to its own private patio or deck. A family room at this level gives the children their own space with outdoor access as the terrain allows.

A suspended garage slab helps economize building on severely sloped lots and provides usable finished space to the lower level. The secondary bedrooms share a split bath.
House Plan Pricing
STEP 1 Select Your Package

PDF Bid Set


Home plans stamped "NOT FOR CONSTRUCTION" for cost estimating and bidding purposes only; a minimum 5 set plan package must be purchased within 90 days for a license to build plan set; a credit will be applied towards your house plan upgrade

PDF Bid Set $850
Digital set of plans for bidding purposes only

PDF Single Build


Digital plans emailed to you in PDF format that allows for printing copies and sharing electronically with contractors, subs, decorators, and more. This package includes a license to build the home one time.

PDF Single Build $1,325
Most recommended package

5 Printed Sets


Five Printed Sets of Residential Construction Drawings are typically 24” x 36” documents and come with a license to construct a single residence shipped to a physical address. Keep in mind PDF Plan Packages are our most popular choice which allows you to print as many copies as you need and to electronically send files to your builder, subcontractors, etc.

5 Printed Sets $1,450
Five printed sets of house plans

CAD + PDF Single Build


CAD files are a complete set of construction drawings delivered electronically. They can be used for any type of modification—including major design changes and engineering—and include a release granting permission to modify the plan. Most CAD plan orders are emailed the same or next business day.
 
This package also comes with a PDF set of plans and a copyright release for making modifications and printing unlimited copies.
 
CAD files are provided in .dwg format. For details on the specific CAD program used, please refer to the PLAN DETAILS section located above the floor plan on each plan’s page.

CAD + PDF Single Build $1,988
2D electronic editable computer files
STEP 2 CHOOSE YOUR FOUNDATION
STEP 3 OPTIONAL ADD-ONS
Subtotal:
$1325
FREE SHIPPING

Note: Please contact designer for update on available PDF.
 
Plan Details
See All Details
Finished Square Footage
1,356 Sq. Ft.
Main Level:
1,847 Sq. Ft.
Lower Level:
3,203 Sq. Ft.
Total:
Room Details
4
Bedrooms:
3
Full Baths:
General House Information
2
Number of Stories:
69' 0"
Width:
54' 0"
Depth:
Single
Dwelling Number:
Unfinished Square Footage
579 Sq. Ft.
Garage:
145 Sq. Ft.
Porch:
56 Sq. Ft.
Deck:
GARAGE
Side
Garage Location:
2
Garage Size:
Exterior Style
Country
Craftsman
Lake
Collections
Architects Choice
Bi-Level
Luxury
Mountain
Vacation
Foundation
WALK OUT BASEMENT
Framing Information
Stick
Roof Framing:
2x4
Exterior Wall Framing:
Roof Pitch
12/12
Primary:
9/12
Secondary:
5/12
Dormer:
3/12
Porch:
Roof Load
20
Live:
10
Dead:
Insulation (R)
Per IRC Climate Zones
House And Ceiling Heights
9
First Floor Ceiling:
10
Second Floor Ceiling:
23' 11"
Maximum House Height:
Key Features
Attached
Basement
Covered Front Porch
Deck
Dining Room
Double Vanity Sink
Family Room
Fireplace
Foyer
Great Room
Guest Suite
Inverted Living
Kitchen Island
Loft / Balcony
Mud Room
Nook / Breakfast Area
Open Floor Plan
Rear Porch
Screened Porch/Sunroom
Separate Tub and Shower
Sitting Area
Suited for sloping lot
Suited for view lot
Vaulted Ceilings
Walk-in Closet
Walk-in Pantry
Walkout Basement
With Living Space
Wraparound Porch

Our Guarantees

  • Only the highest quality plans
  • Int’l Residential Code Compliant
  • Full structural details on all plans
  • Best plan price guarantee
  • Free modification Estimates
  • Builder-ready construction drawings
  • Expert advice from leading designers
  •  PDFs NOW!™ plans in minutes
  • 100% satisfaction guarantee
  • Free Home Building Organizer