15% off ALL House Plans Sitewide
15% off ALL House Plans Sitewide

House Plan: DFD-12092

See All 10 Photos > (photographs may reflect modified homes)
© copyright by designer
SQ FT
2,475
BEDS
4
BATHS
3.5
STORIES
1
CARS
2
HOUSE PLANS SALE 
START AT  $1,228.25
For questions and help, live chat, email or call us at 877-895-5299
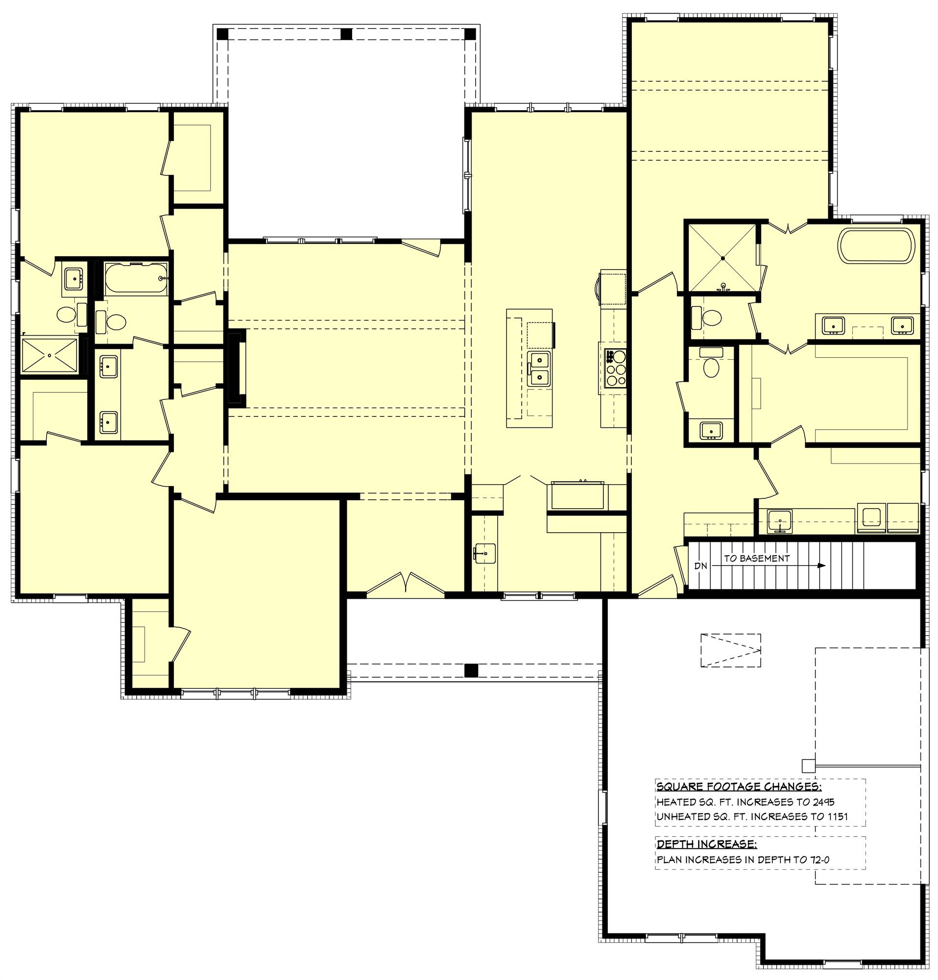
Floor Plans
Click to Zoom In on Floor Plan
 
About House Plan 12092:
This 2475 square foot home delivers a balanced mix of comfort and spaciousness across its 4-bedroom layout. The great room’s tall ceiling adds an open, inviting feel that flows naturally into the dining room and country kitchen. The kitchen features an island, peninsula, butler’s pantry, and an L-shaped workspace that supports both everyday meals and larger gatherings. The primary bedroom sits on the main floor with a walk-in closet and a double vanity bath designed for comfort and privacy. The remaining bedrooms follow a split layout, creating quiet separation for family members or guests. A home office, mud room, and first-floor laundry add valuable convenience to busy days. Covered porches at the front and rear expand the living space outdoors and offer calming places to relax. This home brings warmth and practicality together in a way that feels instantly welcoming.
House Plan Pricing
STEP 1 Select Your Package

PDF Single Build


Digital plans emailed to you in PDF format that allows for printing copies and sharing electronically with contractors, subs, decorators, and more. This package includes a license to build the home one time.

PDF Single Build $1,445
Most recommended package

5 Printed Sets + PDF


Includes 5 physical printed blueprint sets, shipped free via UPS within the U.S. Printed sets ship within 1 business day and are delivered within 3 – 5 business days. A complimentary PDF plan set is also emailed within 1 business day for easy sharing and local printing. These plans may be used to construct one home.

5 Printed Sets + PDF $1,695
5 Printed Sets + PDF

PDF Unlimited Build


Digital plans with an unlimited build license emailed in PDF format, that allows for printing copies on a home printer or local print shop and sharing with contractors, subs, decorators and more 

PDF Unlimited Build $2,145
Digital plans including unlimited build license

CAD + PDF Unlimited Build


This plan package is created in AutoCAD and delivered in .DWG format. CAD files are intended for use by design professionals, structural engineers, and builders to update plans for local building codes or to make revisions based on specific needs, lot requirements, and budget considerations. A complimentary PDF copy is included with this package for reference. CAD packages are delivered within 1 to 2 business days.
 
This package also comes with a multi-use building license, granting permission to construct the home an unlimited number of times, along with a copyright release for making revisions and printing unlimited copies.
 
For details on the specific CAD program used, please refer to the PLAN DETAILS section located above the floor plan on each plan page.

CAD + PDF Unlimited Build $2,545
2D electronic editable computer files
STEP 2 Need To Reverse This Plan?
STEP 3 CHOOSE YOUR FOUNDATION
STEP 4 OPTIONAL ADD-ONS
Subtotal:
$1445
FREE SHIPPING
 
Plan Details
See All Details
Finished Square Footage
2,475 Sq. Ft.
Main Level:
2,475 Sq. Ft.
Total:
Room Details
4
Bedrooms:
3
Full Baths:
1
Half Baths:
General House Information
1
Number of Stories:
69' 2"
Width:
71' 2"
Depth:
Single
Dwelling Number:
Unfinished Square Footage
658 Sq. Ft.
Garage:
415 Sq. Ft.
Porch:
117 Sq. Ft.
Front Porch:
298 Sq. Ft.
Rear Porch:
GARAGE
Front
Garage Location:
2
Garage Size:
Exterior Style
Country
Farmhouse
Modern Farmhouse
Ranch
Southern
Collections
Open Floor Plan
Outdoor Living
Split Bedroom
Foundation
Basement
Crawl Space
Slab
Walkout Basement
Framing Information
Stick
Roof Framing:
2x4
Exterior Wall Framing:
Roof Pitch
10/12
Primary:
5/12
Secondary:
12/12
Teritary:
Insulation (R)
House And Ceiling Heights
10
First Floor Ceiling:
29' 0"
Maximum House Height:
Key Features
Attached
Butler's Pantry
Country Kitchen
Covered Front Porch
Covered Rear Porch
Dining Room
Double Vanity Sink
Fireplace
Foyer
Great Room
Home Office
Kitchen Island
Laundry 1st Fl
L-Shaped
Primary Bdrm Main Floor
Mud Room
Open Floor Plan
Outdoor Living Space
Peninsula / Eating Bar
Separate Tub and Shower
Side-entry
Split Bedrooms
Suited for corner lot
Walk-in Closet

Our Guarantees

  • Only the highest quality plans
  • Int’l Residential Code Compliant
  • Full structural details on all plans
  • Best plan price guarantee
  • Free modification Estimates
  • Builder-ready construction drawings
  • Expert advice from leading designers
  •  PDFs NOW!™ plans in minutes
  • 100% satisfaction guarantee
  • Free Home Building Organizer

See terms opt out anytime