20% off ALL House Plans Sitewide
20% off ALL House Plans Sitewide

House Plan: DFD-12114

See All 11 Photos > (photographs may reflect modified homes)
© copyright by designer
SQ FT
1,961
BEDS
3
BATHS
2.5
STORIES
2
CARS
2
HOUSE PLANS SALE 
START AT  $1,116.00
For questions and help, live chat, email or call us at 877-895-5299
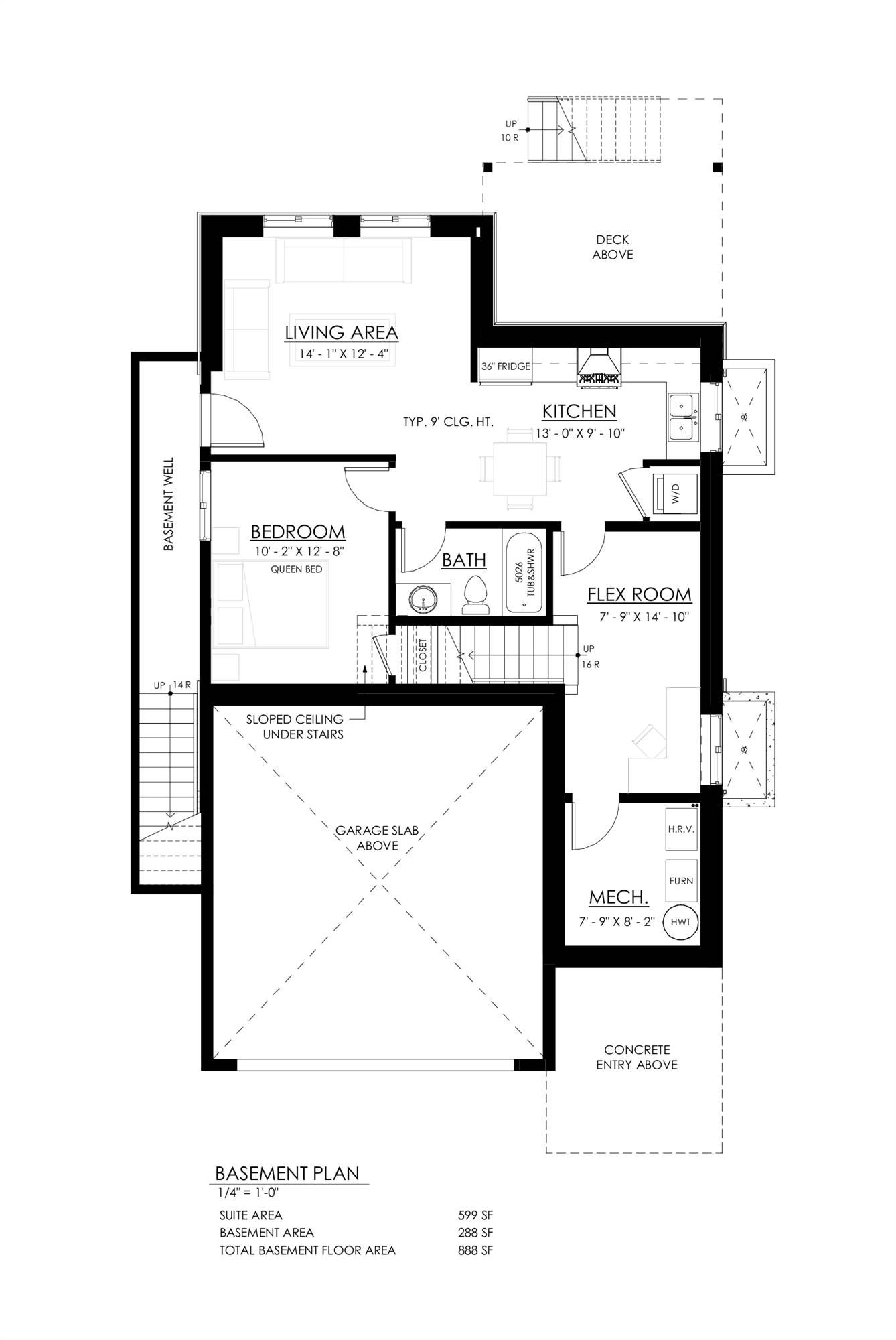
Floor Plans
Click to Zoom In on Floor Plan
 
About House Plan 12114:
With 1,961 square feet of heated living space, this home delivers a smart and comfortable layout designed for modern family living. The main level features an open kitchen with island seating, pantry storage, and easy flow into the dining area and great room with a cozy fireplace. The primary bedroom is located upstairs and includes a sitting area, vaulted ceiling, walk-in closet, and a well-appointed bath with double vanities. Secondary bedrooms are thoughtfully arranged for privacy while remaining close to the second-floor laundry. Outdoor spaces include a covered front porch and a rear deck that extend everyday living beyond the interior. A rec room and unfinished lower level provide room to grow and personalize over time. This home offers a warm, adaptable layout ideal for both relaxation and entertaining.
House Plan Pricing
STEP 1 Select Your Package

PDF Single Build


Digital plans emailed to you in PDF format that allows for printing copies and sharing electronically with contractors, subs, decorators, and more. This package includes a license to build the home one time.

PDF Single Build $1,395
Most recommended package

CAD + PDF Unlimited Build


CAD files are a complete set of construction drawings delivered electronically. They can be used for any type of modification—including major design changes and engineering—and include a release granting permission to modify the plan. Most CAD plan orders are emailed the same or next business day.
 
This package also comes with a PDF set of plans and a multi-use building license, granting permission to construct the home an unlimited number of times, along with a copyright release for making modifications and printing unlimited copies.
 
CAD files are provided in .dwg format. For details on the specific CAD program used, please refer to the PLAN DETAILS section located above the floor plan on each plan’s page.

CAD + PDF Unlimited Build $2,395
2D electronic editable computer files
STEP 2 Need To Reverse This Plan?
STEP 3 CHOOSE YOUR FOUNDATION
STEP 4 OPTIONAL ADD-ONS
Subtotal:
$1395
FREE SHIPPING
 
Plan Details
See All Details
Finished Square Footage
886 Sq. Ft.
Main Level:
1,075 Sq. Ft.
Upper Level:
1,961 Sq. Ft.
Total:
Room Details
3
Bedrooms:
2
Full Baths:
1
Half Baths:
General House Information
2
Number of Stories:
29' 6"
Width:
54' 11"
Depth:
Single
Dwelling Number:
Unfinished Square Footage
406 Sq. Ft.
Garage:
90 Sq. Ft.
Front Porch:
135 Sq. Ft.
Deck:
GARAGE
Front
Garage Location:
2
Garage Size:
Exterior Style
Country
Farmhouse
Modern Farmhouse
Collections
Canada
Open Floor Plan
Outdoor Living
Foundation
Basement
Crawl Space
Slab
Walkout Basement
Framing Information
Truss
Roof Framing:
2x6
Exterior Wall Framing:
Roof Pitch
5/12
Primary:
12/12
Secondary:
Insulation (R)
House And Ceiling Heights
10
First Floor Ceiling:
8
Second Floor Ceiling:
28' 5"
Maximum House Height:
Key Features
Attached
Covered Front Porch
Deck
Dining Room
Double Vanity Sink
Family Style
Fireplace
Foyer
Front-entry
Great Room
Kitchen Island
Laundry 2nd Fl
L-Shaped
Primary Bdrm Upstairs
Mud Room
Open Floor Plan
Outdoor Living Space
Pantry
Peninsula / Eating Bar
Rec Room
Sitting Area
Suited for corner lot
Vaulted Primary
Walk-in Closet

Our Guarantees

  • Only the highest quality plans
  • Int’l Residential Code Compliant
  • Full structural details on all plans
  • Best plan price guarantee
  • Free modification Estimates
  • Builder-ready construction drawings
  • Expert advice from leading designers
  •  PDFs NOW!™ plans in minutes
  • 100% satisfaction guarantee
  • Free Home Building Organizer