House Plan: DFD-12165

See All 11 Photos > (photographs may reflect modified homes)
© copyright by designer
SQ FT
1,512
BEDS
3
BATHS
2
STORIES
1
CARS
0
PLANS FROM $1,265
For questions and help, live chat, email or call us at 877-895-5299
Floor Plans
Click to Zoom In on Floor Plan
 
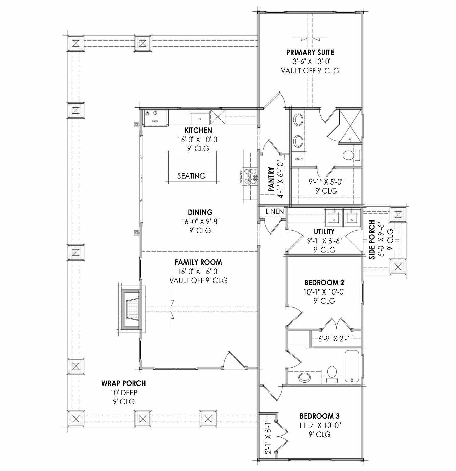
About House Plan 12165:
Designed for comfort and charm, this 1512 square feet single story home plan includes 3 bedrooms and 2 baths within a bright, open layout. The vaulted family room connects naturally to the dining area and kitchen, creating a welcoming central hub highlighted by a cozy fireplace. The kitchen’s island and walk-in pantry maximize storage while maintaining an efficient workflow. The main level primary suite offers privacy with a vaulted ceiling, walk-in closet, and dual vanities. Secondary bedrooms are thoughtfully positioned in a split configuration for added separation. A convenient first-floor laundry room enhances everyday functionality. Expansive covered porches, including a wraparound front porch, extend the home outdoors and add inviting curb appeal to this well-balanced design.
House Plan Pricing
STEP 1 Select Your Package

PDF Single Build


Digital plans emailed to you in PDF format that allows for printing copies and sharing electronically with contractors, subs, decorators, and more. This package includes a license to build the home one time.

PDF Single Build $1,265
Most recommended package

5 Printed Sets + PDF


Includes 5 physical printed blueprint sets, shipped free via UPS within the U.S. Printed sets ship within 1 business day and are delivered within 3 – 5 business days. A complimentary PDF plan set is also emailed within 1 business day for easy sharing and local printing. These plans may be used to construct one home.

5 Printed Sets + PDF $1,615
5 Printed Sets + PDF

PDF Unlimited Build


Digital plans with an unlimited build license emailed in PDF format, that allows for printing copies on a home printer or local print shop and sharing with contractors, subs, decorators and more 

PDF Unlimited Build $2,010
Digital plans including unlimited build license

CAD + PDF Unlimited Build


This plan package is created in AutoCAD and delivered in .DWG format. CAD files are intended for use by design professionals, structural engineers, and builders to update plans for local building codes or to make revisions based on specific needs, lot requirements, and budget considerations. A complimentary PDF copy is included with this package for reference. CAD packages are delivered within 1 to 2 business days.
 
This package also comes with a multi-use building license, granting permission to construct the home an unlimited number of times, along with a copyright release for making revisions and printing unlimited copies.
 
For details on the specific CAD program used, please refer to the PLAN DETAILS section located above the floor plan on each plan page.

CAD + PDF Unlimited Build $2,325
2D electronic editable computer files
STEP 2 Need To Reverse This Plan?
STEP 3 CHOOSE YOUR FOUNDATION
STEP 4 OPTIONAL ADD-ONS
Subtotal:
$1265
FREE SHIPPING
 
Plan Details
See All Details
Finished Square Footage
1,512 Sq. Ft.
Main Level:
1,512 Sq. Ft.
Total:
Room Details
3
Bedrooms:
2
Full Baths:
General House Information
1
Number of Stories:
46' 11"
Width:
62' 3"
Depth:
Single
Dwelling Number:
Unfinished Square Footage
874 Sq. Ft.
Porch:
817 Sq. Ft.
Front Porch:
57 Sq. Ft.
Rear Porch:
GARAGE
0
Garage Size:
Exterior Style
Cottage
Country
Farmhouse
Modern Farmhouse
Ranch
Collections
Builders
Empty Nester
Mountain
Open Floor Plan
Outdoor Living
Split Bedroom
Vacation
Foundation
Basement
Crawlspace
Monolithic Slab
Walkout Basement
Framing Information
2x4
Exterior Wall Framing:
Roof Pitch
8/12
Primary:
12/12
Secondary:
Insulation (R)
Per IRC Climate Zones
House And Ceiling Heights
9
First Floor Ceiling:
21' 7"
Maximum House Height:
Key Features
Covered Front Porch
Covered Rear Porch
Dining Room
Double Vanity Sink
Family Room
Fireplace
Kitchen Island
Laundry 1st Fl
L-Shaped
Primary Bdrm Main Floor
None
Open Floor Plan
Split Bedrooms
Suited for corner lot
Suited for narrow lot
Suited for sloping lot
Suited for view lot
Vaulted Ceilings
Vaulted Primary
Walk-in Closet
Walk-in Pantry
Wraparound Porch

Our Guarantees

  • Only the highest quality plans
  • Int’l Residential Code Compliant
  • Full structural details on all plans
  • Best plan price guarantee
  • Free modification Estimates
  • Builder-ready construction drawings
  • Expert advice from leading designers
  •  PDFs NOW!™ plans in minutes
  • 100% satisfaction guarantee
  • Free Home Building Organizer