15% off ALL House Plans Sitewide
15% off ALL House Plans Sitewide

House Plan: DFD-12167

See All 8 Photos > (photographs may reflect modified homes)
© copyright by designer
SQ FT
3,150
BEDS
4
BATHS
3.5
STORIES
2
CARS
2
HOUSE PLANS SALE 
START AT  $1,615.00
For questions and help, live chat, email or call us at 877-895-5299
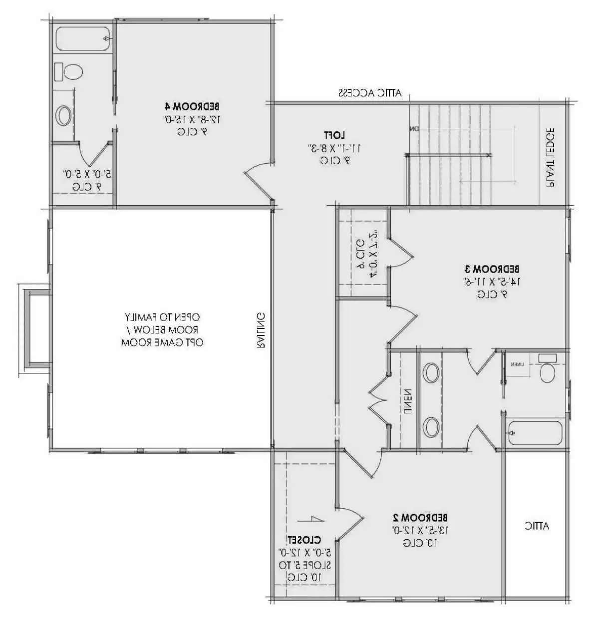
Floor Plans
Click to Zoom In on Floor Plan
 
About House Plan 12167:
With 3,150 square feet of heated living space, this thoughtfully planned home offers room to gather and space to retreat. The main level showcases an open layout centered around a comfortable family room with a fireplace and seamless flow into the kitchen and dining areas. The kitchen is well equipped with an island, eating bar, walk-in pantry, and a convenient butler’s pantry for added storage and prep space. A main-floor primary suite features vaulted ceilings and a spa-like bath designed for everyday relaxation. Upstairs, additional bedrooms and a loft-style balcony overlook the living areas below, adding visual interest and flexibility. Covered porches at both the front and rear complete the design, offering inviting outdoor living spaces that enhance the home’s overall appeal.
House Plan Pricing
STEP 1 Select Your Package

PDF Single Build


Digital plans emailed to you in PDF format that allows for printing copies and sharing electronically with contractors, subs, decorators, and more. This package includes a license to build the home one time.

PDF Single Build $1,900
Most recommended package

5 Printed Sets + PDF


Includes 5 physical printed blueprint sets, shipped free via UPS within the U.S. Printed sets ship within 1 business day and are delivered within 3 – 5 business days. A complimentary PDF plan set is also emailed within 1 business day for easy sharing and local printing. These plans may be used to construct one home.

5 Printed Sets + PDF $2,250
5 Printed Sets + PDF

PDF Unlimited Build


Digital plans with an unlimited build license emailed in PDF format, that allows for printing copies on a home printer or local print shop and sharing with contractors, subs, decorators and more 

PDF Unlimited Build $2,645
Digital plans including unlimited build license

CAD + PDF Unlimited Build


This plan package is created in AutoCAD and delivered in .DWG format. CAD files are intended for use by design professionals, structural engineers, and builders to update plans for local building codes or to make revisions based on specific needs, lot requirements, and budget considerations. A complimentary PDF copy is included with this package for reference. CAD packages are delivered within 1 to 2 business days.
 
This package also comes with a multi-use building license, granting permission to construct the home an unlimited number of times, along with a copyright release for making revisions and printing unlimited copies.
 
For details on the specific CAD program used, please refer to the PLAN DETAILS section located above the floor plan on each plan page.

CAD + PDF Unlimited Build $2,960
2D electronic editable computer files
STEP 2 Need To Reverse This Plan?
STEP 3 CHOOSE YOUR FOUNDATION
STEP 4 OPTIONAL ADD-ONS
Subtotal:
$1900
FREE SHIPPING
 
Plan Details
See All Details
Finished Square Footage
2,045 Sq. Ft.
Main Level:
1,105 Sq. Ft.
Upper Level:
3,150 Sq. Ft.
Total:
Room Details
4
Bedrooms:
3
Full Baths:
1
Half Baths:
General House Information
2
Number of Stories:
60' 0"
Width:
65' 2"
Depth:
Single
Dwelling Number:
Unfinished Square Footage
617 Sq. Ft.
Garage:
910 Sq. Ft.
Porch:
477 Sq. Ft.
Front Porch:
433 Sq. Ft.
Rear Porch:
GARAGE
Front
Garage Location:
2
Garage Size:
Exterior Style
Country
Craftsman
Farmhouse
Modern Farmhouse
Collections
Open Floor Plan
Outdoor Living
Split Bedroom
Foundation
Basement
Crawlspace
Monolithic Slab
Walkout Basement
Framing Information
Stick
Roof Framing:
2x4 or 2x6
Exterior Wall Framing:
Roof Pitch
8/12
Primary:
12/12
Secondary:
Insulation (R)
Per IRC Climate Zones
House And Ceiling Heights
10
First Floor Ceiling:
31' 3"
Maximum House Height:
Key Features
Attached
Butler's Pantry
Covered Front Porch
Covered Rear Porch
Dining Room
Double Vanity Sink
Family Room
Fireplace
Foyer
Front-entry
Kitchen Island
Laundry 1st Fl
Loft / Balcony
L-Shaped
Primary Bdrm Main Floor
Mud Room
Open Floor Plan
Outdoor Living Space
Peninsula / Eating Bar
Separate Tub and Shower
Split Bedrooms
Suited for corner lot
Suited for sloping lot
Suited for view lot
Vaulted Primary
Walk-in Closet
Walk-in Pantry

Our Guarantees

  • Only the highest quality plans
  • Int’l Residential Code Compliant
  • Full structural details on all plans
  • Best plan price guarantee
  • Free modification Estimates
  • Builder-ready construction drawings
  • Expert advice from leading designers
  •  PDFs NOW!™ plans in minutes
  • 100% satisfaction guarantee
  • Free Home Building Organizer