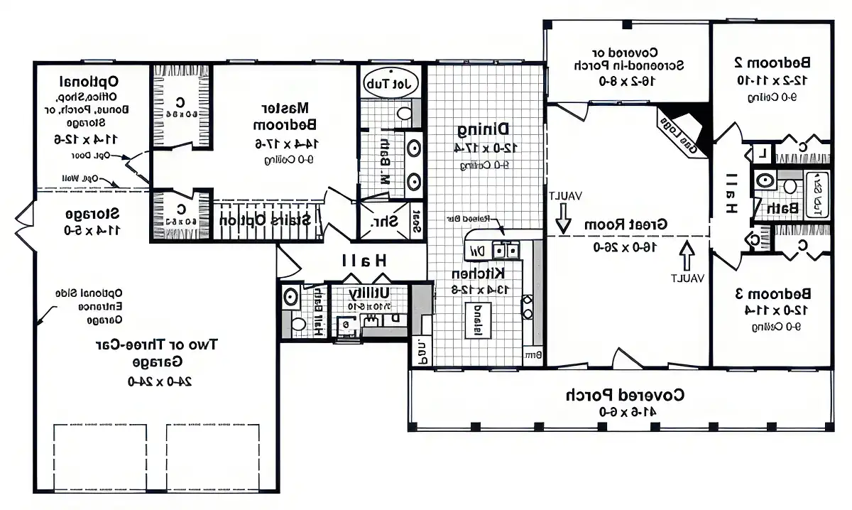
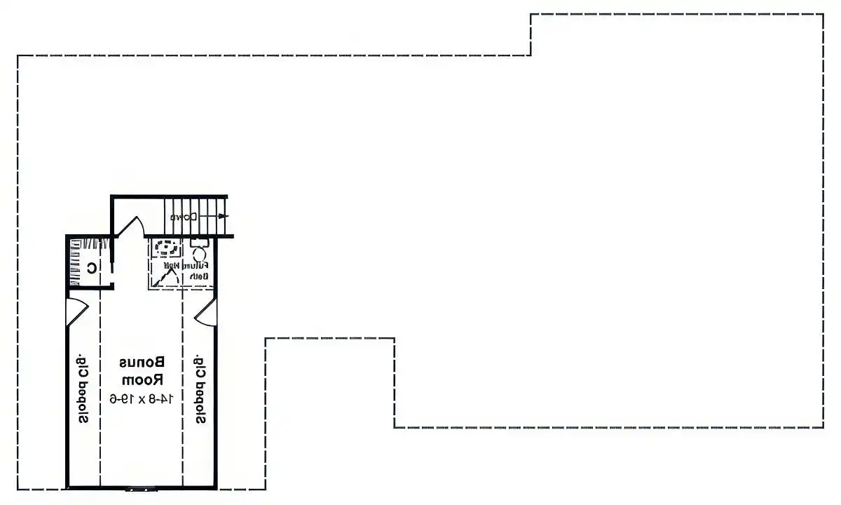
With 1,799 square feet of heated space, this home balances open living with well-defined private areas. A vaulted great room with a fireplace serves as the heart of the home and flows easily into the kitchen and dining spaces. The kitchen includes a breakfast nook, pantry, and peninsula eating bar designed for both daily use and entertaining. The main-floor primary bedroom offers a peaceful retreat with his and hers closets and a spacious bath featuring a separate tub and shower. Two additional bedrooms are positioned in a split layout, creating privacy for family or guests. Storage areas, unfinished space, a workshop, and covered front and rear porches add versatility and comfort to this inviting design.
With 1,799 square feet of heated space, this home balances open living with well-defined private areas. A vaulted great room with a fireplace serves as the heart of the home and flows easily into the kitchen and dining spaces. The kitchen includes a breakfast nook, pantry, and peninsula eating bar designed for both daily use and entertaining. The main-floor primary bedroom offers a peaceful retreat with his and hers closets and a spacious bath featuring a separate tub and shower. Two additional bedrooms are positioned in a split layout, creating privacy for family or guests. Storage areas, unfinished space, a workshop, and covered front and rear porches add versatility and comfort to this inviting design.