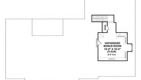
Designed with space and versatility in mind, this 2755 square feet country home plan includes 4 bedrooms and 3.5 baths arranged within a bright, flowing layout. The vaulted great room anchors the home and connects naturally to the dining area and well-equipped kitchen. An island kitchen with peninsula seating, dual pantry storage, and breakfast nook supports both daily routines and special gatherings. The main level primary suite offers privacy and comfort with dual closets and a spa-style bath featuring double vanities and a separate tub and shower. Secondary bedrooms are thoughtfully positioned in a split configuration, with a nursery room providing added flexibility. A dedicated home office and library or media room create space for work and relaxation. Covered porches invite outdoor enjoyment, while the unfinished bonus area and oversized attached garage add long term value and storage.
Designed with space and versatility in mind, this 2755 square feet country home plan includes 4 bedrooms and 3.5 baths arranged within a bright, flowing layout. The vaulted great room anchors the home and connects naturally to the dining area and well-equipped kitchen. An island kitchen with peninsula seating, dual pantry storage, and breakfast nook supports both daily routines and special gatherings. The main level primary suite offers privacy and comfort with dual closets and a spa-style bath featuring double vanities and a separate tub and shower. Secondary bedrooms are thoughtfully positioned in a split configuration, with a nursery room providing added flexibility. A dedicated home office and library or media room create space for work and relaxation. Covered porches invite outdoor enjoyment, while the unfinished bonus area and oversized attached garage add long term value and storage.