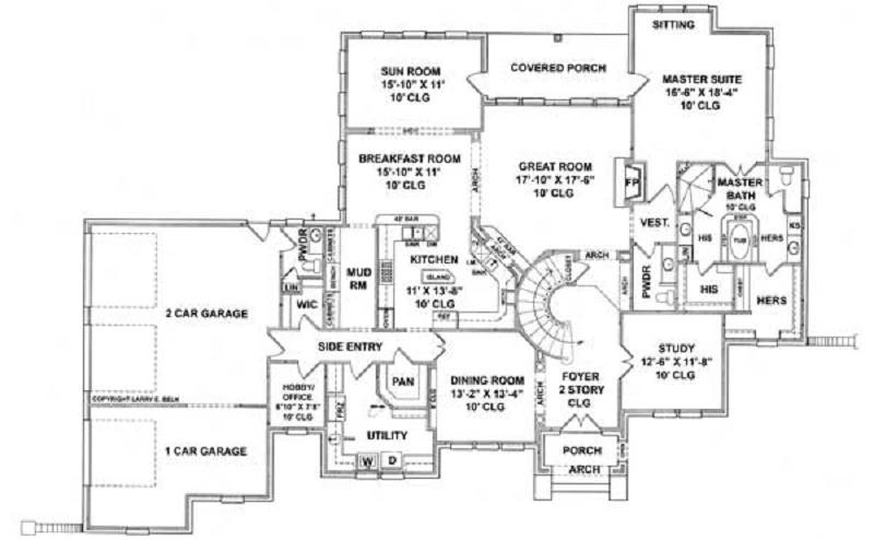
Designed for versatility and comfort, this 4534 square feet home plan includes 5 bedrooms and 4.5 baths arranged across two thoughtfully planned levels. The open layout connects the great room, dining room, and kitchen beneath soaring ceilings and elegant arch details. The kitchen’s island, peninsula eating bar, breakfast nook, and walk-in pantry support both casual meals and large gatherings. The primary bedroom on the main floor delivers privacy and comfort with dual closets, a double vanity sink, and separate tub and shower. Upstairs, additional bedrooms are complemented by a loft or balcony space, ideal for study or relaxation. A dedicated home office and library or media room provide quiet work and entertainment areas. With multiple foundation options and both corner and view lot suitability, this design balances architectural character with everyday practicality.