15% off ALL House Plans Sitewide
15% off ALL House Plans Sitewide

House Plan: DFD-2084

See All 3 Photos > (photographs may reflect modified homes)
© copyright by designer
SQ FT
4,534
BEDS
5
BATHS
4.5
STORIES
2
CARS
3
HOUSE PLANS SALE 
START AT  $2,337.50
For questions and help, live chat, email or call us at 877-895-5299
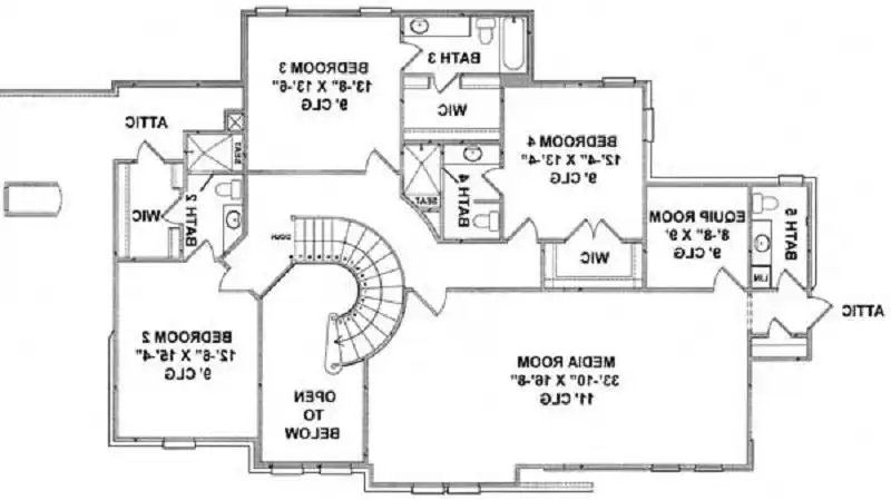
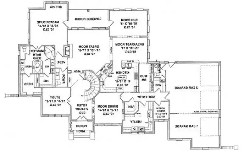
Floor Plans
Click to Zoom In on Floor Plan
 
About House Plan 2084:
Designed for versatility and comfort, this 4534 square feet home plan includes 5 bedrooms and 4.5 baths arranged across two thoughtfully planned levels. The open layout connects the great room, dining room, and kitchen beneath soaring ceilings and elegant arch details. The kitchen’s island, peninsula eating bar, breakfast nook, and walk-in pantry support both casual meals and large gatherings. The primary bedroom on the main floor delivers privacy and comfort with dual closets, a double vanity sink, and separate tub and shower. Upstairs, additional bedrooms are complemented by a loft or balcony space, ideal for study or relaxation. A dedicated home office and library or media room provide quiet work and entertainment areas. With multiple foundation options and both corner and view lot suitability, this design balances architectural character with everyday practicality.
House Plan Pricing
STEP 1 Select Your Package

PDF Bid Set


Home plans stamped "NOT FOR CONSTRUCTION" for cost estimating and bidding purposes only; a minimum 5 set plan package must be purchased within 90 days for a license to build plan set; a credit will be applied towards your house plan upgrade

PDF Bid Set $1,740
Digital set of plans for bidding purposes only

PDF Single Build


Digital plans emailed to you in PDF format that allows for printing copies and sharing electronically with contractors, subs, decorators, and more. This package includes a license to build the home one time.

PDF Single Build $2,750
Most recommended package

PDF + MOD License Single Build


Digital plans emailed to you in PDF format that allows for printing copies and sharing electronically with contractors, subs, decorators, and more. This package includes a modification license to build the home one time.
PDF + MOD License Single Build $3,795
PDF + MOD License Single Build

CAD + PDF Single Build


This plan package is created in AutoCAD and delivered in .DWG format. CAD files are intended for use by design professionals, structural engineers, and builders to update plans for local building codes or to make revisions based on specific needs, lot requirements, and budget considerations. A complimentary PDF copy is included with this package for reference. CAD packages are delivered within 1 to 2 business days.
 
This package also comes with a copyright release for making revisions and printing unlimited copies.

For details on the specific CAD program used, please refer to the PLAN DETAILS section located above the floor plan on each plan page.

CAD + PDF Single Build $4,375
2D electronic editable computer files
STEP 2 Need To Reverse This Plan?
STEP 3 CHOOSE YOUR FOUNDATION
STEP 4 OPTIONAL ADD-ONS
Subtotal:
$2750
FREE SHIPPING
 
Plan Details
See All Details
Finished Square Footage
2,742 Sq. Ft.
Main Level:
1,792 Sq. Ft.
Upper Level:
4,534 Sq. Ft.
Total:
Room Details
5
Bedrooms:
4
Full Baths:
2
Half Baths:
General House Information
2
Number of Stories:
89' 10"
Width:
64' 8"
Depth:
Single
Dwelling Number:
Unfinished Square Footage
823 Sq. Ft.
Garage:
203 Sq. Ft.
Porch:
GARAGE
Front
Garage Location:
3
Garage Size:
Exterior Style
Country
Farmhouse
French Country
Lake
Ranch
Southern
Collections
Kitchens
Luxury
Primary Suites
Mountain
Open Floor Plan
OtherCustom
Foundation
Basement
Crawl Space
Daylight Basement
Slab
Framing Information
Stick
Roof Framing:
2x4
Exterior Wall Framing:
Insulation (R)
0
Exterior Wall:
0
Interior Wall:
0
Ceiling:
0
Floor:
House And Ceiling Heights
10
First Floor Ceiling:
9
Second Floor Ceiling:
Key Features
2 Story Volume
Arches
Attached
Basement
Covered Front Porch
Covered Rear Porch
Crawlspace
Dining Room
Double Vanity Sink
Fireplace
Great Room
Guest Suite
His and Hers Primary Closets
Home Office
Kitchen Island
Laundry 1st Fl
Library/Media Rm
Loft / Balcony
Primary Bdrm Main Floor
Mud Room
Nook / Breakfast Area
Open Floor Plan
Peninsula / Eating Bar
Screened Porch/Sunroom
Separate Tub and Shower
Side-entry
Sitting Area
Slab
Storage Space
Suited for corner lot
Suited for view lot
Walk-in Closet
Walk-in Pantry

Our Guarantees

  • Only the highest quality plans
  • Int’l Residential Code Compliant
  • Full structural details on all plans
  • Best plan price guarantee
  • Free modification Estimates
  • Builder-ready construction drawings
  • Expert advice from leading designers
  •  PDFs NOW!™ plans in minutes
  • 100% satisfaction guarantee
  • Free Home Building Organizer