20% off ALL House Plans Sitewide
20% off ALL House Plans Sitewide

House Plan: DFD-2095

See All 3 Photos > (photographs may reflect modified homes)
© copyright by designer
SQ FT
3,883
BEDS
4
BATHS
4.5
STORIES
2
CARS
2
HOUSE PLANS SALE 
START AT  $1,980.00
For questions and help, live chat, email or call us at 877-895-5299
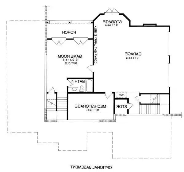
Floor Plans
Click to Zoom In on Floor Plan
 
About House Plan 2095:
Designed for versatility and comfort, this 3883 square feet home plan features 4 bedrooms and 4.5 baths arranged across a thoughtfully planned two story layout. The open floor plan connects the family room, formal living room, and dining areas, creating flexible gathering spaces for everyday living and special occasions. Vaulted ceilings and a fireplace anchor the main living area, while the well-appointed kitchen provides a central island, peninsula eating bar, breakfast nook, and ample pantry storage. The main level primary suite offers dual closets, a double vanity sink, and separate tub and shower. Upstairs, secondary bedrooms and a loft overlook the main living space, adding dimension and flexibility. A rec room and unfinished lower level space provide room for expansion or recreation, while abundant storage space supports organized living. With multiple foundation options and inviting outdoor areas, this home blends timeless design with modern convenience.
House Plan Pricing
STEP 1 Select Your Package

PDF Bid Set


Home plans stamped "NOT FOR CONSTRUCTION" for cost estimating and bidding purposes only; a minimum 5 set plan package must be purchased within 90 days for a license to build plan set; a credit will be applied towards your house plan upgrade

PDF Bid Set $1,500
Digital set of plans for bidding purposes only

PDF Single Build


Digital plans emailed to you in PDF format that allows for printing copies and sharing electronically with contractors, subs, decorators, and more. This package includes a license to build the home one time.

PDF Single Build $2,475
Most recommended package

PDF Single Build


Digital plans emailed to you in PDF format that allows for printing copies and sharing electronically with contractors, subs, decorators, and more. This package includes a license to build the home one time.

PDF Single Build $3,595
Most recommended package

CAD + PDF Single Build


This plan package is created in AutoCAD and delivered in .DWG format. CAD files are intended for use by design professionals, structural engineers, and builders to update plans for local building codes or to make revisions based on specific needs, lot requirements, and budget considerations. A complimentary PDF copy is included with this package for reference. CAD packages are delivered within 1 to 2 business days.
 
This package also comes with a copyright release for making revisions and printing unlimited copies.

For details on the specific CAD program used, please refer to the PLAN DETAILS section located above the floor plan on each plan page.

CAD + PDF Single Build $3,900
2D electronic editable computer files
STEP 2 Need To Reverse This Plan?
STEP 3 CHOOSE YOUR FOUNDATION
STEP 4 OPTIONAL ADD-ONS
Subtotal:
$2475
FREE SHIPPING
 
Plan Details
See All Details
Finished Square Footage
2,286 Sq. Ft.
Main Level:
1,149 Sq. Ft.
Upper Level:
448 Sq. Ft.
Lower Level:
3,883 Sq. Ft.
Total:
Room Details
4
Bedrooms:
4
Full Baths:
1
Half Baths:
General House Information
2
Number of Stories:
62' 6"
Width:
55' 2"
Depth:
Single
Dwelling Number:
Unfinished Square Footage
1500 Sq. Ft.
Garage:
271 Sq. Ft.
Porch:
GARAGE
Front
Garage Location:
2
Garage Size:
Exterior Style
European
French Country
Collections
Luxury
Outdoor Living
Split Bedroom
Foundation
Basement
Crawl Space
Daylight Basement
Slab
Framing Information
Stick
Roof Framing:
2x4
Exterior Wall Framing:
Insulation (R)
0
Exterior Wall:
0
Interior Wall:
0
Ceiling:
0
Floor:
Key Features
2 Story Volume
Arches
Attached
Basement
Covered Front Porch
Covered Rear Porch
Crawlspace
Deck
Dining Room
Double Vanity Sink
Family Room
Fireplace
Formal LR
Foyer
Guest Suite
His and Hers Primary Closets
Kitchen Island
Laundry 1st Fl
Loft / Balcony
Primary Bdrm Main Floor
Nook / Breakfast Area
Open Floor Plan
Pantry
Peninsula / Eating Bar
Rec Room
Separate Tub and Shower
Side-entry
Slab
Storage Space
Suited for corner lot
Unfinished Space
Vaulted Ceilings
Walk-in Closet

Our Guarantees

  • Only the highest quality plans
  • Int’l Residential Code Compliant
  • Full structural details on all plans
  • Best plan price guarantee
  • Free modification Estimates
  • Builder-ready construction drawings
  • Expert advice from leading designers
  •  PDFs NOW!™ plans in minutes
  • 100% satisfaction guarantee
  • Free Home Building Organizer