20% Off House Plans Sitewide Ends Sunday
20% Off House Plans Sitewide Ends Sunday

House Plan: DFD-2311

See All 2 Photos > (photographs may reflect modified homes)
© copyright by designer
SQ FT
1,604
BEDS
2
BATHS
2
STORIES
2
CARS
2
HOUSE PLANS SALE 
START AT  $1,036.00
For questions and help, live chat, email or call us at 877-895-5299
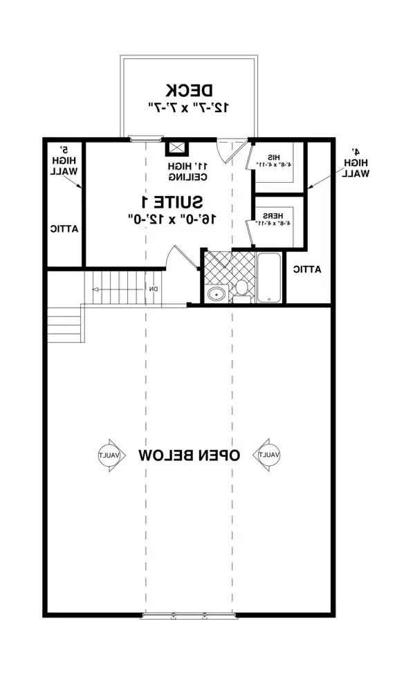
Floor Plans
Click to Zoom In on Floor Plan
 
House Plan 2311
House Plan Pricing
STEP 1 Select Your Package

PDF Bid Set


Home plans stamped "NOT FOR CONSTRUCTION" for cost estimating and bidding purposes only; a minimum 5 set plan package must be purchased within 90 days for a license to build plan set; a credit will be applied towards your house plan upgrade

PDF Bid Set $845
Digital set of plans for bidding purposes only

PDF Single Build


Digital plans emailed to you in PDF format that allows for printing copies and sharing electronically with contractors, subs, decorators, and more. This package includes a license to build the home one time.

PDF Single Build $1,295
Most recommended package

5 Printed Sets


Five Printed Sets of Residential Construction Drawings are typically 24” x 36” documents and come with a license to construct a single residence shipped to a physical address. Keep in mind PDF Plan Packages are our most popular choice which allows you to print as many copies as you need and to electronically send files to your builder, subcontractors, etc.

5 Printed Sets $1,345
Five printed sets of house plans

8 Printed Sets


Eight Printed Sets of Construction Drawings, typically 24” x 36” documents, with a license to construct a single residence shipped to your physical address. PDF Plan Packages are our most popular choice which allows you to print as many copies as you need and to electronically send files to your builder, subcontractors, bank/mortgage reps, material stores, decorators and more.

8 Printed Sets $1,395
Eight printed sets of house plans

CAD + PDF Single Build


CAD files are a complete set of construction drawings delivered electronically. They can be used for any type of modification—including major design changes and engineering—and include a release granting permission to modify the plan. Most CAD plan orders are emailed the same or next business day.
 
This package also comes with a PDF set of plans and a copyright release for making modifications and printing unlimited copies.
 
CAD files are provided in .dwg format. For details on the specific CAD program used, please refer to the PLAN DETAILS section located above the floor plan on each plan’s page.

CAD + PDF Single Build $1,795
2D electronic editable computer files
STEP 2 Need To Reverse This Plan?
STEP 3 CHOOSE YOUR FOUNDATION
STEP 4 OPTIONAL ADD-ONS
Subtotal:
$1295
FREE SHIPPING

Note: Note:Please allow 3 weeks for the completion and delivery of this plan.
 
Plan Details
See All Details
Finished Square Footage
1,288 Sq. Ft.
Main Level:
316 Sq. Ft.
Upper Level:
1,604 Sq. Ft.
Total:
Room Details
2
Bedrooms:
2
Full Baths:
General House Information
2
Number of Stories:
44' 1"
Width:
62' 0"
Depth:
Single
Dwelling Number:
Unfinished Square Footage
GARAGE
Under
Garage Location:
2
Garage Size:
Exterior Style
Cottage
Country
Craftsman
Collections
Empty Nester
Exclusive
Mountain
Vacation
Foundation
Basement
Framing Information
Stick
Roof Framing:
2x4
Exterior Wall Framing:
Roof Pitch
12/12
Primary:
Insulation (R)
Per IRC Climate Zones
House And Ceiling Heights
8
First Floor Ceiling:
8
Second Floor Ceiling:
25' 8"
Maximum House Height:
Key Features
Attached
Basement
Drive-under
Side-entry

Our Guarantees

  • Only the highest quality plans
  • Int’l Residential Code Compliant
  • Full structural details on all plans
  • Best plan price guarantee
  • Free modification Estimates
  • Builder-ready construction drawings
  • Expert advice from leading designers
  •  PDFs NOW!™ plans in minutes
  • 100% satisfaction guarantee
  • Free Home Building Organizer